Exklusive Bürofläche mit 203 m² in Top-Lage am Messendorfgrund, Graz-St. Peter zu vermieten
Büro / Praxis
- Bürofläche,
8042
Graz-St. Peter
Beschreibung der Immobilie
Exklusive Bürofläche mit 203 m² in Top-Lage am Messendorfgrund, Graz-St. Peter zu vermieten
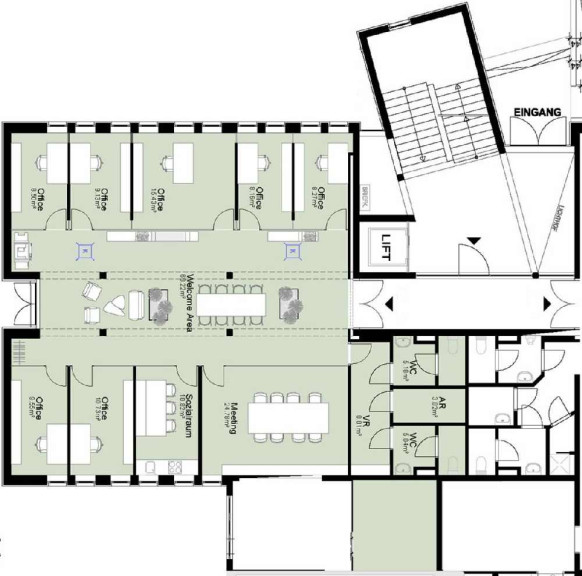
Diese moderne und lichtdurchflutete Bürofläche befindet sich in einer der beliebtesten und verkehrstechnisch gut erschlossenen Lagen in Graz-St. Peter. Die großzügigen 203 m² bieten ausreichend Platz für ein dynamisches Büro, ein kreatives Team oder ein expandierendes Unternehmen. Die Bürofläche zeichnet sich durch eine hochwertige Ausstattung und eine hervorragende Erreichbarkeit aus.Objektdetails im Überblick:
Fläche: 203 m²
Lage: Messendorfgrund, Graz-St. Peter
Verfügbarkeit: ab sofort
Raumaufteilung und Ausstattung:
7 Büroräume, Sozialraum mit Küche, Meetingraum und zentraler Besprechungsbereich.
Bodenbelag: Hochwertiger, pflegeleichter Parkettboden sorgt für eine angenehme Arbeitsatmosphäre.
Heizung/Kühlung: Moderne Heizungs- und Kühlanlagen sorgen für ein angenehmes Raumklima das ganze Jahr über.
Fenster: Große Fensterflächen für optimale Tageslichtverhältnisse und eine helle, freundliche Arbeitsumgebung.
Sanitäre Einrichtungen: Separate WC-Anlagen für Ihre Mitarbeiter.
Technische Ausstattung: Serverraum vorhanden. EDV-Verkabelung und moderne Beleuchtungssysteme bereits vorhanden.
Lage und Erreichbarkeit:
Zentrale Lage: Die Bürofläche liegt in einem bestens angebundenen Geschäfts- und Gewerbegebiet in Graz-St. Peter. Sie profitieren von der Nähe zur Grazer Innenstadt sowie zu wichtigen Verkehrsknotenpunkten.
Verkehrsanbindung: Sehr gute Anbindung an öffentliche Verkehrsmittel (Buslinie 75) sowie die nahegelegene Autobahnauffahrt A2 für Pendler.
Parkmöglichkeiten: Zahlreiche Parkplätze direkt vor dem Gebäude und in der näheren Umgebung stehen zur Anmietung (€ 30,00 netto pro Stellplatz) zur Verfügung und sorgen für einen bequemen Zugang für Ihre Mitarbeiter und Kunden.
Kundenparkplätze vorhanden.
Zusätzliche Vorteile:
Gute Infrastruktur: Zahlreiche Restaurants, Geschäfte und Cafés befinden sich in unmittelbarer Nähe und bieten zahlreiche Annehmlichkeiten für Ihre Mitarbeiter und Kunden.
Mietdauer: auf 5 Jahre befristet bzw. nach Vereinbarung
Kündigungsverzicht: nach Vereinbarung
Vergebührung: richtet sich nach Befristungsdauer
Besichtigung:
Vereinbaren Sie noch heute einen Besichtigungstermin, um sich von der Qualität dieser Bürofläche selbst zu überzeugen. Ich freue mich auf Ihre Anfrage und stehen Ihnen für Rückfragen gerne zur Verfügung!
Eckdaten Objektnr. 141/82100
| Art: | Büro / Praxis - Bürofläche |
| Land: | Österreich |
| Baujahr: | 2002 |
| Möbliert: | Teil |
| Gesamtmiete: | 3.786,22 € |
| Kaltmiete (netto): | 2.442,72 € |
| Miete / m²: | 12,00 € |
| Provision: | pauschal 3 BMM |
| Betriebskosten: | 447,83 € |
| Heizkosten: | 264,63 € |
| MwSt Gesamt: | 631,04 € |
| Nutzfläche: | 203,56 m² |
| Grundstücksfl.: | 203,56 m² |
| Zimmer: | 7 |
| WC: | 2 |
| Heizwärmebedarf: | C 63,00 kWh/m²a |
| fGEE: | A 0,82 |
Ausstattung
Fernwärme, Zentralheizung
Ihre persönliche Beratung
Dieser Makler ist ein offizielles Mitglied des IR – ir.at Mehr Erfahren
