Sonnige Wohlfühloase mit Balkon, Garten inkl. Sauna sowie 2 Autoabstellplätze in Axams
Wohnung
,
6094
Axams
Das Olympiadorf Axams befindet sich im westlichen Mittelgebirge ca. 10 km südwestlich der Landeshauptstadt Innsbruck. Beste Verkehrsanbindung sowie die Grundversorgung mit Arzt, Apotheke, Schule, Kindergarten, Restaurants, Nahversorger ect. bieten alle Annehmlichkeiten des Lebens. Wunderschön gelegen gleich in der Nähe der Naturregion Kalkkögel, zur der auch die Axamer Lizum gehört, liegen traumhafte Wälder und Wanderwege die zur Freizeitgestaltung im Sommer sowie zum Skifahren im Winter einladen.
Beschreibung der Immobilie
Sonnige Wohlfühloase mit Balkon, Garten inkl. Sauna sowie 2 Autoabstellplätze in Axams
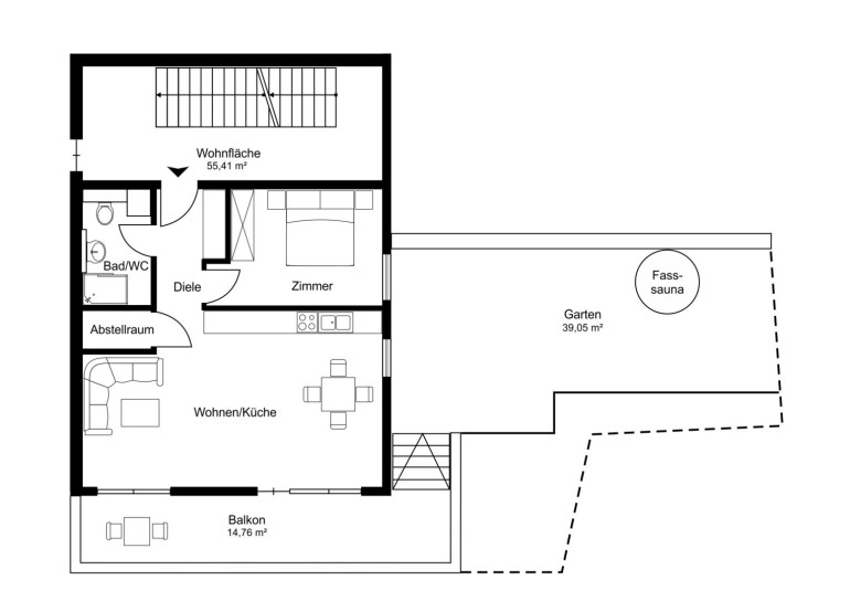
Die zum Kauf stehende, exklusive Zweizimmerwohnung mit ca. 55,41 m² Wohnnutzfläche, liegt im Axamer Ortsteil Kristen, ca. 10 Autominuten vom Ortszentrum von Axams entfernt, in einem Mehrparteienhaus mit lediglich 4 Einheiten, welches ca. im Jahr 2017 fertiggestellt wurde. Die gesamte Liegenschaft besteht aus 2 Baukörpern mit insgesamt 8 Wohneinheiten. Schon damals hat der Bauträger die Wohnanlage sehr treffend mit "Wohnen am Sonnenhang" beschrieben, das die traumhafte Sonnenlage bestens widerspiegelt. Nicht nur die herrlich, sonnige Lage zeichnet diese Liegenschaft aus sondern auch die Lage am Ende einer Sackgasse, also in absoluter Ruhelage sowie die wunderschöne Naturlage mit perfekten Spazierwegen vor der Haustüre.
Der angegebene Kaufpreis versteht sich inklusive einem überdachten Autoabstellplatz sowie einem Abstellplatz im Freien!
Über ein gepflegtes Stiegenhaus führt der Weg hinauf in das 1. OG. Schon beim Eintritt in diese attraktive Wohnung fällt der Blick auf den offenen Wohn-Essbereich.
Rechterhand der Diele, geschickt umrandet durch einen Holzverbau, liegen das freundliche Badezimmer samt WC sowie der eigene Abstellraum. Das Badezimmer ist bestückt mit einer eleganten, bodengleichen Dusche mit Regendusche, einem Waschbecken sowie einem WC. Auch der Anschluss für die Waschmaschine befindet sich in diesem Raum. Als architektonisches Highlight ist hier jedenfalls die Oberlichte, die gekonnt oberhalb des Badezimmers eingefügt wurde, zu erwähnen, da diese für eine angenehme Belichtung - mit Tageslicht - im Raum sorgt.
Gegenüber, auf der linken Seite, befindet sich das geräumige Schlafzimmer, welches mit einem faszinierenden, höher gelegenen Doppelbett samt darunter befindlichem, intelligentem Stauraum ausgestattet wurde. Das Fenster im Schlafzimmer macht den Blick frei auf den eigenen Garten.
Von der Diele führt der Weg geradeaus weiter in den großen, offenen Wohn-Essbereich mit großzügigen Fensterelementen, die einen atemberaubenden Blick auf die Natur und die Berge rund um diese Liegenschaft zulassen. Der Wohn-Essbereich samt Küche und Schlafzimmer wurden in Sichtbeton ausgeführt.
Die in schönem Weiß gehaltene Einbauküche wurde mit einem Herd, einem Cerankochfeld, einem Geschirrspüler, einer Kühl-Gefrierkombination sowie einem Dunstabzug - mit Abluft - ausgestattet.
Der Wohn-Essbereich bietet genügend Platz für eine gemütliche Wohnzimmercouch als auch einem Essplatz. Hier hat man das eigentliche, zweite Zimmer als Wohnbereich umfunktioniert und diese anfangs geplante Dreizimmerwohnung damit als Zweizimmerwohnung ausgeführt.
Nicht zu vergessen sind natürlich der ca. 14,76 m² große Balkon, nach Süden orientiert, erreichbar über den Wohn-Essbereich, als auch der direkt angrenzende, über ein paar Stiegen erreichbare, eigene Garten mit ca. 39,05 m². Ein absolutes Highlight dieser attraktiven Wohnung ist wohl die Fass-Sauna, welche hier im Garten untergebracht wurde und zum Wellnessen einlädt. Die hohe Mauer hinter der Sauna und die Umzäunung des Gartens mit dichter Bepflanzung erlauben ein nahezu ungestörtes Saunaerlebnis! Hier können Sie puren Luxus mit einem wunderschönen Ausblick in die Natur genießen!
Diese traumhafte Zweizimmerwohnung mit dem architektonischen Highlight der Oberlichte oberhalb vom Bad, dem großzügigen Balkon samt angrenzendem Gartenbereich mit eigener Fass-Sauna ist keine alltägliche Immobilie, sie ist ein wahres Kleinod!
Diese Einheit eignet sich bestens für Singles oder Paare, die das Exklusive suchen - wer mehr Zimmer möchte kann diese Zweizimmerwohnung in eine Dreizimmerwohnung umfunktionieren, damit z.B. auch ein eigener Arbeitsbereich Platz findet!
Die Heizung der Wohnanlage erfolgt über eine gasbetriebene Fußbodenheizung, die Warmwasseraufbereitung erfolgt zentral.
Ein überdachter Autoabstellplatz mit ca. 14 m² sowie ein Autoabstellplatz im Freien mit ca. 12,50 m² als auch ein Kellerabteil mit ca. 3,23 m² runden dieses Angebot ab.
Vermittlungsprovision: 3 % des Kaufpreises zzgl. 20 % USt.
Vertragserrichtungskosten sigl + sollerer notare: 1,8 % des Kaufpreises zuzüglich Barauslagen + USt.
Grundbucheintragungsgebühr: 1,1 %
Grunderwerbsteuer: 3,5 %
Habe ich Ihr Interesse geweckt?
Gerne stehe ich für nähere Informationen und für die Vereinbarung eines Besichtigungstermins zur Verfügung.
Email: office@immobilien-leitner.at
Telefon: +436642346265
WICHTIG:
Aufgrund der Nachweispflicht gegenüber dem Auftraggeber können nur Anfragen mit Angabe vollständiger Daten (Vorname, Nachname, Telefonnummer, Emailadresse) bearbeitet werden! Ich ersuche diesbezüglich um Verständnis!
Der Vermittler ist als Doppelmakler tätig.
Infrastruktur / Entfernungen
Gesundheit
Arzt <1.000m
Apotheke <2.000m
Klinik <7.000m
Krankenhaus <6.000m
Kinder & Schulen
Schule <1.500m
Kindergarten <1.500m
Universität <5.000m
Höhere Schule <7.000m
Nahversorgung
Bäckerei <1.500m
Supermarkt <1.500m
Einkaufszentrum <3.500m
Sonstige
Bank <2.000m
Geldautomat <2.000m
Post <2.000m
Polizei <1.500m
Verkehr
Bus <500m
Straßenbahn <4.500m
Bahnhof <2.500m
Autobahnanschluss <2.500m
Flughafen <5.000m
Angaben Entfernung Luftlinie / Quelle: OpenStreetMap
Eckdaten Objektnr. 8254/75
Art: | Wohnung |
Land: | Österreich |
Baujahr: | 2017 |
Zustand: | Neuwertig |
Kaufpreis: | 369.000,00 € |
Provision: | 3% des Kaufpreises zzgl. 20% USt. |
Betriebskosten: | 322,03 € |
Wohnfläche: | 55,41 m² |
Zimmer: | 2 |
Bäder: | 1 |
WC: | 1 |
Balkone: | 1 |
Stellplätze: | 2 |
Garten: | 39,05 m² |
Keller: | 3,23 m² |
Heizwärmebedarf: | C 55,30 kWh/m²a |
fGEE: | B 0,99 |
Ausstattung
Gas, Fußbodenheizung, Wohnküche / offene Küche, Südbalkon, Dusche, Kabel/Satelliten-TV, Carport, Parkplatz, Sauna
Ihre persönliche Beratung

Bettina Leitner
Bettina Leitner Immobilien
H +43 664 2346265