Bestlage Unter-Sievering! Liebevoll modernisierte, teilmöblierte 2,5-Zimmer-Erstbezug-Wohnung mit Doppelgarage und Gartennutzung
Wohnung
,
1190
Wien
Beschreibung der Immobilie
Bestlage Unter-Sievering! Liebevoll modernisierte, teilmöblierte 2,5-Zimmer-Erstbezug-Wohnung mit Doppelgarage und Gartennutzung
Zwischen Sieveringer Straße und Krottenbachstraße gelegen, gelangt diese lichtdurchflutete und teilmöblierte 2,5-Zimmer-Erstbezug-Wohnung mit Doppelgarage und Gartennutzung in Grünruhelage des 19. Wiener Gemeindebezirks zum sofortigen Vermietung.
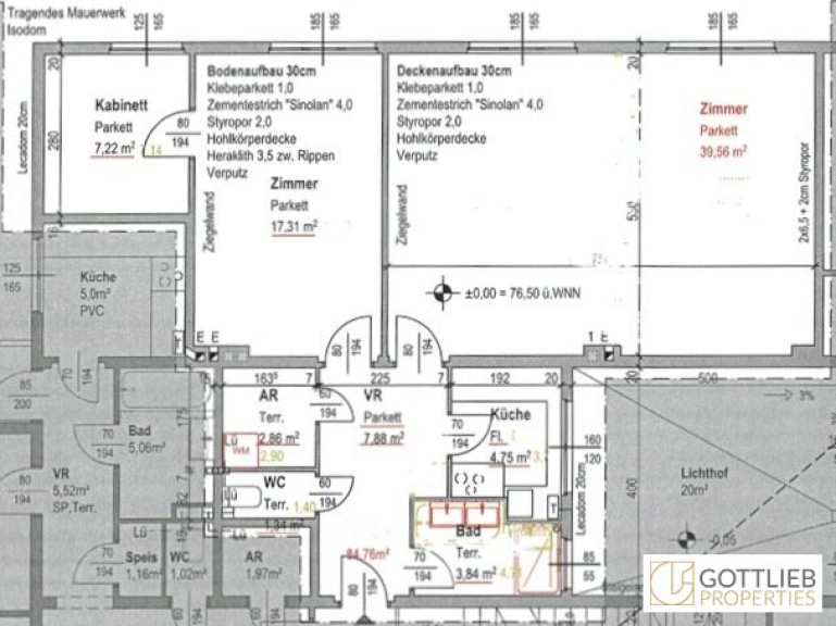
Diese gut geschnittene, lichtdurchflutete Wohnung mit ca. 85 m² Wohnfläche ist südwestseitig ausgerichtet und beinhaltet einen geräumigen Vorraum, von dem aus man einen ca. 40 m² großen Wohn-Ess-Bereich mit offenem Kamin, ein ruhig gelegenes, ca. 17 m² großes Schlafzimmer, eine komplett ausgestattete Küche, ein Tageslicht-Duschbad, einen Abstellraum mit Waschmaschinen-Anschluss sowie eine separate Toilette erreicht. Das kleine ca. 7 m² große Kabinett ist vom Schlafzimmer aus begehbar.
Der Wohnung ist ein geräumiger Abstellraum zugeordnet.
Die Doppelgarage um € 160,00 exkl. 20% USt. ist im Mietpreis bereits enthalten.
+ absolute Grünruhelage
+ Hochparterre
+ ca. 84,76 m² Wohnfläche
+ ca. 39,56 m² Wohn-Ess-Bereich
+ ca. 4,75 m² Küche
+ ca. 17,31 m² Schlafzimmer
+ ca. 7,22 m² Kabinett / Kinderzimmer / Büro
+ ca. 3,84 m² Tageslicht-Duschbad
+ separate Toilette
+ ca. 2,86 m² Abstellraum
+ ca. 7,88 m² Vorzimmer
+ der Wohnung ist ein Kellerabteil zugeordnet
+ Abstellraum
+ Doppelgarage
Ausstattung
+ teilmöbliert
+ offener Kamin
+ Gasetagenheizung mit Therme der Marke "Vaillant"
+ Vollholz-Parkettböden
+ Fliesenböden in den Nassräumen und im Abstellraum
+ Tageslicht-Einbauküche komplett mit Kühl-Gefrierkombination, Herd mit Ceranfeld und Backrohr, Dunstabzug und Geschirrspülmaschine
+ Tageslicht-Duschbad mit bodenebener Glaswand-Dusche, Doppelwaschtisch mit Unterschrank und Spiegel sowie Handtuchwärmer
+ separate Toilette mit Handwaschbecken
+ Abstellraum mit Waschmaschinen-Anschluss
+ Innenjalousien
+ Gegensprechanlage
+ Beleuchtung und Stromanschluss in der Garage
+ Garten zur Allgemeinnutzung
+ Waschküche / Trockenraum zum Anschluss der eigenen Geräte
+ kleine "Außenküche" in der Doppelgarage
Verkehrsanbindung
+ Autobus-Linien 35A und 39A
+ S-Bahn-Linie S 45
+ Strassenbahn-Linie 38
Mit dem PKW erreichen Sie die Wiener Innenstadt in ca. 20 Minuten.
Lage und Infrastruktur
Der 19. Wiener Gemeindebezirk "Döbling" zählt zu den beliebtesten Wohnlagen Wiens. In der Sieveringer Straße, der Krottenbachstrasse und deren Seitengassen finden Sie sämtliche Geschäfte des täglichen Bedarfs sowie den beliebten Sonnberg-Markt, Apotheken, Ärzte und viele gemütliche Restaurants und Heurigen. Kindergärten, Volksschulen, Gymnasien sowie die Universität für Bodenkultur und die Tourismusschulen Modul befinden sich ebenfalls im Nahbereich.
Sämtliche Parkanlagen sowie der Wienerwald sind in wenigen Minuten erreichbar und laden zu vielfältigen Sport- und Freizeitmöglichkeiten.
Sonstiges
Wir ersuchen um Verständnis, dass wir aufgrund unserer Nachweispflicht gegenüber dem Eigentümer nur Anfragen mit vollständigen Kontaktdaten (Name, Adresse, Mobilnummer, Email) bearbeiten können.
Wir weisen darauf hin, dass zwischen dem Vermittler und dem zu vermittelnden Dritten ein familiäres oder wirtschaftliches Naheverhältnis besteht.
Der Immobilienmakler erklärt, dass er – entgegen dem in der Immobilienwirtschaft üblichen Geschäftsgebrauch des Doppelmaklers – einseitig nur für den Vermieter tätig ist.
Infrastruktur / Entfernungen
Gesundheit
Arzt <500m
Apotheke <500m
Klinik <1.500m
Krankenhaus <1.500m
Kinder & Schulen
Schule <500m
Kindergarten <500m
Universität <1.000m
Höhere Schule <1.500m
Nahversorgung
Supermarkt <500m
Bäckerei <500m
Einkaufszentrum <3.500m
Sonstige
Geldautomat <1.000m
Bank <1.000m
Post <1.000m
Polizei <500m
Verkehr
Bus <500m
U-Bahn <2.500m
Straßenbahn <1.500m
Bahnhof <1.500m
Autobahnanschluss <3.000m
Angaben Entfernung Luftlinie / Quelle: OpenStreetMap
Eckdaten Objektnr. 3840
Art: | Wohnung |
Land: | Österreich |
Baujahr: | 1961 |
Zustand: | Voll_saniert |
Möbliert: | Teil |
Alter: | Neubau |
Gesamtmiete: | 1.691,95 € |
Kaltmiete (netto): | 1.290,17 € |
Kaltmiete: | 1.506,12 € |
Provision: | Gemäß Erstauftraggeberprinzip bezahlt der Abgeber die Provision. |
Betriebskosten: | 153,74 € |
MwSt Gesamt: | 185,83 € |
Wohnfläche: | 84,76 m² |
Nutzfläche: | 84,76 m² |
Zimmer: | 2,50 |
Bäder: | 1 |
WC: | 1 |
Keller: | 7,50 m² |
Heizwärmebedarf: | E 154,55 kWh/m²a |
fGEE: | D 2,35 |
Ausstattung
Fliesen, Parkett, Gas, Etagenheizung, Kamin, Einbauküche, Bad mit Fenster, Dusche, Kabel/Satelliten-TV, Garage, Wasch/Trockenraum
Ihre persönliche Beratung

Claudia Haslinger
Gottlieb Properties Immobilientreuhand GmbH
H +43 664 8184523