Wohnhaus mit großem Grundstück und Waldparadies in idyllischer Lage
Haus
- Mehrfamilienhaus,
3631
Scheib
Die Liegenschaft befindet sich in der Ortschaft Scheib (Gemeinde Kirchschlag), eingebettet in die sanfte Hügellandschaft des Waldviertels. Das Grundstück umfasst insgesamt ca. 24.199 m² und liegt in südöstlicher Hanglage. Der Großteil ist als Grünland bzw. Wald gewidmet, während der Bereich rund um das Wohnhaus als Bauland ausgewiesen ist. Die Waldflächen sind derzeit ungepflegt, die nördliche Grundstücksgrenze wird von einem Bachlauf markiert, der bei Starkregen über die Ufer treten kann. Die Zufahrt erfolgt über die öffentliche Ortsstraße und ist laut Gemeinde gesichert. Die Wasserversorgung erfolgt über einen eigenen Brunnen, die Liegenschaft ist an das öffentliche Kanalnetz angeschlossen.
Beschreibung der Immobilie
Wohnhaus mit großem Grundstück und Waldparadies in idyllischer Lage
Das ursprünglich 1977 baubewilligte Wohnhaus mit zwei Wohneinheiten erhielt 1997 die Benützungsbewilligung. Es befindet sich in einem teils unfertigen Zustand und erfordert umfassende Sanierungs- und Fertigstellungsarbeiten. Ergänzt wird das Angebot durch ein großzügiges Waldgrundstück mit rund 22.619 m² Fläche – ideal für Naturliebhaber oder als langfristige Wertanlage.
Flächenaufstellung:
• Wohnfläche gesamt: ca. 178 m²• Erdgeschoss: ca. 89,64 m²
+ 10,40 m² Loggia
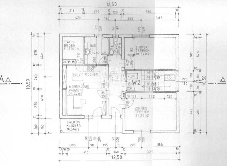
• Dachgeschoss: ca. 88,38 m²
+ 10,56 m² Loggia
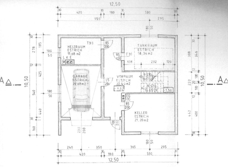
• Kellerfläche: ca. 73,62 m²
• Garage: ca. 22,68 m²
Raumaufteilung:
• Kellergeschoss: Vorraum, Kellerraum, Tankraum, Heizraum, Garage – mit deutlicher Schimmelbildung und Feuchtigkeitsschäden.
• Erdgeschoss: Großzügiger Wohnbereich mit Kochzone, mehrere Zimmer, Bad, WC, Loggia – Fertigstellung ausstehend.
• Dachgeschoss: Drei Zimmer, Wohnküche, Bad, WC, Abstellraum, Balkon – es fehlen Zargen und Innentüren, diverse Ausbauarbeiten erforderlich.
Ausstattung & Zustand
• Fenster und Balkontüren in PVC-Wärmeschutz-Ausführung
• Fußböden teils unvollständig oder uneinheitlich
• Zentralheizung über Heizkessel für feste Brennstoffe im Keller
• Mängel: Wassereintritte, Schimmelbildung, Estrichrisse, fehlende Wärmedämmung
• Das Gebäude entspricht nicht dem heutigen Standard und bedarf einer umfassenden Sanierung
"BITTE BEACHTEN SIE, DASS WIR AUFGRUND DER NACHWEISPFLICHT GEGENÜBER DEM EIGENTÜMER NUR ANFRAGEN MIT VOLLSTÄNDIGER ANGABE DER ANSCHRIFT UND ANGABEN ZUR PERSON (NAME, TELEFON, E-MAIL) BEARBEITEN KÖNNEN."
Hinweis gemäß Energieausweisvorlagegesetz: Ein Energieausweis wurde vom Eigentümer bzw. Verkäufer, nach unserer Aufklärung über die generell geltende Vorlagepflicht, sowie Aufforderung zu seiner Erstellung noch nicht vorgelegt. Daher gilt zumindest eine dem Alter und der Art des Gebäudes entsprechende Gesamtenergieeffizienz als vereinbart. Wir übernehmen keinerlei Gewähr oder Haftung für die tatsächliche Energieeffizienz der angebotenen Immobilie.
Wir weisen darauf hin, dass zwischen dem Vermittler und dem zu vermittelnden Dritten ein familiäres oder wirtschaftliches Naheverhältnis besteht.
Der Vermittler ist als Doppelmakler tätig.
Infrastruktur / Entfernungen
Gesundheit
Arzt <4.000m
Apotheke <6.000m
Kinder & Schulen
Schule <3.500m
Kindergarten <6.000m
Nahversorgung
Supermarkt <6.000m
Bäckerei <6.000m
Einkaufszentrum <6.500m
Sonstige
Bank <3.500m
Post <4.500m
Geldautomat <3.500m
Polizei <6.000m
Verkehr
Bus <3.500m
Flughafen <6.500m
Angaben Entfernung Luftlinie / Quelle: OpenStreetMap
Eckdaten Objektnr. 55090
Art: | Haus - Mehrfamilienhaus |
Land: | Österreich |
Kaufpreis: | 170.000,00 € |
Provision: | 3% des Kaufpreises zzgl. 20% USt. |
Wohnfläche: | 178,00 m² |
Grundstücksfl.: | 24.199,00 m² |
Keller: | 73,62 m² |
Ausstattung
Zentralheizung, Garage
Ihre persönliche Beratung

Philipp Stummer
Real Immo Wien Immobilientreuhand
T +4315120488
H +4366499651213