Exklusives Architektenhaus in der Schwoich zu kaufen – Naturverbundenes Wohnen in Tirol
Haus
- Einfamilienhaus,
6334
Schwoich
Das Architektenhaus in Schwoich, einer malerischen Gemeinde im Bezirk Kufstein, Tirol, besticht durch seine idyllische Lage im Herzen der Alpen. Eingebettet in eine beeindruckende Bergwelt, bietet das Haus einen atemberaubenden Blick auf die umliegenden Gipfel der Tiroler Alpen, wie den Wilden Kaiser und das Pendlingmassiv. Die unmittelbare Nähe zur Natur und die zahlreichen Erholungsmöglichkeiten machen diesen Standort ideal für Naturliebhaber und Outdoor-Enthusiasten. Bergwelt & Erholungsmöglichkeiten Schwoich liegt inmitten einer unverfälschten Alpenlandschaft, die zu jeder Jahreszeit zu Aktivitäten im Freien einlädt. Wanderwege, Mountainbike-Strecken und Kletterrouten sind direkt vom Haus aus erreichbar. Im Winter bieten die nahegelegenen Skigebiete, darunter der Wilder Kaiser-Brixental, Skivergnügen auf höchstem Niveau. Auch Langlaufloipen und Schneeschuhwanderungen stehen zur Verfügung. Für entspannende Momente sorgen kristallklare Bergseen wie der Hechtsee oder die Bäder im Thermalbad Bad Häring, das nur wenige Minuten entfernt ist. Nähe zur Stadt Kufstein Trotz der naturnahen Umgebung ist die Stadt Kufstein, das kulturelle und wirtschaftliche Zentrum der Region, nur 10 Autominuten entfernt. Hier finden sich alle städtischen Annehmlichkeiten, von Restaurants und Einkaufsmöglichkeiten bis hin zu Schulen, Ärzten und kulturellen Einrichtungen wie der Festung Kufstein oder dem Stadttheater. Verkehrsanbindung & Nähe zu Deutschland Die exzellente Verkehrsanbindung ist ein weiterer Pluspunkt dieses Standortes. Die Autobahn A12, Teil der Inntalautobahn, ist in wenigen Minuten erreichbar und bietet eine direkte Verbindung sowohl in westlicher Richtung nach Innsbruck als auch in östlicher Richtung nach Deutschland und Österreich. Die bayerische Grenze ist nur 15 Minuten entfernt, und München, eine der größten deutschen Städte, ist in etwa einer Stunde erreichbar. Ebenso sind die Flughäfen München, Salzburg und Innsbruck in weniger als 1,5 Stunden Fahrtzeit gut zu erreichen, was internationalen Geschäftsreisenden und Vielfliegern große Flexibilität bietet. Insgesamt bietet das Architektenhaus in Schwoich die perfekte Kombination aus Ruhe und Naturverbundenheit sowie einer hervorragenden Anbindung an urbane Zentren und internationale Verkehrswege.
Beschreibung der Immobilie
Exklusives Architektenhaus in der Schwoich zu kaufen – Naturverbundenes Wohnen in Tirol
Exklusiv bei Zefi Immobilien – Modernes Architektenhaus mit ökologischer Bauweise in den Alpen
Dieses moderne Architektenhaus in Schwoich besticht durch seine exklusive Hanglage mit atemberaubendem Blick auf die Tiroler Bergwelt. Nur 7 Minuten von Kufstein entfernt, verbindet es Ruhe und Natur mit einer exzellenten Anbindung an die Autobahn, die Nähe zur deutschen Grenze sowie die Flughäfen München, Salzburg und Innsbruck. Zahlreiche Erholungsmöglichkeiten, wie Wandern, Skifahren oder Baden, sind direkt vor der Haustür.
Das Haus selbst überzeugt durch seine nachhaltige Hybridbauweise, die sich im Holzbau des Obergeschosses, einer effizienten Pelletsheizung und der umweltfreundlichen Hanfdämmung widerspiegelt. Die durchdachte Raumaufteilung bietet vielfältige Nutzungsoptionen und ist ideal für moderne Wohnansprüche.
Raumaufteilung
Dieses charmante Einfamilienhaus bietet eine großzügige und intelligente Raumaufteilung, die sowohl Funktionalität als auch Flexibilität vereint. Mit seinen durchdachten Eingängen und der Aufteilung der Wohnbereiche lässt es sich nicht nur als geräumiges Einfamilienhaus nutzen, sondern könnte auch als Mehrgenerationenhaus oder sogar als Zweifamilienhaus dienen. Die modernen und lichtdurchfluteten Räume laden zum Wohlfühlen ein und bieten Platz für individuelle Gestaltungsmöglichkeiten.
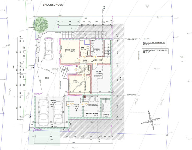
Erdgeschoss:
Beim Betreten des Hauses durch einen der zwei möglichen Eingänge fühlt man sich sofort willkommen. Der Eingangsbereich führt direkt in einen großzügigen Flur, der die verschiedenen Räume des Erdgeschosses verbindet. Hier befindet sich ein großes Gästezimmer (13,07 m²) samt Küche, das ideal für Übernachtungsbesuch oder sogar als eigenständiger Wohnraum genutzt werden kann. Weiters gibt es ein komfortables Kinderzimmer (14,32 m²), das viel Platz zum Spielen und Lernen bietet.
Ein modernes Badezimmer (5,30 m²) ist zentral gelegen, und der Waschraum (7,25 m²)sorgt für zusätzliche Funktionalität im Alltag. Besonders hervorzuheben ist der praktische Kellerraum (18,36 m²), der als Lager- oder Hobbyraum verwendet werden kann und über den zweiten Eingang ebenfalls direkt zugänglich ist. Dies könnte insbesondere für eine Nutzung als Zweifamilienhaus interessant sein, da ein eigener Eingang für eine separate Wohnung im Erdgeschoss vorhanden ist.
Carport und Technikräume:
Das Carport (34,74 m²) bietet Platz für zwei Autos und ist direkt mit dem Haus verbunden, sodass man trockenen Fußes das Gebäude betreten kann. Zwei separate Technik- und Lagerräume für Geräte, Heizung und Pellets bieten reichlich Stauraum und unterstreichen die praktische Seite dieses Wohnhauses. Besonders die Technikräume könnten von einer separaten Wohneinheit im Erdgeschoss genutzt werden.
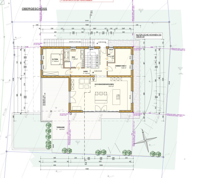
Obergeschoss:
Im Obergeschoss öffnet sich der zentrale Bereich des Hauses. Der offene Wohn-/Ess- und Küchenbereich (52,81 m²) strahlt dank großer Fensterfronten und direktem Zugang zur großzügigen Terrasse (64,79 m²) eine besonders freundliche und lichtdurchflutete Atmosphäre aus. Dieser Bereich ist ideal für gemeinsame Familienaktivitäten, bietet aber auch genug Rückzugsorte und durch den Kamin mit modernem Holzofen ein einzigartiges Wohlfühlambiente.
Das Elternschlafzimmer (15,85 m²) mit seiner behaglichen Größe und das zweite Kinderzimmer (13,82 m²) machen das Obergeschoss perfekt für eine größere Familie. Ein zusätzliches Badezimmer (9,85 m²) sowie ein separates WC runden diesen Wohnbereich ab und ermöglichen komfortables Wohnen auf zwei Etagen.
Nutzung als Mehrfamilienhaus:
Die durchdachte Raumaufteilung mit mehreren Eingängen lässt eine flexible Nutzung zu. Besonders der separate Eingang in das Erdgeschoss mit eigenem Schlafzimmer, Badezimmer und Wohnbereichen bietet die Möglichkeit, das Haus in zwei getrennte Wohneinheiten aufzuteilen. Ob als Mehrgenerationenhaus oder zur Vermietung einer Wohneinheit – dieses Haus bietet die Grundlage für flexible Wohnkonzepte und kann individuell auf die Bedürfnisse seiner Bewohner angepasst werden.
Mit großzügigen Wohnflächen, moderner Technik und flexiblen Gestaltungsmöglichkeiten ist dieses Haus ein wahres Juwel für alle, die ein Zuhause suchen, das mit ihnen und ihren Lebensbedürfnissen mitwächst.
Lassen Sie sich diese Gelegenheit nicht entgehen – vereinbaren Sie noch heute einen unverbindlichen Besichtigungstermin!
Weitere spannenden Immobilienangebote finden Sie auf zefi.at
Noch nichts gefunden? Wir informieren Sie über geeignete Immobilienangebote noch vor allen anderen.
Legen Sie jetzt Ihren individuellen Suchagenten unter folgendem Link an. Wir schicken Ihnen passende Immobilien exklusiv vorab zu.
Suchagent anlegen - https://zefi-immobilien.service.immo/registrieren/de
Wir weisen darauf hin, dass zwischen dem Vermittler und dem zu vermittelnden Dritten ein familiäres oder wirtschaftliches Naheverhältnis besteht.
Der Vermittler ist als Doppelmakler tätig.
Infrastruktur / Entfernungen
Gesundheit
Arzt <3.000m
Apotheke <5.000m
Klinik <8.000m
Krankenhaus <4.500m
Kinder & Schulen
Schule <1.500m
Kindergarten <1.500m
Höhere Schule <5.000m
Universität <6.500m
Nahversorgung
Supermarkt <1.500m
Bäckerei <3.000m
Einkaufszentrum <5.000m
Sonstige
Bank <1.500m
Geldautomat <3.000m
Post <5.000m
Polizei <5.500m
Verkehr
Bus <500m
Autobahnanschluss <3.000m
Bahnhof <3.500m
Flughafen <4.000m
Angaben Entfernung Luftlinie / Quelle: OpenStreetMap
Eckdaten Objektnr. 5390/1054
Art: | Haus - Einfamilienhaus |
Land: | Österreich |
Baujahr: | 2012 |
Zustand: | Gepflegt |
Möbliert: | Teil |
Alter: | Neubau |
Kaufpreis: | 1.290.000,00 € |
Provision: | 3% des Kaufpreises zzgl. 20% USt. |
Wohnfläche: | 148,99 m² |
Nutzfläche: | 198,33 m² |
Grundstücksfl.: | 550,00 m² |
Zimmer: | 5 |
Bäder: | 2 |
WC: | 3 |
Terrassen: | 1 |
Stellplätze: | 4 |
Heizwärmebedarf: | B 43,00 kWh/m²a |
Ausstattung
Fliesen, Parkett, Kamin, Zentralheizung, Einbauküche, Südbalkon, Westbalkon, Bad mit Fenster, Badewanne, Dusche, DV-Verkabelung, Kabel/Satelliten-TV, Carport
Ihre persönliche Beratung

Klaudio Zefi
Zefi Immobilien GmbH
T +43 5332 22818
H +43 699 16 18 75 75