Beschreibung der Immobilie
Perfekter Fernblick über Wien und die Donau
Bitte nur schriftliche Anfragen per E-Mail.
Es werden nur Anfragen mit vollständigem Namen, vollständiger Wohnadresse bzw. Firmenadresse, E-Mail Adresse und Telefonnummer bearbeitet.
Bei Finanzierungsfragen berät Sie unser Finanzierungsberater sehr gerne! Es werden nur verbindliche Kaufanbote mit Finanzierungsnachweis vom Verkäufer akzeptiert.
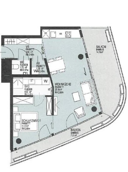
Die Wohnung mit Wohnküche und Schlafzimmer liegt in einem der oberen Stockwerke im Danube Flats Gebäude in der Wagramer Straße im 22. Bezirk.
Die Ausstattung beinhaltet eine moderne Küche, offene Gestaltung der Räume, smarte Klimasteuerung und Fußbodenheizung über Fernwärme.
Perfekter Fernblick ist durch die Balkone auf die Donau und die Stadt Wien gegeben, die U1 ist gleich ums Eck um schnell in die City zu gelangen. Das Kaiserwasser und die alte Donau und deren Erholungsmöglichkeiten sind fußläufig erreichbar.
Das Danube Flats Gebäude selbst bietet viele Wellnessangebote mit Spa-Bereich, Sauna, ganzjährig beheizter Pool, Fitness Bereich, Yoga Raum und Cocktail Bar.
Eine Eventlounge exklusiv für Bewohner der Danube Flats im 12. Stock und eine Executive Lounge im 32. Stock runden das Angebot perfekt ab.
Ein Fahrradabstellraum und Kinderwagenabstellraum sind selbstverständlich vorhanden.
Infrastruktur / Entfernungen
Gesundheit
Arzt <500m
Apotheke <500m
Klinik <1.500m
Krankenhaus <2.500m
Kinder & Schulen
Schule <500m
Kindergarten <500m
Universität <2.000m
Höhere Schule <3.000m
Nahversorgung
Supermarkt <500m
Bäckerei <500m
Einkaufszentrum <2.000m
Sonstige
Geldautomat <500m
Bank <500m
Post <500m
Polizei <500m
Verkehr
Bus <500m
U-Bahn <500m
Straßenbahn <1.500m
Bahnhof <500m
Autobahnanschluss <500m
Angaben Entfernung Luftlinie / Quelle: OpenStreetMap
Eckdaten Objektnr. 505
Art: | Wohnung |
Land: | Österreich |
Baujahr: | 2023 |
Alter: | Neubau |
Kaufpreis: | 642.000,00 € |
Provision: | 3% des Kaufpreises zzgl. 20% USt. |
Betriebskosten: | 269,10 € |
Wohnfläche: | 48,83 m² |
Bäder: | 1 |
WC: | 1 |
Balkone: | 2 |
Heizwärmebedarf: | A 18,48 kWh/m²a |
fGEE: | B 0,86 |
Ausstattung
Fliesen, Parkett, Fernwärme, Fußbodenheizung, Personenaufzug, Angeschl. Bar, Dusche, Sauna, Sporteinrichtungen, Swimmingpool
Ihre persönliche Beratung

Peter Schlager
Patria Real Estate GmbH
T +43 664 2212 197