KANZLEI/PRAXIS/BÜRO - TRAUMHAFT SANIERTE, REPRÄSENTATIVE RÄUMLICHKEITEN - ZENTRALE LAGE
Büro / Praxis
- Bürofläche,
1040
Wien
,
Prinz-Eugen-Straße
- Palais Schwarzenbergplatz - Belvedere - Schwarzenbergplatz
Beschreibung der Immobilie
KANZLEI/PRAXIS/BÜRO - TRAUMHAFT SANIERTE, REPRÄSENTATIVE RÄUMLICHKEITEN - ZENTRALE LAGE
DIESE HELLE KANZLEI/ORDINATION/BÜRO LIEGT IN EINEM SANIERTEN UND GESCHICHTSTRÄCHTIGEN HAUS.
DIESES REPRÄSENTATIVE OBJEKT WURDE GERADE KOMPLETT SANIERT UND LIEGT ZWISCHEN BELVEDERE UND SCHWARZENBERGPLATZ IN EINEM WUNDERSCHÖNEN STILALTBAU.
HIGHLIGHTS
- Bestlage im 4. Bezirk
- Erstbezug
- großzügige Raumplanung - alle Zimmer sind getrennt begehbar
- hochwertige Ausstattung
- hohe Räume
- Personenlift
- sehr gute Infrastruktur
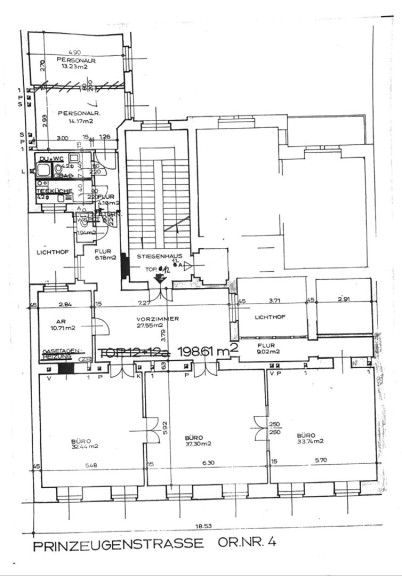
RAUMAUFTEILUNG
- Vorraum mit Platz für einen Empfang oder Wartezimmer
- 4 weitere sehr große Zimmer
- Nebenräume für Gemeinschaftsraum mit Küche, Lagerraum und/oder Aufenthaltsraum
- sep. Toilette, eine zweite Toilette kann installiert werden
- Badezimmer mit Dusche
- 2 Balkone
AUSSTATTUNG
- hochwertige Sanitärausstattung (großformatige Fliesen in den Nassbereichen)
- Badezimmer mit Dusche
- Fischgrätparkettböden
- Perfekte Modernisierung bei gleichzeitiger Beibehaltung des historischen Charmes (Beschläge, Gläser, Stuckdecke...)
- separate Toiletten
- Gaszentralheizung
- Fahrradabstellbereich im Innenhof
FLÄCHEN
Bürofläche: ca. 196 m2
Balkon: ca. 2m2
INFRASTRUKTUR
Dieses traumhafte Büro liegt zwischen Schwarzenbergplatz und Belvedere. Zahlreiche Restaurants, Bars, Hotels und eilnige Geschäfte des täglichen Bedarfs befinden sich in unmittelbarer Umgebung.
PERFKETE ÖFFENTLICHE VERKEHRSANBINDUNG
PREISE
Gesamtmiete netto (inkl. Betriebskosten und Steuern): EUR 4.487,45
Provision: 3BMM; Kaution: EUR 13.500,--
Mietvertragsdauer: 10 Jahre
MIETERPROVISION zahlbar selbstverständlich nur bei Mietvertragsabschluss.
Wir freuen uns auf einen Besichtigungstermin mit Ihnen: IMMOBILIEN@RABAS, Tel.: 0676 528 55 27, E-Mail: Immobilien@rabas.wien
Wir sind ermächtigt, bis auf Widerruf Objekte zu präsentieren, die uns vom Verkäufer/Vermieter zur Verfügung gestellt wurden. Alle Angaben basieren ausschließlich auf Informationen, die uns vom Verkäufer/Vermieter übermittelt wurden. Für Aktualität, Richtigkeit und Vollständigkeit übernehmen wir keine Gewähr. Eine Weitergabe der übermittelten Daten ist aufgrund der Datenschutzgrundverordnung ohne Zustimmung des Immobilienmakler bzw. Verkäufer/Vermieter nicht gestattet.
Hiermit weisen wir auf das Bestehen eines wirtschaftlichen Naheverhältnisses zum Vermieter/Verkäufer hin.
Hinweis gemäß Energieausweisvorlagegesetz: Ein Energieausweis wurde vom Eigentümer bzw. Verkäufer, nach unserer Aufklärung über die generell geltende Vorlagepflicht, sowie Aufforderung zu seiner Erstellung noch nicht vorgelegt. Daher gilt zumindest eine dem Alter und der Art des Gebäudes entsprechende Gesamtenergieeffizienz als vereinbart. Wir übernehmen keinerlei Gewähr oder Haftung für die tatsächliche Energieeffizienz der angebotenen Immobilie.
Infrastruktur / Entfernungen
Gesundheit
Arzt <250m
Apotheke <500m
Klinik <500m
Krankenhaus <1.250m
Kinder & Schulen
Schule <500m
Kindergarten <250m
Universität <500m
Höhere Schule <500m
Nahversorgung
Supermarkt <500m
Bäckerei <250m
Einkaufszentrum <750m
Sonstige
Geldautomat <250m
Bank <250m
Post <500m
Polizei <500m
Verkehr
Bus <250m
U-Bahn <500m
Straßenbahn <250m
Bahnhof <500m
Autobahnanschluss <2.750m
Angaben Entfernung Luftlinie / Quelle: OpenStreetMap
Eckdaten Objektnr. 2542
Art: | Büro / Praxis - Bürofläche |
Land: | Österreich |
Baujahr: | 1881 |
Zustand: | Erstbezug |
Alter: | Altbau |
Kaltmiete (netto): | 3.038,00 € |
Kaltmiete: | 3.739,54 € |
Miete / m²: | 15,19 € |
Provision: | 13.462,34 € inkl. 20% USt. |
Betriebskosten: | 701,54 € |
MwSt Gesamt: | 747,91 € |
Wohnfläche: | 200,00 m² |
Bürofläche: | 200,00 m² |
Zimmer: | 5,50 |
Bäder: | 1 |
WC: | 2 |
Balkone: | 2 |
Ausstattung
Fliesen, Parkett, Etagenheizung, Personenaufzug, Dusche
Ihre persönliche Beratung

Ursula Rabas
Immobilien Rabas
T +43 676 5285527