DOPPELHAUSHÄLFTE MIT POTENZIAL | SANIERUNGSBEDÜRFTIG | NÄHE ROSENHÜGEL
Haus
- Doppelhaushälfte,
1230
Wien
,
Deißenhofergasse
Beschreibung der Immobilie
DOPPELHAUSHÄLFTE MIT POTENZIAL | SANIERUNGSBEDÜRFTIG | NÄHE ROSENHÜGEL
Ein sanierungsbedürftiges Einfamilienhaus zum attraktiven Mietzins!
Highlights
- Lichtdurchflutete Räume: Die südseitige Ausrichtung sorgt für helle Räume.
- Geräumiger Garten: Bietet viel Platz für Erholung, Spiel und kreative Gestaltungsmöglichkeiten.
- Ruhige Lage: In einer idyllischen Gasse mit wenig Verkehr.
- Sanierungsbedürftig: Viel Potenzial zur individuellen Gestaltung und Modernisierung.
Informationen zum Objekt & Ausstattung
In einer ruhigen Wohnsiedlung im 23. Bezirk an der Grenze zum 13. Bezirk befindet sich dieses geräumige Haus mit 5,5 Zimmer und separater Küche. Das Objekt welches im Jahr 1930 erbaut wurde, wird unsaniert vermietet – dadurch profitieren Sie von einem attraktiven, günstigeren Mietzins und können es nach Ihren eigenen Vorstellungen gestalten.
Es besticht durch ein großzügiges Raumangebot und helle Räume. Die Fassade und Fenster befinden sich in gutem Zustand. Die Wohnung ist teilweise mit elektrischen Außenrollläden ausgestattet. Der sonnige Garten lädt zum Entspannen und Verweilen ein und bietet Platz für vielfältige Nutzungsideen. Das Haus verfügt über 5,5 Zimmer, ein Badezimmer, eine separate Küche und einen trockenen Keller. Im Keller befindet sich ein zusätzliches WC. Einige der Räume wurden erst kürzlich mit neuen Infrarotpaneelen zur Beheizung ausgestattet.
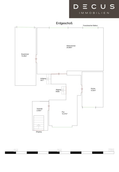
- Wohnzimmer (EG) 24,89m²
- Esszimmer (EG) 10,28m²
- Zimmer 1 (1.OG) 10,10m² mit kleinem Balkon
- Zimmer 2 (1.OG) 17,85m²
- Zimmer 3 (1.OG) 12,77m² mit kleinem Balkon
- Zimmer 4 (1.OG) 6,38m²
Es wird ausdrücklich darauf hingewiesen, dass es sich bei den Bilder der Räume um Musterfotos handelt, wie diese nach einer Sanierung aussehen könnten.
Lagebeschreibung
Die Lage besticht durch ihre Ruhe bei gleichzeitig guter Anbindung an das Wiener Stadtzentrum. Einkaufsmöglichkeiten, Schulen und öffentliche Verkehrsmittel sind rasch erreichbar. An der Grenze zum 13. Bezirk, in der Nähe vom Rosenhügel. Der 58B ist nur wenige Minuten zu Fuß entfernt, der Bahnhof Atzgersdorf und diverse Supermärkte sind in wenigen Minuten mit dem Auto erreichbar.
Gesamtmiete (Pauschalmietzins inkl. Betriebskosten): € 1.900,-. Strom- und Wasserkosten exklusive. Wasser-Akonto: € 30,-/Monat (entspricht € 360,-/Jahr). Die Beheizung erfolgt über Infrarotpaneele.
Wir weisen darauf hin, dass zwischen dem Vermittler und dem zu vermittelnden Dritten ein familiäres oder wirtschaftliches Naheverhältnis besteht.
Der Immobilienmakler erklärt, dass er – entgegen dem in der Immobilienwirtschaft üblichen Geschäftsgebrauch des Doppelmaklers – einseitig nur für den Vermieter tätig ist.
DECUS Immobilien GmbH – Wir beleben Räume
Für weitere Informationen und Besichtigungen steht Ihnen gerne Herr Dr. Marc Berger unter der Mobilnummer +43 660 316 00 72und per E-Mail unter berger@decus.at persönlich zur Verfügung.
www.decus.at | office@decus.at
Wichtige Informationen
Bitte beachten Sie, dass per 13.06.2014 eine neue Richtlinie für Fernabsatz- und Auswärtsgeschäfte in Kraft getreten ist.
Ab 1.4.2024 entfallen die Grundbuchs- und Pfandrechtseintragungsgebühren vorübergehend für Eigenheime bis zu einer Bemessungsgrundlage von EUR 500.000,-. Voraussetzung ist das dringende Wohnbedürfnis, ausgenommen davon sind vererbte oder geschenkte Immobilien. Die Befreiung ist jedoch für den Einzelfall zu prüfen, DECUS Immobilien übernimmt hierzu keine Haftung.
Ab 01.07.2023 gilt das Erstauftraggeber-Prinzip bei Wohnungsmietverträgen, ausgenommen davon sind Dienst-/Natural-/Werkswohnungen. Wir dürfen gem. § 17 Maklergesetz darauf hinweisen, dass wir auf die Doppelmaklertätigkeit gem. § 5 Maklergesetz bei Wohnungsmietverträgen verzichten und nur noch einseitig tätig sind (bei den restlichen Vermittlungsarten nicht) und ein wirtschaftliches Naheverhältnis zu unseren Auftraggebern besteht.
Im Falle eines Abschlusses mit Ihnen oder einem von Ihnen namhaft gemachten Dritten bzw. bei beidseitiger Willensübereinstimmung beträgt unser Honorar (lt. Honorarverordnung für Immobilienmakler) 2 Bruttomonatsmieten (BMM) bei Dienst-/Natural-/Werkwohnungen sowie Suchaufträgen, 3 BMM bei Gewerbe-, PKW- und Lagermietverträgen sowie bei Kaufobjekten 3 % des Kaufpreises, zuzüglich der gesetzlichen Umsatzsteuer.
Dieses Objekt wird Ihnen unverbindlich und freibleibend angeboten. Oben angeführte Angaben basieren auf Informationen und Unterlagen des Eigentümers und sind unsererseits ohne Gewähr.
Nähere Informationen sowie unsere AGBs und die Nebenkostenübersichtsblatt finden Sie auf unserer Homepage www.decus.at unter "Service" - "Rechtliches zum FAGG" sowie im Anhang der zugesendeten Objekt-Exposés!
Infrastruktur / Entfernungen
Gesundheit
Arzt <250m
Apotheke <750m
Klinik <1.250m
Krankenhaus <500m
Kinder & Schulen
Schule <750m
Kindergarten <500m
Universität <3.250m
Höhere Schule <4.500m
Nahversorgung
Supermarkt <750m
Bäckerei <750m
Einkaufszentrum <2.500m
Sonstige
Geldautomat <1.000m
Bank <1.500m
Post <1.500m
Polizei <2.250m
Verkehr
Bus <250m
U-Bahn <2.750m
Straßenbahn <750m
Bahnhof <1.250m
Autobahnanschluss <2.750m
Angaben Entfernung Luftlinie / Quelle: OpenStreetMap
Eckdaten Objektnr. 1150751
Art: | Haus - Doppelhaushälfte |
Land: | Österreich |
Baujahr: | 1930 |
Gesamtmiete: | 1.900,00 € |
Kaltmiete (netto): | 1.900,00 € |
Kaltmiete: | 1.900,00 € |
Provision: | Gemäß Erstauftraggeberprinzip bezahlt der Abgeber die Provision. |
Wohnfläche: | 139,00 m² |
Nutzfläche: | 139,00 m² |
Zimmer: | 5,50 |
Bäder: | 1 |
WC: | 2 |
Balkone: | 2 |
Garten: | 157,00 m² |
Keller: | 34,80 m² |
Heizwärmebedarf: | E 136,50 kWh/m²a |
fGEE: | G 4,14 |
Ausstattung
Elektro, Einbauküche, Südbalkon
Ihre persönliche Beratung

Dr. Marc Berger
DECUS Immobilien GmbH
T +43 660 316 00 72
H +43 660 316 00 72
F +43 1 35 600 10