Beschreibung der Immobilie
Exklusiv / Modern / Neuwertig - Tolles Penthouse im Zentrum
Dieses Penthouse befindet sich in einem 2019/2020 unter dem Namen „Stadtoase“ errichteten Gebäude in der Herrengasse, der östlichen Verlängerung der Welser Ringstraße.
Eine hervorragende Lage direkt im Zentrum - die gesamte Infrastruktur der Welser Innenstadt ist fußläufig schnell erreichbar.
Die Wohnung liegt im 4. und damit obersten Stockwerk mit südwestlich ausgerichteter, überdachter Terrasse.
Sie ist sehr hochwertig ausgestattet mit z.B. Fußbodenheizung, Wohnraumlüftung, Parkettböden, elektrischem Sonnenschutz. Eine Deckenkühlung sorgt für perfektes Raumklima auch in den heißen Sommermonaten.
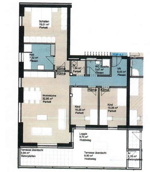
Raumaufteilung: Wohnküche, Elternbereich mit Schlafzimmer und großem Bad/WC, 2 Kinderzimmer, Kinder- bzw. Gästebad/WC, Abstellraum, Vorraum
Einrichtung: Moderne, mit hochwertigen Miele-Geräten ausgestattete Küche. Elternbad mit Badewanne und Dusche. Kinder-/Gästebad mit Dusche.
Die ca. 30 m² große Terrasse ist sowohl von der Wohnküche als auch von den zwei Kinderzimmern aus erreichbar. Sie ist vollständig überdacht und auch mit einem kleinen Abstellraum ausgestattet.
Zur Wohnung gehören selbstverständlich ein Kellerabteil und ein KFZ-Stellplatz in der Tiefgarage.
Der Immobilienmakler erklärt, dass er – entgegen dem in der Immobilienwirtschaft üblichen Geschäftsgebrauch des Doppelmaklers – einseitig nur für den Vermieter tätig ist.
Infrastruktur / Entfernungen
Gesundheit
Arzt <300m
Apotheke <350m
Klinik <425m
Krankenhaus <1.575m
Kinder & Schulen
Schule <125m
Kindergarten <125m
Universität <175m
Nahversorgung
Supermarkt <100m
Bäckerei <125m
Einkaufszentrum <2.775m
Sonstige
Bank <200m
Geldautomat <200m
Post <350m
Polizei <375m
Verkehr
Bus <175m
Autobahnanschluss <2.850m
Bahnhof <725m
Flughafen <2.525m
Angaben Entfernung Luftlinie / Quelle: OpenStreetMap
Eckdaten Objektnr. 160913
| Art: | Wohnung |
| Land: | Österreich |
| Baujahr: | 2020 |
| Zustand: | Neuwertig |
| Alter: | Neubau |
| Gesamtmiete: | 1.837,44 € |
| Kaltmiete (netto): | 1.363,41 € |
| Kaltmiete: | 1.683,93 € |
| Provision: | Gemäß Erstauftraggeberprinzip bezahlt der Abgeber die Provision. |
| Betriebskosten: | 320,52 € |
| Heizkosten: | 98,98 € |
| MwSt Gesamt: | 54,53 € |
| Wohnfläche: | 93,61 m² |
| Nutzfläche: | 125,29 m² |
| Zimmer: | 4 |
| Bäder: | 2 |
| WC: | 2 |
| Terrassen: | 1 |
| Stellplätze: | 1 |
| Heizwärmebedarf: | B 35,01 kWh/m²a |
| fGEE: | A+ 0,64 |
Ausstattung
Parkett, Fußbodenheizung, Wohnküche / offene Küche, Personenaufzug, Dusche, Bad mit Fenster, Badewanne, Tiefgarage
Ihre persönliche Beratung
Dieser Makler ist ein offizielles Mitglied des IR – ir.at Mehr Erfahren

