Einfamilienhaus mit 194 m² / 10 Zimmer +ERSTBEZUG nach SANIERUNG+
Haus
- Einfamilienhaus,
2231
Strasshof an der Nordbahn
Stadtrand/Ortsrand, Wohngebiet, Toplage, Ruhelage, Gute Verkehrslage, Nähe öffentliche Verkehrsmittel

















































Beschreibung der Immobilie
Einfamilienhaus mit 194 m² / 10 Zimmer +ERSTBEZUG nach SANIERUNG+
Adresse: 2231 Strasshof, Flugfeldstraße 56
Dieses Haus befindet sich in grüner Siedlungslage, besticht durch seine großzügige Raumaufteilung im Erdgeschoß und der offene Wohnküche mit Zugang zur Terrasse, welche direkt in den Garten mündet. Das Haus verfügt über 10 Zimmer, zwei Bäder, drei WCs, eine Wohnnutzfläche (EG und OG) von ca. 194m², einem ca. 102m² großen Keller, einer Terrasse, einer Garage und einem großzügigen Garten. Das Grundstück mit seinen ca. 527m², seinem großen Garten und das Haus mit den lichtdurchfluteten Räumen, schafft eine Oase des Lebensgefühls mit einer Infrastruktur, die ihresgleichen sucht.
Besonderheiten:
+ Siedlungslage
+ Großzügige Raumaufteilung
+ 10 Zimmer
+ 2 Bäder
+ 3 WCs
+ Offener Wohnküchenbereich mit direktem Zugang auf die Terrasse
+ Terrasse ca. 20m²
+ Garten ca. 330m³
+ Garage mit neuem Seiten-Sektionaltor
+ Teilsanierung inklusive „Baumit open air KlimaschutzFassade“
Flächen- und Raumaufteilung:
+ Grundstück: ca. 527 m²
+ Wohnnutzfläche: ca. 194 m²
+ Keller: ca. 102 m²
+ Terrasse: ca. 20 m²
+ Garage: ca. 19 m²
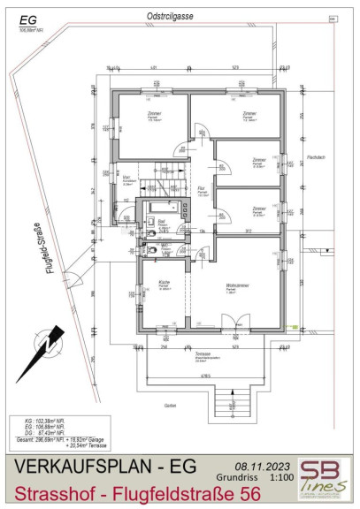
Erdgeschoss:
1 Vorzimmer, ca. 10 m²
1 Bad mit Badewanne und WC, ca. 5 m²
1 WC, ca. 2 m²
1 Wohn- und Küchenbereich, ca. 48 m²
1 Zimmer, ca. 10 m²
1 Zimmer, ca. 10 m²
1 Zimmer, ca. 13 m²
1 Schlafzimmer, ca. 15 m²
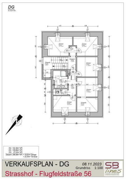
Dachgeschoss:
1 Vorraum, ca. 4,8 m²
1 Bad mit Dusche, ca. 6,5 m²
1 WC, ca. 2 m²
1 Zimmer, ca. 12 m² Bodenfläche
1 Zimmer, ca. 12 m² Bodenfläche
1 Zimmer, ca. 11 m² Bodenfläche
1 Zimmer, ca. 11 m² Bodenfläche und einer Garderobe mit ca. 8 m² Bodenfläche
1 Zimmer, ca. 10 m² Bodenfläche
Keller:
- 4 Räume
- 1 Waschküche und 1 WC
- 1 Technikraum
- Zugang zur Garage
Ausstattung des Hauses:
Dieses Haus wurde 1971 in Massivbauweise, einem Walmdach inklusive Wärmedämmung zwischen den Sparren und Deckung mit Dachschindeln, errichtet. 1998 wurde das Dachgeschoss ausgebaut und 2007 wurden alle Fenster mit Zweifachverglasung in Kunststoff (Farbe Weiß) erneuert. Ende 2023 wurden das Erdgeschoss, das Dachgeschoss, der Keller, die Terrasse und die Fassade (10cm Baumit „open air KlimaschutzFassade“) teilsaniert. Die Küche wurde geöffnet, damit verfügt das Haus über einen großzügigen, hellen Wohnküchenbereich. Alle Bäder und WC´s wurden in modernem Design ausgeführt. Die Wohn- und Schlafräume verfügen über helle Massivparkettböden und die Nutzflächen sind verfliest. Heizung- und Warmwasseraufbereitung erfolgt über die im Technikraum installierte Gastherme und dem Warmwasserboiler.
Kaufkonditionen:
Verfügbar: ab sofort
Monatliche Kosten:
-Grundsteuer und Kanalbenützungsgebühr: ca. 171,0 € brutto pro Monat
-Müll (G.V.U. Gänserndorf) / Restmüll, Altpapier und Bio: ca. 133,15 € brutto im Halbjahr
Kaufpreis: 560.000,0 €
Vertragserrichtung:
Notar Mag. Reinhard Wittmann
Vertragserrichtung und Beglaubigung:
1,1% vom Kaufpreis, zuzüglich 20% USt. und Barauslagen für Gerichtsgebühren
Grunderwerbssteuer: 3,5% vom Kaufpreis
Grundbucheintragung: 1,1% vom Kaufpreis
Abgaben gemäß gesetzlicher Erfordernisse:
HWB: 63 kWh/m²a / Klasse C
fGEE: 1,14 / Klasse C
Der Energieausweis ist bis 24.08.2033 gültig.
Öffentliche Anbindung:
Arzt: 3 Gehminuten
Apotheke: 4 Autominuten
Supermarkt: 9 Gehminuten
Kindergarten: 7 Gehminuten
Volksschule: 10 Gehminuten
Strasshof/Nordbahn Bahnhof: 4 Autominuten
Freizeitpark Gänserndorf: 8 Autominuten
Deutsch-Wagram: 10 Autominuten
Einkaufszentrum Gerasdorf: 23 Autominuten
Stadtgrenze Wien: 23 Autominuten
Lage / Infrastruktur:
Strasshof an der Nordbahn ist eine Marktgemeinde mit 11.361 Einwohnern im Bezirk Gänserndorf und liegt im Marchfeld. Das Marchfeld fungiert traditionell als Gemüselieferant Wiens und „Kornkammer Österreichs“. Architektonisch bedeutsam ist das Marchfeld unter anderem durch mehrere Barockkirchen und Stadtplätze. Die Flugfeldstraße in Strasshof erinnert an ein ehemaliges Flugfeld, das sich während des Ersten Weltkrieges dort befand.
Auf unserer Homepage www.netmakler.at steht Ihnen unter der Eingabe der Objektnummer 1858/6629 ein Exposé mit allen relevanten Informationen inkl. Fotos und Grundrisse zur Verfügung.
Kontaktperson: Rudolf Lackner
Falls Sie weitere Informationen zum Objekt benötigen oder einen Besichtigungstermin vereinbaren möchten, können Sie mich gerne per Mail unter Lackner@netmakler.at oder telefonisch +43 699/10422336 kontaktieren.
Im Erfolgsfall unserer Vermittlungstätigkeit erlauben wir uns eine Provision in Höhe von 3% des Kaufpreises zzgl. 20% USt. zu verrechnen.
Infrastruktur / Entfernungen
Gesundheit
Arzt <1.500m
Apotheke <2.000m
Klinik <6.500m
Kinder & Schulen
Kindergarten <500m
Schule <1.000m
Nahversorgung
Supermarkt <1.000m
Bäckerei <2.000m
Sonstige
Bank <1.500m
Geldautomat <1.500m
Post <2.000m
Polizei <6.000m
Verkehr
Bus <500m
Bahnhof <1.500m
Angaben Entfernung Luftlinie / Quelle: OpenStreetMap
Eckdaten Objektnr. 1858/10183
Art: | Haus - Einfamilienhaus |
Land: | Österreich |
Baujahr: | 1971 |
Zustand: | Neuwertig |
Kaufpreis: | 560.000,00 € |
Provision: | 3.0% plus 20.0% USt. |
Wohnfläche: | 194,00 m² |
Grundstücksfl.: | 527,00 m² |
Gesamtfläche: | 194,00 m² |
Zimmer: | 10 |
Bäder: | 2 |
WC: | 3 |
Stellplätze: | 1 |
Keller: | 102,00 m² |
Heizwärmebedarf: | C 63,00 kWh/m²a |
fGEE: | C 1,14 |
Ausstattung
Gas, Kabel/Satelliten-TV, Garage
Ihre persönliche Beratung

Rudolf Lackner
Amadeus Immobilien GmbH
H +43 699 / 10422336