Exklusive Maisonette-Wohnung mit zwei Terrassen und Weitblick in Wien-Donaustadt (Aspern)
Wohnung
- Maisonette,
1220
Wien
Beschreibung der Immobilie
Exklusive Maisonette-Wohnung mit zwei Terrassen und Weitblick in Wien-Donaustadt (Aspern)
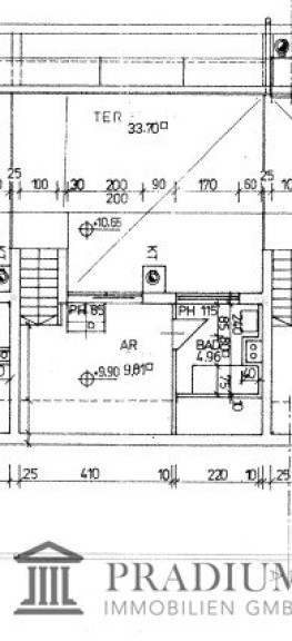
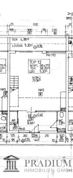
Diese stilvolle Maisonette-Wohnung mit ca. 68 m² Wohnfläche besticht durch ihre großzügige Raumaufteilung, lichtdurchflutete Wohnbereiche und gleich zwei Terrassen, die zum Entspannen im Freien einladen. Bereits beim Betreten überzeugt die Wohnung mit einem geräumigen Vorraum, einem separaten WC sowie einer praktischen Abstellkammer. Von hier aus gelangen Sie in den rund 40 m² großen Wohn- und Essbereich, der durch seine offene Gestaltung ein besonders angenehmes Wohngefühl schafft. Große Fensterflächen sorgen für viel Tageslicht und bieten Zugang zur ca. 10 m² großen südseitigen Terrasse – perfekt für sonnige Stunden und gemütliche Mahlzeiten im Freien. Ein besonderes Highlight sind die eleganten Stiegen, die den Wohnbereich mit dem oberen Geschoss verbinden. Dort befindet sich das ruhig gelegene Schlafzimmer sowie das schöne Badezimmer. Von hier aus gelangen Sie auf die beeindruckende Dachterrasse mit ca. 34 m², die mit ihrem traumhaften Weitblick ins Grüne und über die Umgebung eine echte Oase über den Dächern Asperns darstellt.
Highlights auf einen Blick:
ca. 68 m² Wohnfläche auf 2 Ebenen
Maisonette-Stil mit eleganter Stiege
rund 40 m² großer Wohn- und Essbereich
südseitige Terrasse (ca. 10 m²) direkt vom Wohnzimmer begehbar
großzügige Dachterrasse (ca. 34 m²) mit Weit- und Grünblick
Vorraum mit separatem WC und Abstellraum
Schlafzimmer und Badezimmer im Obergeschoß
lichtdurchflutete Räume mit moderner Architektur
gute Anbindung an den öffentlichen Verkehr
großes Kellerabteil
Lage – urban und naturnah in Aspern
Die Wohnung befindet sich in einer attraktiven Lage im 22. Bezirk (Aspern), die durch eine hervorragende Infrastruktur und viel Grün überzeugt. In wenigen Gehminuten erreichen Sie Bushaltestellen, die eine rasche Verbindung zur U2-Station Aspern bieten. Auch die Straßenbahnlinie 25 ist bequem erreichbar und bringt Sie schnell in andere Teile der Stadt. Damit ist die Wohnung bestens an den öffentlichen Verkehr angebunden. Für den täglichen Bedarf stehen Ihnen Supermärkte, Bäckereien und Lebensmittelgeschäfte in unmittelbarer Umgebung zur Verfügung. Darüber hinaus finden Sie Apotheken, Ärzte und weitere Nahversorger nur wenige Minuten entfernt. Die Lage punktet zudem mit einem hohen Freizeitwert: Zahlreiche Parks, Grünanlagen und Erholungsgebiete laden zum Spazierengehen, Radfahren oder Entspannen ein. Auch das beliebte Naherholungsgebiet Lobau sowie die weitläufigen Donau-Auen sind schnell erreichbar und bieten Naturerlebnisse direkt vor der Haustüre. Insgesamt verbindet diese Lage die Vorteile einer urbanen Infrastruktur mit der Nähe zu Erholungs- und Freizeitmöglichkeiten – ideal für alle, die sowohl Stadt- als auch Naturleben genießen möchten.
Fazit
Diese Maisonette-Wohnung vereint moderne Architektur, großzügige Freiflächen und eine hervorragende Lage im beliebten Aspern. Ideal für alle, die stilvolles Wohnen mit urbaner Lebensqualität und Erholung im Grünen verbinden möchten.
Rechtliches:
Bitte beachten Sie, dass wir aufgrund der gesetzlichen Nachweispflicht gegenüber dem Eigentümer Anfragen nur mit vollständigen Angaben (Name, Adresse, Telefon und Mail Adresse) bearbeiten können. Wir sind als Doppelmakler tätig! Hinweis zu Widerrufsrecht, Rücktrittsrecht bei Fern- und Auswärtsgeschäften: Gem. §11 FAGG (Fern- und Auswärtsgeschäftegesetz) kann der Interessent innerhalb von 14 Tagen vom Vertrag zurücktreten. Wünscht der Interessent mit der Kontaktaufnahme ein vorzeitiges Tätigwerden (Namhaftmachung und Adresse der Immobilie) des Immobilienbüros PRADIUM Immobilien innerhalb der offenen Rücktrittsfrist, nimmt er damit zur Kenntnis, das Rücktrittsrecht vom Maklervertrag gem. §11 FAGG zu verlieren. Grundsätzlich sei erwähnt, dass die Maklerprovision nur bei Zustandekommen eines Willensübereinkommens zwischen Verkäufer und Käufer (Kaufvertrag) gem. Makler Gesetz verrechnet wird. Bloße Besichtigungen sind absolut kostenlos.
Noch nichts gefunden? Wir informieren Sie über geeignete Immobilienangebote noch vor allen anderen.
Legen Sie jetzt Ihren individuellen Suchagenten unter folgendem Link an. Wir schicken Ihnen passende Immobilien exklusiv vorab zu.
Suchagent anlegen - https://pradium-immobilien.service.immo/registrieren/de
Wir weisen darauf hin, dass zwischen dem Vermittler und dem zu vermittelnden Dritten ein familiäres oder wirtschaftliches Naheverhältnis besteht.
Der Vermittler ist als Doppelmakler tätig.
Infrastruktur / Entfernungen
Gesundheit
Arzt <500m
Apotheke <500m
Klinik <1.500m
Krankenhaus <2.000m
Kinder & Schulen
Schule <500m
Kindergarten <500m
Universität <2.000m
Höhere Schule <2.000m
Nahversorgung
Supermarkt <500m
Bäckerei <500m
Einkaufszentrum <3.500m
Sonstige
Geldautomat <500m
Bank <500m
Post <1.500m
Polizei <1.000m
Verkehr
Bus <500m
U-Bahn <1.500m
Straßenbahn <500m
Bahnhof <1.500m
Autobahnanschluss <3.000m
Angaben Entfernung Luftlinie / Quelle: OpenStreetMap
Eckdaten Objektnr. 8230/150
Art: | Wohnung - Maisonette |
Land: | Österreich |
Baujahr: | 2000 |
Zustand: | Gepflegt |
Alter: | Neubau |
Kaufpreis: | 272.000,00 € |
Provision: | 3% des Kaufpreises zzgl. 20% USt. |
Betriebskosten: | 143,15 € |
MwSt Gesamt: | 17,07 € |
Wohnfläche: | 68,47 m² |
Zimmer: | 2 |
Bäder: | 1 |
WC: | 1 |
Terrassen: | 1 |
Keller: | 8,06 m² |
Heizwärmebedarf: | C 74,60 kWh/m²a |
fGEE: | C 1,33 |
Ausstattung
Fliesen, Laminatboden, Fernwärme, Einbauküche, Wohnküche / offene Küche, Südbalkon, Badewanne
Ihre persönliche Beratung

Liam Lewis-Weber
PRADIUM Immobilien GmbH & Co KG
T +436648662666