DG AUSBAU | HELLE RÄUME | FREIFLÄCHEN
Wohnung
- Dachgeschoß,
1100
Wien
,
Erlachgasse
Beschreibung der Immobilie
DG AUSBAU | HELLE RÄUME | FREIFLÄCHEN
TRAUMHAFTER DACHGESCHOSS-AUSBAU
Bitte beachten Sie, dass Sie den Fußbodenbelag frei wählen können, dieser ist bis zu einem gewissen Qualität (mind. Landhausdiele) im Kaufpreis inkludiert. Dies gilt auch für auch Handwaschbecken, WC und Dusche.
Dieses Projektbietet 5 exklusive DG Wohnungen, die Wohnflächen variieren von 35 bis 78 m². Mit hochwertiger Ausstattung und traumhaften Freiflächen verspricht dieses Projekt ein unvergleichliches Wohnambiente im Herzen Wiens.
Ausstattung:
Die Wohnungen in diesem Wohnbauprojekt zeichnen sich durch eine hochwertige Ausstattung aus, die Komfort und Eleganz vereint. In den Aufenthaltsräumen erwartet Sie edles Holzparkett, das eine warme und einladende Atmosphäre schafft. Die Sanitärräume sind mit Feinsteinzeug oder Fliesen ausgestattet, die nicht nur stilvoll, sondern auch pflegeleicht sind. Fußbodenheizung rundet das Komfortangebot ab und sorgt für behagliche Wärme in allen Räumen.
Jede Wohnung verfügt über ein individuelles Kellerabteil, um zusätzlichen Stauraum zu bieten.
Zusätzlich wird ein neuer Lift in das Haus eingebaut.
Lage:
Das Wohnbauprojekt befindet sich in einer begehrten Lage nahe am Zentrum Wiens. Dank der zentralen Lage haben die Bewohner Zugang zu einer Vielzahl von Annehmlichkeiten wie Einkaufsmöglichkeiten, Restaurants, Cafés und kulturellen Einrichtungen. Die exzellente Verkehrsanbindung, durch die nähe zum Hauptbahnhof und zur U1. ermöglicht es den Bewohnern, schnell und bequem alle Teile der Stadt zu erreichen.
Insgesamt bietet dieses Wohnbauprojekt die perfekte Kombination aus modernem Komfort und dem unvergleichlichen Charme eines sanierten Wiener Altbaus. Entdecken Sie Ihr neues Zuhause in einer der exklusiven Wohnungen und genießen Sie das Beste, was Wien zu bieten hat!
Hinweis: Bitte beachten Sie, dass es sich bei den Fotos um Beispielbilder bzw. Renderings handelt.
DECUS Immobilien GmbH – Wir beleben Räume
Für weitere Informationen und Besichtigungen steht Ihnen gerne Herr Ing. Nicolas Putzlager unter der Mobilnummer +43 660 302 61 70und per E-Mail unter putzlager@decus.at persönlich zur Verfügung.
www.decus.at | office@decus.at
Wichtige Informationen
Bitte beachten Sie, dass per 13.06.2014 eine neue Richtlinie für Fernabsatz- und Auswärtsgeschäfte in Kraft getreten ist.
Ab 1.4.2024 entfallen die Grundbuchs- und Pfandrechtseintragungsgebühren vorübergehend für Eigenheime bis zu einer Bemessungsgrundlage von EUR 500.000,-. Voraussetzung ist das dringende Wohnbedürfnis, ausgenommen davon sind vererbte oder geschenkte Immobilien. Die Befreiung ist jedoch für den Einzelfall zu prüfen, DECUS Immobilien übernimmt hierzu keine Haftung.
Ab 01.07.2023 gilt das Erstauftraggeber-Prinzip bei Wohnungsmietverträgen, ausgenommen davon sind Dienst-/Natural-/Werkswohnungen. Wir dürfen gem. § 17 Maklergesetz darauf hinweisen, dass wir auf die Doppelmaklertätigkeit gem. § 5 Maklergesetz bei Wohnungsmietverträgen verzichten und nur noch einseitig tätig sind (bei den restlichen Vermittlungsarten nicht) und ein wirtschaftliches Naheverhältnis zu unseren Auftraggebern besteht.
Im Falle eines Abschlusses mit Ihnen oder einem von Ihnen namhaft gemachten Dritten bzw. bei beidseitiger Willensübereinstimmung beträgt unser Honorar (lt. Honorarverordnung für Immobilienmakler) 2 Bruttomonatsmieten (BMM) bei Dienst-/Natural-/Werkwohnungen sowie Suchaufträgen, 3 BMM bei Gewerbe-, PKW- und Lagermietverträgen sowie bei Kaufobjekten 3 % des Kaufpreises, zuzüglich der gesetzlichen Umsatzsteuer.
Dieses Objekt wird Ihnen unverbindlich und freibleibend angeboten. Oben angeführte Angaben basieren auf Informationen und Unterlagen des Eigentümers und sind unsererseits ohne Gewähr.
Nähere Informationen sowie unsere AGBs und die Nebenkostenübersichtsblatt finden Sie auf unserer Homepage www.decus.at unter "Service" - "Rechtliches zum FAGG" sowie im Anhang der zugesendeten Objekt-Exposés!
Infrastruktur / Entfernungen
Gesundheit
Arzt <500m
Apotheke <250m
Klinik <1.000m
Krankenhaus <2.500m
Kinder & Schulen
Schule <500m
Kindergarten <250m
Universität <250m
Höhere Schule <1.750m
Nahversorgung
Supermarkt <250m
Bäckerei <500m
Einkaufszentrum <1.500m
Sonstige
Geldautomat <500m
Bank <500m
Post <500m
Polizei <1.250m
Verkehr
Bus <250m
U-Bahn <1.000m
Straßenbahn <250m
Bahnhof <500m
Autobahnanschluss <750m
Angaben Entfernung Luftlinie / Quelle: OpenStreetMap
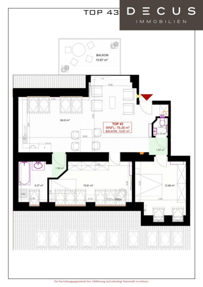
Eckdaten Objektnr. 1140319
Art: | Wohnung - Dachgeschoß |
Land: | Österreich |
Alter: | Altbau |
Kaufpreis: | 469.000,00 € |
Provision: | 3% des Kaufpreises |
Betriebskosten: | 166,20 € |
MwSt Gesamt: | 16,62 € |
Wohnfläche: | 78,26 m² |
Nutzfläche: | 88,93 m² |
Zimmer: | 3 |
Bäder: | 1 |
WC: | 1 |
Balkone: | 1 |
Heizwärmebedarf: | A 23,81 kWh/m²a |
fGEE: | A+ 0,59 |
Ihre persönliche Beratung

Ing. Nicolas Putzlager
DECUS Immobilien GmbH
T +43 660 302 61 70
H +43 660 302 61 70
F +43 1 35 600 10