Anlageobjekt: Toller Grundriss, tolle Lage- Innenhofbalkon!
Wohnung
- Terrassenwohnung,
1220
Wien
Nähe U2, Stadlau
Beschreibung der Immobilie
Anlageobjekt: Toller Grundriss, tolle Lage- Innenhofbalkon!
Es handelt sich um eine wunderschöne Terrassenwohnung im 3.Liftstock in einem Wohngebäude mit nur 8 Wohneinheiten. Im Innenhof gibt es ein Hofgebäude mit einer weiteren Wohneinheit.
Einige der Bilder stammen von der Zeit vor der Vermietung. Die Wohnung ist befristet vermietet - es gab niemals Mietausfälle..
Die Wohnung ist mit einer Hochglanz- Einbauküche mit allen Geräten ausgestattet.
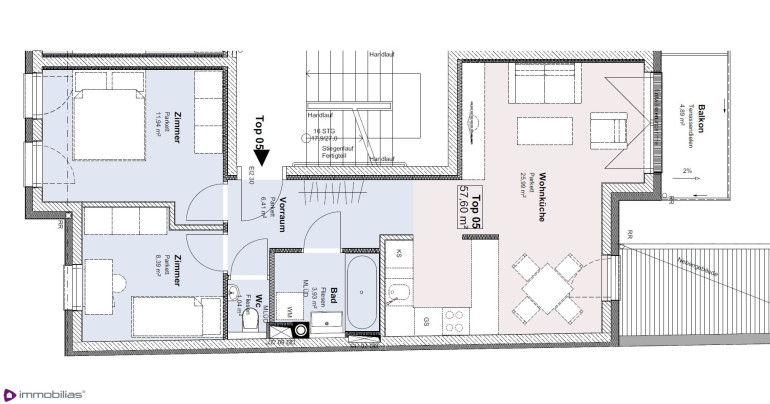
Raumaufteilung:
Wohnküche ca 25,99m²
Zimmer ca 11,94 m²
Zimmer ca 8,39 m²
Bad ca 3,93 m² (Badewanne, Waschmaschinenanschluss)
WC ca 1,04 m² (mit Handwaschbecken)
Gang/ Vorraum ca 6,41 m²
Keller ist im EG der Liegenschaft vorhanden
Balkon ca 4,89 m²
Ausstattungsdetails:
Kunststoffenster mit 3 fach Isolierglas, teilweise als Dreh- Kippfenster, teilweise als fix verglaste Elemente ausgeführt, außenliegende Raffstores, Heiz-,Trink- und Brauchwassererwärmung über zentrale Gasbrennwertkesselanlage, Kessel und Pufferspeicher in HT-Raum im Erdgeschoß in Kombination mit einer thermischen Solaranlage (Kollektorfläche 6,46m²) auf dem Dach der Gaupe straßenseitig. Wohnungsübergabestation und FB Heizverteiler in den Einzelwohnungen, Fußbodenheizung im gesamten Wohnbereich vorhanden; Böden: Feinsteinzeug bzw Parkett, Wand im Nassbereich (bis 1,20m): Fliesen, Laufen bzw Grohe Ausstattung in den Bädern/ im WC, Doppelfalztür; Verrohrung für SAT am Dach; Rauchmelder in allen Aufenthaltsräumen. Fahrradabstellraum, Kinderwagenabstellraum
Die Lage:
verkehrsgünstig durch die Nähe zur A23, in der Nähe der U2-Station Hardeggasse. In unmittelbarer Nachbarschaft befindet sich eine ausgezeichnete Infrastruktur mit Schulen, Kindergärten, Ärzten, Geschäften (Spar, Hofer, Ströck Bäckerei, Tabak), Apotheke, Banken etc. An das öffentliche Verkehrsnetz perfekt angebunden, erreichen Sie fußläufig alle wichtigen Verbindungen, wie die U2-Stationen Hardeggasse und Stadlau (ca. 800m) und die Schnellbahnen beim Bahnhof Erzherzog-Karl-Straße (ca. 550m).
Öffentlicher Verkehr:
nur ca. 3 Gehminuten: Bus: 26A, 97A, 92A, 391, 392; Straßenbahn Linie 25
U2-Bahn Station Aspern ist 2 Busstationen entfernt.
PKW: beste Anbindung über die Erzherzog-Karl- und Wagramerstraße
Sport, Erholung:
zahlreiche Grün- und Erholungsgebiete wie Lobau, Mühlwasser, Alte Donau und Donauinsel befinden sich in der näheren Umgebung.
Für alle weiteren Fragen stehe ich Ihnen gerne zur Verfügung:
Andrea Höferstock
T: 0699/1 4444 700
E: office@immobilias.at
Viele weitere Angebote finden Sie auf unserer Homepage www.immobilias.at
Bitte beachten Sie, dass wir aufgrund der Nachweispflicht gegenüber dem Eigentümer nur Anfragen mit vollständiger Anschrift und Telefonnummer bearbeiten können und auch nur in diesem Falle Auskünfte über Objektunterlagen und die genauen Liegenschaftsadresse geben dürfen.
Wir bitten um größtmögliche Diskretion und ersuchen Sie, Innenbesichtigungen und Verhandlungen ausschließlich über uns durchzuführen. Der Vollständigkeit halber halten wir fest, dass wir Ihnen bei Anmietung/ Ankauf eines von uns namhaft gemachten Objektes durch Sie oder einen durch Sie namhaft gemachten Dritten bzw. bei beidseitiger Willensübereinstimmung eine Vermittlungsprovision in der Höhe von 3 Bruttomonatsmieten bei Gewerbeimmobilien, 2 Bruttomonatsmieten bei Wohnimmobilien bzw. 3 % des Kaufpreises zuzüglich der gesetzlichen Umsatzsteuer in Rechnung stellen (Honorarverordnung für Immobilienmakler, BGBl. Nr. 262 und 297/1996).
Dieses Angebot ist unverbindlich und freibleibend. Die Angaben erfolgen aufgrund der Informationen und Unterlagen, die uns vom Eigentümer und/oder Dritten zur Verfügung gestellt werden und sind ohne Gewähr. Im übrigen gelten die allgemeinen Geschäftsbedingungen sowie die Verordnung des BM für wirtschaftliche Angelegenheiten über Standes- und Ausübungsregeln für Immobilienmakler, BGBl 297/96.
Noch nichts gefunden? Wir informieren Sie über geeignete Immobilienangebote noch vor allen anderen.
Legen Sie jetzt Ihren individuellen Suchagenten unter folgendem Link an. Wir schicken Ihnen passende Immobilien exklusiv vorab zu.
Suchagent anlegen - https://immobilias-realitaeten.service.immo/registrieren/de
Der Vermittler ist als Doppelmakler tätig.
!! Wir möchten Sie informieren – Maklervertrag Bestimmungen !!
(FAGG - Fern- u. Auswärtsgeschäfte-Gesetz - VRUG - Verbraucherrechte Richtlinie-Umsetzungsgesetz)
Alleine durch die Unterfertigung dieses Maklervertrages und die Besichtigung von Objekten entstehen Ihnen keinerlei Kosten.
Erst mit dem Abschluss eines Kaufvertrages und/ oder eines Mietvertrages tritt unsere Verdienstlichkeit ein und es wird die Provisionszahlungspflicht iSd Provisionsvereinbarung dieses Vertrages ausgelöst!
Wenn der Kaufvertrag/ Mietvertrag nicht zustande kommt, bleibt unsere Tätigkeit für Sie vollkommen kostenlos!
Bitte haben Sie dafür Verständnis, dass wir Ihnen seit dem 13. Juni 2014 aufgrund der neuen EU-Richtlinie Unterlagen und Informationen zu unseren Objekten erst dann übersenden können, wenn Sie bestätigen, dass Sie unser vorzeitiges Tätigwerdenwünschen und über Ihre Rücktrittsrechte aufgeklärt wurden. Hierfür erhalten Sie nach Ihrer Anfrage eine Email mit den entsprechenden Unterlagen und einem Link, um diese Punkte zu bestätigen.
Vielen Dank!
Bitte beachten Sie, dass wir aufgrund der Nachweispflicht gegenüber dem Eigentümer und um Ihre Rechte zu wahren nur Anfragen mit vollständigen Kontaktdaten (Name, Anschrift und Telefonnummer) bearbeiten können und auch nur in diesem Falle Auskünfte über Objektunterlagen und die genauen Liegenschaftsadresse geben dürfen. Wir bitten um größtmögliche Diskretion und ersuchen Sie, Innenbesichtigungen und Verhandlungen ausschließlich über uns durchzuführen.
Nebenkosten lt. Nebenkostenübersicht
Der Vollständigkeit halber halten wir fest, dass wir Ihnen bei Anmietung/Ankauf eines von uns namhaft gemachten Objektes durch Sie oder einen durch Sie namhaft gemachten Dritten bzw. bei beidseitiger Willensübereinstimmung eine Vermittlungsprovision in der Höhe von 3 Bruttomonatsmieten bei Gewerbeimmobilien, 2 Bruttomonatsmieten bei Wohnimmobilien bzw. 3 % des Kaufpreises zuzüglich der gesetzlichen Umsatzsteuer in Rechnung stellen (Honorarverordnung für Immobilienmakler, BGBl. Nr. 262 und 297/1996).
Dieses Angebot ist unverbindlich und freibleibend. Die Angaben erfolgen aufgrund der Informationen und Unterlagen, die uns vom Eigentümer und/oder Dritten zur Verfügung gestellt werden und sind ohne Gewähr.
Im Übrigen gelten die allgemeinen Geschäftsbedingungen sowie die Verordnung des BM für wirtschaftliche Angelegenheiten über Standes- und Ausübungsregeln für Immobilienmakler, BGBl 297/96.
Alle Angaben im Angebot basieren auf Informationen und Unterlagen des Eigentümers und erfolgen nach bestem Wissen, jedoch ohne Gewähr auf Richtigkeit.
Infrastruktur / Entfernungen
Gesundheit
Arzt <500m
Apotheke <500m
Klinik <1.000m
Krankenhaus <1.000m
Kinder & Schulen
Schule <500m
Kindergarten <500m
Universität <3.500m
Höhere Schule <3.000m
Nahversorgung
Supermarkt <500m
Bäckerei <500m
Einkaufszentrum <1.000m
Sonstige
Geldautomat <500m
Bank <500m
Post <500m
Polizei <1.000m
Verkehr
Bus <500m
U-Bahn <1.000m
Straßenbahn <500m
Bahnhof <500m
Autobahnanschluss <500m
Angaben Entfernung Luftlinie / Quelle: OpenStreetMap
Eckdaten Objektnr. 12272
Art: | Wohnung - Terrassenwohnung |
Land: | Österreich |
Baujahr: | 2018 |
Alter: | Neubau |
Kaufpreis: | 350.000,00 € |
Provision: | 3% des Kaufpreises zzgl. 20% USt. |
Betriebskosten: | 128,10 € |
MwSt Gesamt: | 12,81 € |
Wohnfläche: | 57,60 m² |
Zimmer: | 3 |
Bäder: | 1 |
WC: | 1 |
Balkone: | 1 |
Keller: | 1,48 m² |
Heizwärmebedarf: | B 30,00 kWh/m²a |
fGEE: | A 0,73 |
Ausstattung
Parkett, Fliesen, Gas, Solarenergie, Fußbodenheizung, Wohnküche / offene Küche, Personenaufzug, Badewanne
Ihre persönliche Beratung

Andrea Höferstock
Immobilias Realitäten e.U.
T +43 699 1 4444 700
H +43 699 1 4444 700