*77m2 helle Balkon-Wohnung mit Küche und Lift sofort verfügbar Nähe Augarten

Wohnung , 8020 Graz


Beschreibung der Immobilie

*77m2 helle Balkon-Wohnung mit Küche und Lift sofort verfügbar Nähe Augarten

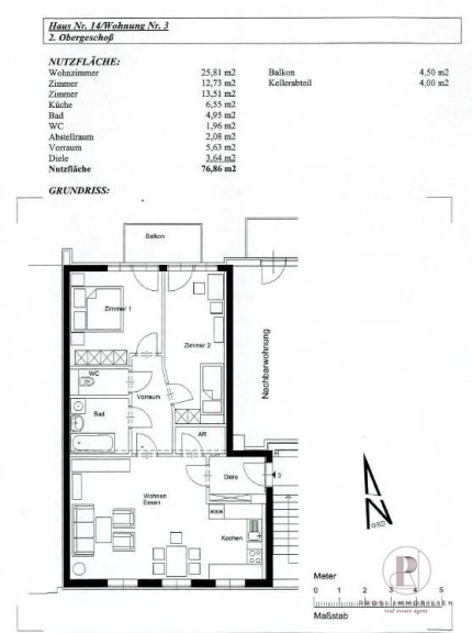
Es steht eine helle 3-Zimmer-Mietwohnung in Graz in der Zweiglgasse 11 im 2. OG zur Verfügung. Die Wohnung überzeugt durch ihre praktische Raumaufteilung, Balkon, Kellerabteil und Tiefgaragenplatz – ideal für Paare, kleine Familien oder Singles, die modernes Wohnen in zentraler Lage suchen. 



Raumaufteilung:




  • Wohn-Esszimmer mit Küche (Küchenablöse möglich)



  • 2 Schlafzimmer



  • Badezimmer



  • Separates WC



  • Abstellraum



  • Balkon



  • Kellerabteil



  • Tiefgaragenplatz inklusive




Eckdaten:




  • Wohnfläche: ca. 77 m²



  • Verfügbar: ab 1.12.2025



  • HWB (kWh/m²/Jahr): 45,09 – sehr energieeffizient



  • Mietpreis: € 918,- (inkl. Betriebskosten, Heizung, Tiefgarage & USt.)



  • Kaution: € 2757,--



  • Provisionsfrei für den Mieter





Perfekt für alle, die eine komfortable, provisionsfreie Wohnung in Graz mit guter Anbindung suchen.




Kontakt & Besichtigung:
Haben wir Ihr Interesse geweckt?

Kontaktieren Sie uns gerne für weitere Informationen oder zur Vereinbarung eines Besichtigungstermins:



Manuela Wallner 



📞 +43 676 360 66 20

📧 office@prosi-immobilien.at
🌐 www.prosi-immobilien.at





Dieangegebenen Daten stammen vom Eigentümer und/oder Dritten und wurden mit Sorgfalt erhoben. Für die Richtigkeit und Vollständigkeit kann jedoch keine Haftung übernommen werden. Zahlenangaben können gegebenenfalls gerundet oder geschätzt sein. Das Angebot ist freibleibend und unverbindlich. Irrtümer und Änderungen sind vorbehalten. Nachdruck/Vervielfältigung nur mit Genehmigung der Prosi Immobilien e.U.







Die bereitgestellten Informationen stammen vom Eigentümer und/oder dritten Personen und wurden sorgfältig zusammengetragen.

Für die Richtigkeit und Vollständigkeit wird jedoch keine Haftung übernommen.

Angaben können gerundet oder geschätzt sein. Dieses Angebot ist freibleibend und unverbindlich; Irrtümer sowie Änderungen bleiben vorbehalten.

Eine Weitergabe oder Vervielfältigung ist nur mit ausdrücklicher Zustimmung der Prosi Immobilien e.U. zulässig.


Der Immobilienmakler erklärt, dass er – entgegen dem in der Immobilienwirtschaft üblichen Geschäftsgebrauch des Doppelmaklers – einseitig nur für den Vermieter tätig ist.

Infrastruktur / Entfernungen

Gesundheit
Arzt <500m
Apotheke <500m
Klinik <500m
Krankenhaus <1.000m

Kinder & Schulen
Schule <500m
Kindergarten <500m
Universität <1.000m
Höhere Schule <1.000m

Nahversorgung
Supermarkt <500m
Bäckerei <500m
Einkaufszentrum <1.000m

Sonstige
Geldautomat <500m
Bank <500m
Post <500m
Polizei <500m

Verkehr
Bus <500m
Straßenbahn <500m
Autobahnanschluss <4.500m
Bahnhof <1.500m
Flughafen <9.000m

Angaben Entfernung Luftlinie / Quelle: OpenStreetMap

Eckdaten Objektnr. 1830/239

Art: Wohnung
Land: Österreich
Gesamtmiete: 918,77
Kaltmiete (netto): 918,77 €
Kaltmiete: 918,77 €
Provision: Gemäß Erstauftraggeberprinzip bezahlt der Abgeber die Provision.
Wohnfläche: 76,86 m²
Zimmer: 3
Bäder: 1
WC: 1
Balkone: 1
Stellplätze: 1
Keller: 4,50 m²
Heizwärmebedarf: 45,09 kWh/m²a
Immobilie merken Exposé

Ausstattung

Fernwärme, Einbauküche, Personenaufzug, Nordbalkon, Badewanne, Tiefgarage


Immobilie anfragen


Ihre persönliche Beratung

Prosi Immobilien e.U.

Manuela Wallner

Prosi Immobilien e.U.

T +436763606620