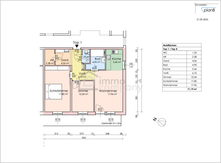
Gemeinsam statt Einsam! Wohnungen für Generation 50+ • Grünruhelage / 3 Zimmer mit Balkon und Garage! (Top 1 - 1.OG - 71 m² )

Wohnung , 7000 Eisenstadt


Beschreibung der Immobilie

Gemeinsam statt Einsam! Wohnungen für Generation 50+ • Grünruhelage / 3 Zimmer mit Balkon und Garage! (Top 1 - 1.OG - 71 m² )

Eckdaten Objektnr. 7939/2300162132

Art: Wohnung
Land: Österreich
Baujahr: 2026
Zustand: Erstbezug
Alter: Neubau
Kaufpreis: 314.500,00
Provision: 3% des Kaufpreises zzgl. 20% USt.
Wohnfläche: 71,00 m²
Zimmer: 3
Bäder: 1
WC: 1
Balkone: 1
Stellplätze: 2
Garten: 700,00 m²
Keller: 6,40 m²
Immobilie merken Exposé

Ausstattung

Fliesen, Laminatboden, Fußbodenheizung, Zentralheizung, Personenaufzug, Dusche, Kabel/Satelliten-TV, Garage, Parkplatz


Immobilie anfragen


Ihre persönliche Beratung

Immo-Company Haas & Urban Immobilien GmbH

Katharina Wiser

Immo-Company Haas & Urban Immobilien GmbH

H +43 699 18410025