Wienerwald Südhang: Einfamilienhaus mit Potenzial in Mauerbach an der Stadtgrenze Wiens (2 km)
Haus
,
3001
Mauerbach
Beschreibung der Immobilie
Wienerwald Südhang: Einfamilienhaus mit Potenzial in Mauerbach an der Stadtgrenze Wiens (2 km)
Einfamilienhaus auf 3 Ebenen in einer sensationellen Lage direkt am Waldrand des Wienerwaldes.
Es bietet einen unverbaubaren Blick ins Grüne und liegt in einer Sackgasse in absoluter Ruhelage.
- Gesamtfläche: 611qm
- Gärten: 476qm
- verbaute Fläche: 135qm
1. Gartengeschoß (ca 29,1 qm):
Sommerküche und Zimmer mit eigenem Eingang und Terrasse, beispielsweise als Einliegerwohnung adaptierbar.
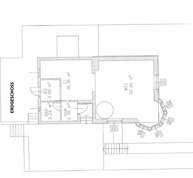
2. Wohnebene (56,95 qm):
Wohnraum mit Erker und Kamin (32,25 qm), Zimmer (15,16 qm), Bad (3,24 qm), Vorraum (2,7 qm), Küche (3,6 qm) mit Zugang zur Gartenterrasse.
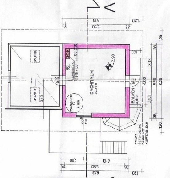
3. Dachgeschoß (30,25 qm):
2 große Zimmer mit einem Balkon und einer Terrasse (4qm und 14qm).
- Sanitäranlagen, Küche: modernisierungsbedürftig, aber funktionsfähig.
- Heizung: Deckenheizung (Elektropaneele) und Kamin im Wohnzimmer
- Garage: für 2 Autos
Es besteht die Möglichkeit des Zu- und Ausbaues, wofür es bereits eine Architektenstudie gibt, die auf Wunsch übermittelt werden kann.
Anbindung an das öffentliche Verkehrsnetz Wien:
Die Liegenschaft liegt an der Wiener Stadtgrenze und eignet sich für Naturliebhaber und Ruhesuchende, für die es wichtig ist in Wien Nähe zu sein ohne lange Pendlerstrecken. Zum Bus 49 B sind es ca 1,5 km, zue S50 Station Hadersfeld sind es 5,5km.
Hinweis gemäß Energieausweisvorlagegesetz: Ein Energieausweis wurde vom Eigentümer bzw. Verkäufer, nach unserer Aufklärung über die generell geltende Vorlagepflicht, sowie Aufforderung zu seiner Erstellung noch nicht vorgelegt. Daher gilt zumindest eine dem Alter und der Art des Gebäudes entsprechende Gesamtenergieeffizienz als vereinbart. Wir übernehmen keinerlei Gewähr oder Haftung für die tatsächliche Energieeffizienz der angebotenen Immobilie.
Der Vermittler ist als Doppelmakler tätig.
Infrastruktur / Entfernungen
Gesundheit
Arzt <1.500m
Apotheke <1.500m
Krankenhaus <7.500m
Klinik <8.000m
Kinder & Schulen
Schule <3.500m
Kindergarten <3.500m
Universität <5.000m
Nahversorgung
Supermarkt <1.500m
Bäckerei <2.000m
Einkaufszentrum <5.000m
Sonstige
Geldautomat <2.000m
Bank <2.000m
Post <2.000m
Polizei <1.500m
Verkehr
Bus <500m
Straßenbahn <7.000m
U-Bahn <7.500m
Bahnhof <4.500m
Autobahnanschluss <5.500m
Angaben Entfernung Luftlinie / Quelle: OpenStreetMap
Eckdaten Objektnr. 5998/569
Art: | Haus |
Land: | Österreich |
Baujahr: | 1960 |
Kaufpreis: | 500.000,00 € |
Wohnfläche: | 117,00 m² |
Gesamtfläche: | 611,00 m² |
Balkone: | 1 |
Terrassen: | 1 |
Stellplätze: | 2 |
Garten: | 476,00 m² |
Ausstattung
Einbauküche, Dusche, Garage
Ihre persönliche Beratung

GUDRUN BOGNER
VM Estates GmbH
T +43 1 30 84 175
H +43 676 3536 778