Modern wohnen in Meidling! Neubau 3-Zimmer-Erstbezug mit Loggia im 5. Liftstock - Top68
Wohnung
- Terrassenwohnung,
1120
Wien,Meidling
Diese charmanter Erstbezug im 12. Bezirk von Wien besticht durch ihre hervorragende Lage mit SO-Loggia. Nur wenige Schritte entfernt finden Sie den Meidlinger Markt, die U4 sowie den idyllischen Schönbrunner Schlosspark. Die unmittelbare Umgebung bietet eine optimale Infrastruktur mit Ärzten, Apotheken, Schulen, Kindergärten und Universitäten. Supermärkte, Bäckereien und ein Einkaufszentrum sorgen für Ihr leibliches Wohl, während Bus, U-Bahn und Straßenbahn beste Verkehrsanbindungen garantieren. Ein ideales Zuhause für urbane Genießer!
Beschreibung der Immobilie
Modern wohnen in Meidling! Neubau 3-Zimmer-Erstbezug mit Loggia im 5. Liftstock - Top68
Willkommen in Ihrem neuen Zuhause in 1120 Wien!
Das moderne Neubauprojekt in der Arndtstraße, Ecke Längenfeldgasse besticht durch moderner Ausstattung, durchdachten Grundrissen und sonnigen Freibereichen. Den Eigentümern steht ein Spiel- Gemeinschaftsraum mit Küche, und ein eigenes Kellerabteil zur Verfügung. Ein Stellplatz in der hauseigenen Tiefgarage kann optional erworben werden!
Derzeit stehen noch 8 Wohneinheiten (2 - 3 Zimmer) mit Aussenbereichen von ca. 40 - 70 m2 in den Regelgeschoßen, und 5 sonnendurchflutete DG-Wohnungen mit Terrassen und Top-Ausstattungen zum Verkauf! Alle Wohnungen finden Sie auf unserer homepage unter tmu-real.at.
Dieses Projekt erhielt bereits eine unabhängige DGNB Gold Zertifizierung und eine EU-Taxonomie-Verifikation wird angestrebt!
Die Eigentumswohnungen sind für Eigennutzer, aber auch für Anleger bestens geeignet.
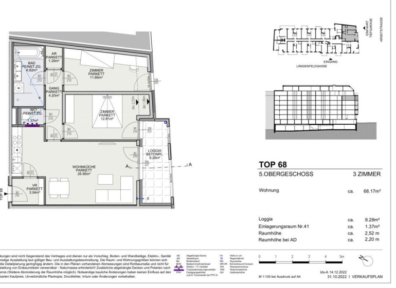
Wohnungsbeschreibung Top 68 im 5. Liftstock:
Mit einer großzügigen Fläche von 68,17 m² und drei hellen, freundlichen Zimmern (Wohnküche und zwei Schlafzimmer) ist diese Wohnung der ideale Rückzugsort für Singles, Paare oder kleine Familien. Der Erstbezug garantiert Ihnen, dass Sie in eine frische und neu gestaltete Umgebung einziehen können, die keine Wünsche offenlässt. Genießen Sie die Vorzüge einer hochwertigen Ausstattung mit stilvollen Fliesen und warmem Parkettboden, die in Kombination mit der Fußbodenheizung (Fernwärme) für ein angenehmes Wohnklima sorgen.
Die Wohnung besticht nicht nur durch ihre Innenausstattung, sondern auch durch die durchdachte Raumaufteilung. Ein modernes Badezimmer mit Doppelwaschtisch, Badewanne und separater Dusche lädt zum Entspannen ein. Das separate WC ist mit einem Handwaschbecken ausgestattet. Und für die sonnigen Tage des Jahres ist die einladende Loggia der perfekte Ort, um die frische Luft zu genießen und die Aussicht über die Stadt zu bewundern. Auch ein praktischer Abstellraum steht zur Verfügung.
AUSSTATTUNG
- Eichenparkettböden
- Markensanitärprodukte
- Paketboxenanlage
- Videogegensprechanlage
- Smarte Hausverwaltungsapp
- Energieeffiziente Fußbodenheizung mittels Fernwärme
Auf Wunsch senden wir Ihnen gerne eine detaillierte Bau- und Ausstattungsbeschreibung.
Die hervorragende Verkehrsanbindung macht das Pendeln zum Kinderspiel. Ob Bus, U-Bahn, Straßenbahn oder Bahnhof – hier sind Sie bestens vernetzt und erreichen schnell Ihr gewünschtes Ziel. Zudem profitieren Sie von einer Vielzahl an Einrichtungen in unmittelbarer Nähe: Ärzte, Apotheken, Kliniken, Schulen, Kindergärten, eine Universität und ein Einkaufszentrum sind nur einige der Annehmlichkeiten, die Ihnen das Leben hier versüßen.
Lassen Sie sich diese einmalige Gelegenheit nicht entgehen! Kontaktieren Sie uns noch heute für eine Besichtigung und entdecken Sie, wie Ihr neues Zuhause in 1120 Wien aussieht. Ihr Traum vom eigenen Heim wartet auf Sie!
Mit der Kaufvertragserrichtung und treuhändigen Abwicklung ist die Rechtsanwaltskanzlei Pressl & Feitsch in 1030 Wien, Hetzgasse 45 beauftragt. Die Kosten hierfür belaufen sich auf 1,5% des KP zzgl. Umsatzsteuer und Beglaubigungskosten.
Dieses Objekt wird Ihnen unverbindlich und freibleibend zum Kauf angeboten.
Oben angeführte Angaben basieren auf Informationen und Unterlagen des Eigentümers und sind unsererseits ohne Gewähr.
Als Vermittlungshonorar gelten die allgemeinen Geschäftsbedingungen und die Verordnung für Immobilienmakler des BM für Handel, Gewerbe und Industrie, BGBL. 297/1996. Für den Fall, dass es diesbezüglich zu einem entsprechenden Rechtsgeschäft kommt, verrechnen wir Ihnen eine Vermittlungsprovision von 3 Prozent der Kaufsumme zuzüglich der gesetzlichen Mehrwertsteuer.
Für weitere Informationen bzw. Ihren Besichtigungstermin steht Ihnen unser Herr Musser unter 0699/11105690 oder per Mail unter office@tmu-real.at gerne zur Verfügung!
Infrastruktur / Entfernungen
Gesundheit
Arzt <500m
Apotheke <500m
Klinik <500m
Krankenhaus <1.500m
Kinder & Schulen
Schule <500m
Kindergarten <500m
Universität <500m
Höhere Schule <1.000m
Nahversorgung
Supermarkt <500m
Bäckerei <500m
Einkaufszentrum <1.000m
Sonstige
Geldautomat <1.000m
Bank <1.000m
Post <500m
Polizei <500m
Verkehr
Bus <500m
U-Bahn <500m
Straßenbahn <1.000m
Bahnhof <500m
Autobahnanschluss <3.500m
Angaben Entfernung Luftlinie / Quelle: OpenStreetMap
Eckdaten Objektnr. 4976/1243
Art: | Wohnung - Terrassenwohnung |
Land: | Österreich |
Baujahr: | 2024 |
Zustand: | Erstbezug |
Alter: | Neubau |
Kaufpreis: | 569.500,00 € |
Provision: | 3% des Kaufpreises zzgl. 20% USt. |
Wohnfläche: | 68,17 m² |
Nutzfläche: | 76,75 m² |
Zimmer: | 3 |
Bäder: | 1 |
WC: | 1 |
Keller: | 3,00 m² |
Heizwärmebedarf: | B 26,40 kWh/m²a |
fGEE: | A 0,73 |
Ausstattung
Parkett, Estrichboden, Fliesen, Fernwärme, Fußbodenheizung, Wohnküche / offene Küche, Personenaufzug, Badewanne, Dusche, Kabel/Satelliten-TV, Parkplatz(Duplex), Tiefgarage
Ihre persönliche Beratung

Thomas Musser
TMU-Realitäten
T +43 699/1110 5690
H +43 699 111 056 90
F +43 2687/42 396