Beschreibung der Immobilie
Mehr Raum. Mehr Natur. Mehr Leben.
Willkommen in Wiener Neudorf, einem der begehrtesten Wohnorte südlich von Wien.
Die Top-Lage am Reisenbauerring verbindet Ruhe, Grün und Urbanität:
• In wenigen Minuten in Wien dank A2, S1, Wiener Lokalbahn und Bus
• Alles vor der Tür: Supermärkte, Ärzte, Apotheken, Schulen, Kindergärten
• Shopping & Freizeit deluxe: SCS, Restaurants und Naherholungsgebiete direkt ums Eck
• Parks, Spielplätze und Spazierwege für entspannte Auszeiten
Hier wohnen Sie mitten im Grünen – und bleiben trotzdem bestens vernetzt.
Highlights, die begeistern
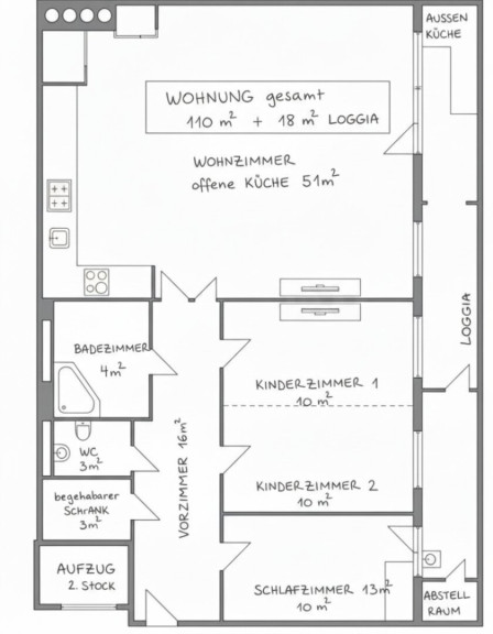
• 110 m² Wohnfläche + 18 m² Loggia – großzügig und lichtdurchflutet
• 51 m² XXL-Wohnzimmer mit offener Küche (Siemens/AEG-Geräte, Einbaukaffeemaschine)
• Teilbares Hauptschlafzimmer – einfach 3 Schlafzimmer plus Wohnzimmer realisierbar
• Klimaanlage & Fußbodenheizung – perfektes Wohnklima zu jeder Jahreszeit
• Zwei Parkplätze (Hausverwaltung, ca. € 50/Monat)
• Stilvolle Laminat- und Fliesenböden
Modernisierungen & Pflege
Diese Wohnung wurde laufend modernisiert und präsentiert sich in erstklassigem Zustand:
• Badezimmer komplett erneuert (ca. 2000)
• Schlafzimmer neu gestaltet (ca. 4 Jahre)
• Schrankraum neu eingebaut
Hier können Sie wirklich sofort einziehen.
Flexible Raumaufteilung
Aktuell verfügt die Wohnung über 3 Zimmer – ein Schlafzimmer, ein großes Kinder-/Arbeitszimmer und der weitläufige Wohn-/Essbereich.
Mit einer einfachen Teilung entstehen 4 Zimmer: 3 Schlafzimmer und ein großzügiges Wohnzimmer – ideal für wachsende Familien, Homeoffice oder Gäste.
Fakten auf einen Blick
• Wohnfläche: ca. 110 m²
• Loggia: ca. 18 m²
• Zimmer: 3–4 (bei Teilung)
• Stockwerk: 2
• Kaufpreis: 425.000 €
• Provision: 3 % des Kaufpreises zzgl. USt.
Ihr neues Zuhause
Diese Wohnung vereint Großzügigkeit, Flexibilität und Top-Lage – ein echtes Highlight für alle, die Qualität, Ruhe und Citynähe schätzen.
Besichtigung kostenlos & unverbindlich. Kommen Sie vorbei, fühlen Sie den Raum und entscheiden Sie in Ruhe.
Sachen packen & einziehen – hier beginnt Ihr neues Kapitel.
Rafaela Simic, BA
Konzessionierte Immobilienmaklerin
📞 +43 676 380 2529
📧 r.simic@immofuchsgruppe.com
Infrastruktur / Entfernungen
Gesundheit
Arzt <500m
Apotheke <500m
Klinik <2.500m
Krankenhaus <1.000m
Kinder & Schulen
Kindergarten <500m
Schule <1.000m
Universität <9.500m
Höhere Schule <2.500m
Nahversorgung
Supermarkt <500m
Bäckerei <500m
Einkaufszentrum <1.000m
Sonstige
Bank <1.000m
Geldautomat <1.000m
Post <1.000m
Polizei <1.500m
Verkehr
Bus <500m
U-Bahn <5.000m
Straßenbahn <5.000m
Bahnhof <500m
Autobahnanschluss <1.500m
Angaben Entfernung Luftlinie / Quelle: OpenStreetMap
Eckdaten Objektnr. 8014/337
Art: | Wohnung |
Land: | Österreich |
Baujahr: | 1977 |
Zustand: | Gepflegt |
Alter: | Neubau |
Kaufpreis: | 425.000,00 € |
Provision: | 3% des Kaufpreises zzgl. 20% USt. |
Betriebskosten: | 184,00 € |
Heizkosten: | 150,00 € |
Sonstige Kosten: | 178,00 € |
Wohnfläche: | 110,00 m² |
Zimmer: | 3,50 |
Bäder: | 1 |
WC: | 1 |
Heizwärmebedarf: | C 54,00 kWh/m²a |
fGEE: | C 1,19 |
Ausstattung
Fliesen, Laminatboden, Fußbodenheizung, Personenaufzug, Parkplatz
Ihre persönliche Beratung

BA Rafaela Simic
FiFu24 Immobilien GmbH
T +43 6763802529
H +43 6763802529