Sonnige DG-Maisonette-Wohnung in Stockerau – viel Platz für die ganze Familie!
Wohnung
- Dachgeschoß,
2000
Stockerau
Beschreibung der Immobilie
Sonnige DG-Maisonette-Wohnung in Stockerau – viel Platz für die ganze Familie!
Traumhafte Maisonette-Wohnung in Stockerau – viel Platz für die ganze Familie!
Zum Verkauf gelangt eine charmante Maisonette-Eigentumswohnung, welche sich befindet in ruhiger Lage befindet und nur wenige Minuten vom Stadtzentrum entfernt ist. Es handelt sich um eine Wohngegend mit idealer Infrastruktur für Familien: Schulen, Kindergärten, Einkaufsmöglichkeiten sowie öffentliche Verkehrsmittel sind in unmittelbarer Nähe erreichbar. Auch die Anbindung nach Wien ist hervorragend – mit der Schnellbahn oder dem Auto sind Sie in kurzer Zeit in der Hauptstadt.
Die Wohnung
Die großzügig geschnittene Wohnung erstreckt sich über das 1. und 2. Dachgeschoss einer gepflegten Wohnanlage. Mit einer Wohnnutzfläche von ca. 102 m² bietet sie ausreichend Platz für die ganze Familie. Ein durchdachter Grundriss, helle Räume und die robuste Bauweise sorgen für ein behagliches Wohngefühl.
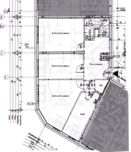
1. Dachgeschoss (ca. 64,5 m²):
- Vorraum (13,02 m²)
- WC (1,54 m²)
- Badezimmer mit Einbauwanne (8,51 m²)
- Zimmer (13,96 m²) – ideal als Kinderzimmer
- Zimmer (10,79 m²) – z. B. als Büro oder weiteres Kinderzimmer
- Zimmer (14,68 m²) – perfekt als Elternschlafzimmer
- Abstellraum (2,02 m²)
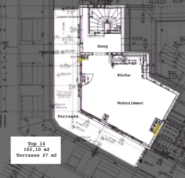
2. Dachgeschoss (ca. 37,6 m²):
- Gang (5,37 m²)
- Großzügige Wohnküche (32,21 m²) mit Zugang zur Terrasse
Highlight: Sonnenterrasse
Von der lichtdurchfluteten Wohnküche gelangen Sie direkt auf die vorgelagerte Terrasse mit ca. 27 m².
Zusätzliche Nutzflächen
- Ein Kellerabteil mit ca. 5,33 m²
- Ein Tiefgaragenstellplatz
- Optional: eine zusätzliche Garage kann angemietet werden
Bauweise & Ausstattung
- Massive Bauweise, Mansarddach
- Vollwärmeschutzfassade mit Kunstharzputz
- Holz- und Kunststofffenster mit Isolierverglasung
- Laminat- und Fliesenböden
- Fernwärme-Zentralheizung mit Warmwasseraufbereitung
Kosten
Die Betriebskosten inklusive Verwaltung und Erhaltungsbeitrag betragen EUR 484,14 brutto.
Der Instandhaltungsfonds weist per 05.2025 ein Guthaben in Höhe von rund € 40.300,00 auf.
Die Höhe des monatlichen Nutzungsgeldes, inklusive Darlehensrückzahlung sowie Kosten für die Garage und die Zusatzgarage, beträgt € 400,02.
Auf das gegenständliche Objekt bestehen Wohnbauförderungsdarlehen. Bei vorzeitiger Auszahlung der Darlehen, gilt keine verpflichtende Hauptwohnsitzmeldung.
Die Wohnung wurde im Zuge einer geförderten Wohnbaufinanzierung errichtet. Bitte beachten Sie, dass gemäß den Förderbedingungen eine Spekulationsfrist von 15 Jahren ab Kaufdatum gilt. Ein Weiterverkauf ist daher aktuell nur unter Berücksichtigung dieser rechtlichen Rahmenbedingungen möglich und für Eigennutzer geeignet.
Der Vermittler ist als Doppelmakler tätig.
Infrastruktur / Entfernungen
Gesundheit
Arzt <500m
Apotheke <500m
Klinik <9.000m
Krankenhaus <500m
Kinder & Schulen
Kindergarten <500m
Schule <500m
Universität <9.500m
Nahversorgung
Supermarkt <500m
Bäckerei <500m
Sonstige
Bank <500m
Geldautomat <500m
Post <1.000m
Polizei <1.000m
Verkehr
Bus <500m
Autobahnanschluss <1.000m
Bahnhof <1.000m
Flughafen <3.000m
Angaben Entfernung Luftlinie / Quelle: OpenStreetMap
Eckdaten Objektnr. 7194
| Art: | Wohnung - Dachgeschoß |
| Land: | Österreich |
| Baujahr: | 2009 |
| Zustand: | Neuwertig |
| Möbliert: | Voll |
| Alter: | Neubau |
| Kaufpreis: | 440.000,00 € |
| Provision: | 3% des Kaufpreises zzgl. 20% USt. |
| Betriebskosten: | 300,96 € |
| MwSt Gesamt: | 33,08 € |
| Wohnfläche: | 102,10 m² |
| Zimmer: | 4 |
| Bäder: | 1 |
| WC: | 1 |
| Terrassen: | 1 |
| Stellplätze: | 1 |
| Keller: | 5,33 m² |
| Heizwärmebedarf: | B 32,00 kWh/m²a |
| fGEE: | A+ 0,70 |
Ausstattung
Fliesen, Laminatboden, Zentralheizung, Wohnküche / offene Küche, Personenaufzug, Bad mit Fenster, Badewanne, Tiefgarage
Ihre persönliche Beratung
Dieser Makler ist ein offizielles Mitglied des IR – ir.at Mehr Erfahren
