Beschreibung der Immobilie
Altbauwohnung mit Gestaltungsspielraum in gefragter Lage
Sanierungsbedürftige 3-Zimmer-Altbauwohnung mit separaten Küche nahe Augarten
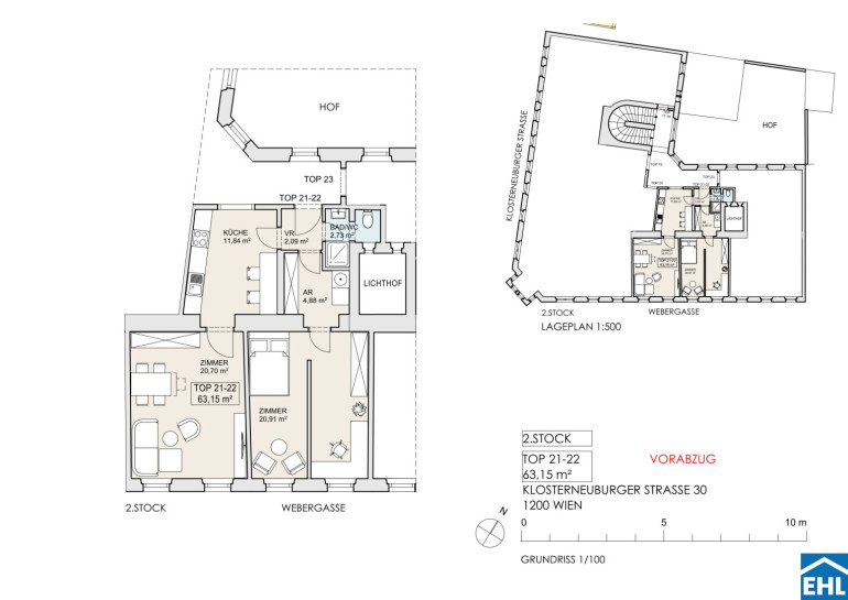
Zum Verkauf steht eine unsanierte 3-Zimmer-Wohnung im 2. Obergeschoß eines Altbaus aus dem Jahr 1900. Die Liegenschaft befindet sich in der Webergasse 19, an der Ecke zur Klosterneuburger Straße, nur wenige Gehminuten vom beliebten Augarten entfernt.
Die Wohnung selbst bietet eine kompakte Raumaufteilung mit Vorraum, Küche, Wohnzimmer und 1,5 Schlafzimmer sowie Badezimmer. Aufgrund des Sanierungsbedarfs können Käufer ihre eigenen Vorstellungen von Raumgestaltung und Ausstattung einbringen und so ein individuelles Zuhause schaffen.
Das Wohnhaus selbst präsentiert sich in einem gepflegten und kürzlich modernisierten Zustand. Der Eingangsbereich wurde stilvoll erneuert und mit einem digitalen schwarzen Brett ausgestattet. Gleichzeitig wurde großer Wert darauf gelegt, den authentischen Altbaucharme zu bewahren: Die originalen Mosaikfliesen, kunstvoll gearbeiteten Stiegenhausgeländer sowie die historischen Bassenas auf den Etagen sind noch erhalten und verleihen dem Haus besonderen Charakter.
Wir dürfen darauf hinweisen, dass das Haus derzeit über keinen Lift verfügt. Der Verkäufer verpflichtet sich jedoch vertraglich zur Errichtung eines Liftes bis spätestens 2028.
Die Lage & Infrastruktur
Die Wohnlage punktet durch eine ausgezeichnete Infrastruktur: Zahlreiche Einkaufsmöglichkeiten (Supermärkte, Bäckereien, Apotheken), Cafés und Restaurants befinden sich in unmittelbarer Umgebung. Die Klosterneuburger Straße verbindet urbanes Leben mit entspanntem Wohnen.
Öffentliche Verkehrsmittel:
U-Bahn: U4 „Friedensbrücke“ (ca. 6 Gehminuten)
Straßenbahnlinien: 1, 2, 5, 31, 33, O
Bus: Linie 5B
Damit ist sowohl die Wiener Innenstadt als auch der Franz-Josefs-Bahnhof oder die U6-Station Jägerstraße schnell erreichbar.
Der Verkauf erfolgt mit einer Vermittlungsprovision in Höhe von 3 % des Kaufpreises.
Der Vermittler ist als Doppelmakler tätig.
Infrastruktur / Entfernungen
Gesundheit
Arzt <150m
Apotheke <225m
Klinik <825m
Krankenhaus <1.400m
Kinder & Schulen
Schule <225m
Kindergarten <75m
Universität <600m
Höhere Schule <775m
Nahversorgung
Supermarkt <50m
Bäckerei <75m
Einkaufszentrum <1.200m
Sonstige
Geldautomat <125m
Bank <125m
Post <300m
Polizei <500m
Verkehr
Bus <75m
U-Bahn <375m
Straßenbahn <75m
Bahnhof <375m
Autobahnanschluss <1.150m
Angaben Entfernung Luftlinie / Quelle: OpenStreetMap
Eckdaten Objektnr. 89042
| Art: | Wohnung |
| Land: | Österreich |
| Baujahr: | 1900 |
| Zustand: | Gepflegt |
| Alter: | Altbau |
| Kaufpreis: | 329.000,00 € |
| Provision: | 3% des Kaufpreises zzgl. 20% USt. |
| Betriebskosten: | 127,45 € |
| MwSt Gesamt: | 12,75 € |
| Wohnfläche: | 63,15 m² |
| Zimmer: | 2 |
| Bäder: | 1 |
| WC: | 1 |
| Heizwärmebedarf: | D 120,80 kWh/m²a |
| fGEE: | F 3,76 |
Ausstattung
Parkett, Fliesen, Gas, Etagenheizung, Einbauküche, Dusche
Ihre persönliche Beratung
Dieser Makler ist ein offizielles Mitglied des IR – ir.at Mehr Erfahren
