***ERSTBEZUG - LUXURIÖSES, KLIMATISIERTES DG-PENTHOUSE IN WIEN 23 - 4 ZIMMER, 4 TERRASSEN & TIEFGARAGE***
Wohnung
- Penthouse,
1230
Wien,Liesing
Der 23. Bezirk, Wien-Liesing ist der jüngste und gleichzeitig südlichste Bezirk von Wien. Er befindet sich in der Übergangszone zwischen Urbanität und ländlichem Charakter. Der Objektstandort befindet sich im östlichen Teil des Bezirkes, dessen Wohnhäuser ein typisches Vorstadtflair, mit zwei- bis dreigeschoßiger Bauweise, vermitteln.
Beschreibung der Immobilie
***ERSTBEZUG - LUXURIÖSES, KLIMATISIERTES DG-PENTHOUSE IN WIEN 23 - 4 ZIMMER, 4 TERRASSEN & TIEFGARAGE***
Über den folgenden Link gelangen Sie zu der Videobesichtigung:
Highlights
- 4 Zimmer mit Klimaanlage
- 4 Terrassen insg: 45m2
- inkl. Tiefgarage
- Fußbodenheizung
- Hochwertige Eichen-Parkettfußböden mit Schweizerleiste
- Vollausgestattete Küche
- RC-3-Eingangstüren
- Niedrigenergiehaus
Für eine Führung durch die Immobilie kontaktieren Sie +43/681/8132-2073 oder schreiben Sie uns eine Nachricht über die Plattform.
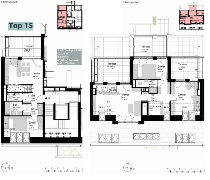
Willkommen in Ihrem neuen Zuhause in 1230 Wien – einer bezaubernden Dachgeschoß-Penthouse-Wohnung, die Ihnen nicht nur modernen Komfort, sondern auch eine hervorragende Lebensqualität bietet. Diese neu gebaute Erstbezugswohnung im Dachgeschoß vereint stilvolles Wohnen mit praktischen Annehmlichkeiten und einer idyllischen Umgebung. Jeder Raum ist mit einer Klimaanlage ausgestattet.
Mit einer Fläche von 121,18 m² auf zwei Ebene und einem durchdachten Grundriss ist diese 4-Zimmer-Wohnung ideal für Familie oder Paare, die das urbane Leben in vollen Zügen genießen möchten. Das Herzstück dieser Immobilie ist der lichtdurchflutete Wohnbereich, der Ihnen dank der großen Fenster und des herrlichen Grünblicks ein Gefühl von Weite und Freiheit vermittelt. Genießen Sie entspannte Stunden auf Ihrer eigenen 4 Terrassen, die zum Verweilen und Entspannen einladen.
Die Wohnung ist mit hochwertigen Materialien ausgestattet, darunter elegante Fliesen und warmes Parkett die ein harmonisches Wohnambiente schaffen. Die moderne Einbauküche ist nicht nur funktional, sondern auch ein echter Hingucker – perfekt für Ihre individuellen Kochkünste. Die Fußbodenheizung sorgt zudem für wohlige Wärme an kalten Tagen. Zum oberen Stockwerk führt eine Holztreppe.
Ein weiteres Highlight dieser Immobilie ist die umweltfreundliche Solarenergie, die nicht nur Ihre Energiekosten senkt, sondern auch einen Beitrag zum nachhaltigen Wohnen leistet. Von den zwei Badezimmern verfügt das im unteren Stockwerk über eine Badewanne, während das im oberen Stockwerk mit einer Dusche ausgestattet ist.
Die Verkehrsanbindung könnte nicht besser sein: Die Bushaltestelle Meischlgasse ist 100 Meter entfernt. Zur Badner Bahn sind es 300 Meter. Und die U6,
Haltestelle Erlaaer Straße, ist in 5 Gehminuten erreichbar. Als Autofahrer gelangt man über die Triester Straße in
wenigen Minuten zur A 21 – Knoten Vösendorf.
Die Lage dieser Wohnung bietet zudem eine hervorragende Infrastruktur. In der Nachbarschaft finden Sie alles, was das Herz begehrt: Ärzte, Apotheken, Schulen, Kindergärten und Supermärkte sind bequem zu Fuß erreichbar. Genießen Sie die Vorzüge des urbanen Lebens, während Sie gleichzeitig die Ruhe der grünen Umgebung schätzen.
Der Kaufpreis von 749.000,-€ macht dieses Objekt zu einer attraktiven Investition in Ihre Zukunft. Vor allem, da im Preis auch eine Tiefgarage einkalkuliert ist. Nutzen Sie die Gelegenheit, Eigentümer dieser hochwertigen Wohnung zu werden, die Ihnen nicht nur ein Zuhause, sondern auch einen Lebensstil voller Komfort und Lebensqualität bietet.
Zögern Sie nicht – kontaktieren Sie uns noch heute für weitere Informationen oder eine Besichtigung! Ihr neues Zuhause wartet auf Sie. Für eine Führung durch die Immobilie kontaktieren Sie +43/681/8132-2073 oder schreiben Sie uns eine Nachricht über die Plattform.
Wir möchten Sie informieren, dass ein Provisionsanspruch erst nach Unterzeichnung eines Miet- oder Kaufanbots besteht. Besichtigungen und Auskünfte sind selbstverständlich unverbindlich und kostenlos. Oben angeführte Angaben basieren auf Informationen und Unterlagen des Eigentümers und sind unsererseits ohne Gewähr. Wir dürfen gem. § 5 Maklergesetz darauf hinweisen, dass wir als Doppelmakler tätig sind und ein wirtschaftliches Naheverhältnis zu unserem Auftraggeber besteht.
Wir weisen darauf hin, dass zwischen dem Vermittler und dem zu vermittelnden Dritten ein familiäres oder wirtschaftliches Naheverhältnis besteht.
Der Vermittler ist als Doppelmakler tätig.
Infrastruktur / Entfernungen
Gesundheit
Arzt <1.000m
Apotheke <500m
Klinik <1.500m
Krankenhaus <1.500m
Kinder & Schulen
Schule <500m
Kindergarten <500m
Universität <5.000m
Höhere Schule <4.000m
Nahversorgung
Supermarkt <500m
Bäckerei <1.500m
Einkaufszentrum <1.500m
Sonstige
Geldautomat <1.000m
Bank <1.500m
Post <1.500m
Polizei <1.500m
Verkehr
Bus <500m
U-Bahn <500m
Straßenbahn <2.500m
Bahnhof <500m
Autobahnanschluss <1.000m
Angaben Entfernung Luftlinie / Quelle: OpenStreetMap
Eckdaten Objektnr. 6352/2310
Art: | Wohnung - Penthouse |
Land: | Österreich |
Baujahr: | 2023 |
Zustand: | Erstbezug |
Alter: | Neubau |
Kaufpreis: | 749.000,00 € |
Provision: | 3% des Kaufpreises zzgl. 20% USt. |
Betriebskosten: | 239,25 € |
Heizkosten: | 109,47 € |
Sonstige Kosten: | 76,85 € |
Wohnfläche: | 121,18 m² |
Nutzfläche: | 166,18 m² |
Zimmer: | 4 |
Bäder: | 2 |
WC: | 2 |
Terrassen: | 4 |
Keller: | 2,00 m² |
Heizwärmebedarf: | B 29,80 kWh/m²a |
fGEE: | A 0,74 |
Ausstattung
Parkett, Fliesen, Solarenergie, Fußbodenheizung, Einbauküche, Personenaufzug, Badewanne, Dusche, Tiefgarage
Ihre persönliche Beratung

AURELIUM REAL ESTATE
AURELIUM REAL ESTATE GmbH
T +43 680 3221752
H +4367761616848