Neubaujuwel „Villenperle“ – Exklusives Zweifamilienhaus in Wörgls Villengegend
Haus
- Mehrfamilienhaus,
6300
Wörgl
Das Projekt entsteht in Wörgl Prof. Hans Hömbergstraße. Im Zentrum der aufstrebenden Einkaufsstadt Wörgl, inmitten eines ruhigen Wohngebiets geprägt durch schöne Einfamilienhäuser. Frische Luft, schöne Aussicht und eine gute Infrastrukturanbindung mit Bus und Bahn in die weite Welt. Wörgl ist eine Stadt mit 14.059 Einwohnern im Inntal im Bezirk Kufstein in Tirol, etwa 55 Kilometer östlich der Landeshauptstadt Innsbruck gelegen. Die Gemeinde liegt im Gerichtsbezirk Kufstein. Der Großraum Wörgl beheimatet etwa 31.000 Einwohner. Wörgl ist das bedeutendste Handelszentrum im Nordtiroler Unterland, der wichtigste Wirtschaftszweig der Stadt ist der regionale Einzelhandel, in dem zahlreiche wichtige Handelsketten und Branchen vertreten sind. Die Wörgler Bahnhofstraße ist die zweit- längste Einkaufsstraße Tirols. Die Liegenschaft in der Professor Hömbergstr. Wörgl befindet sich in einer der schönsten und exklusivsten Gegenden der Stadt. Die Perle Wörgls, wie die Villengegend auch genannt wird, bietet einen herrlichen Blick auf die umliegenden Berge und eine ruhige und grüne Wohnatmosphäre. Die Infrastruktur ist hervorragend, denn das Stadtzentrum mit seinen zahlreichen Einkaufs- und Freizeitmöglichkeiten ist nur wenige Minuten entfernt. Auch die Anbindung an den öffentlichen Verkehr ist optimal, denn der Bahnhof Wörgl ist ein wichtiger Eisenbahnknotenpunkt in Tirol. Für Erholung und Naturerlebnis sorgen die nahe gelegenen Wander- und Radwege, die Kundler Klamm oder das Komma Veranstaltungszentrum, ein vielseitiges Kultur- und Eventzentrum mit einem abwechslungsreichen Programm. Die Liegenschaft in der Professor Hömbergstr. Wörgl ist somit eine ideale Wahl für alle, die das Leben in einer Villengegend mit der Nähe zur Stadt und zur Kultur verbinden möchten.
Beschreibung der Immobilie
Neubaujuwel „Villenperle“ – Exklusives Zweifamilienhaus in Wörgls Villengegend
Neubaujuwel „Villenperle“ – Exklusives Zweifamilienhaus in Wörgls Villengegend
Fertiggestellt seit 29.09.2025
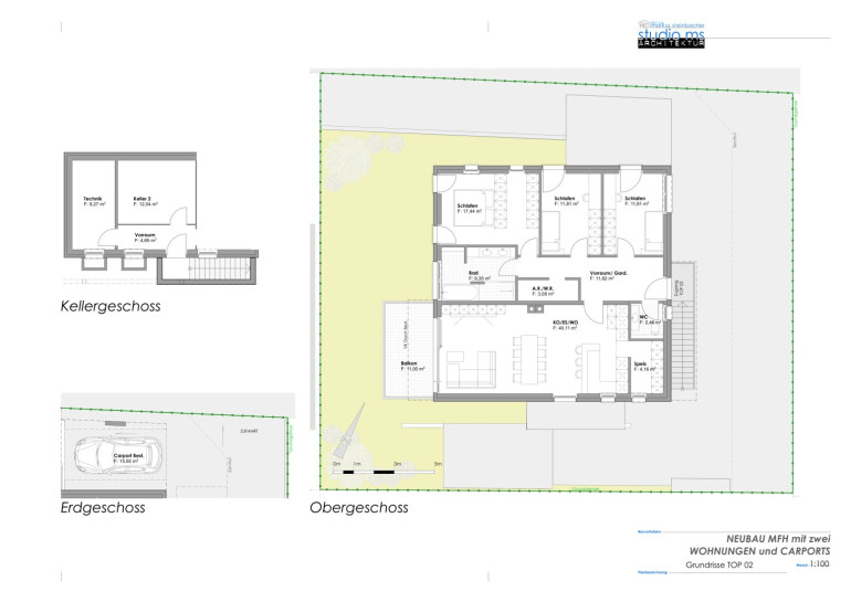
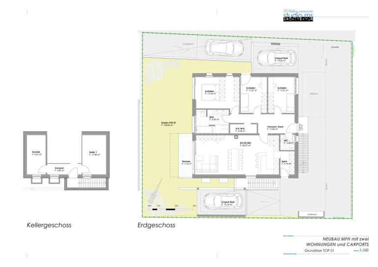
In Wörgls begehrtester Wohngegend entstand ein außergewöhnliches Zweifamilienhaus mit nur zwei exklusiven Wohneinheiten: einer Gartenwohnung mit Privatgarten und einer Penthouse-Wohnung mit Südwest-Balkon. Die Kombination aus hochwertiger Bauweise, moderner Technik und absoluter Ruhelage macht die „Villenperle“ zu einem einmaligen Angebot – ob als Mehrgenerationenhaus, Eigennutzerobjekt oder sichere Kapitalanlage.
Highlights der Liegenschaft:
- 224 qm Wohnfläche gesamt (2 × 112 qm)
- Exklusive Aufteilung: Gartenwohnung mit 111 qm Garten + Terrasse | Penthouse mit 11 qm Balkon
- Zwei Kamine für gemütliche Wohnatmosphäre
- 6 Stellplätze inkl. 2 Carports mit E-Ladestationen
- Hochwertige Ausstattung:
- Fußbodenheizung mit moderner Luftwärmepumpe
- Echtholzböden & Designfliesen
- Echtholztüren passend zum Parkett
- Elektrische Raffstores & 3-fach-Verglasung
- Glasfaser-Internet & Videosprechanlage
- Großzügige Kellerflächen (24 qm gesamt)
- Massivbauweise & Niedrigenergiehaus-Standard
- Provisionsfrei – direkt vom Bauträger
Lagevorteile:
- Villengegend Wörgl – absolute Ruhelage
- Kindergarten, Schulen, Ärzte, Einkauf fußläufig
- Bahnhof in 10 Gehminuten erreichbar – perfekte Anbindung
Investmentchance:
- Kaufpreis: 1.525.000 €
- Mögliche Jahresnettomiete: ca. 57.600 €
- Bruttorendite: ca. 3,8 % p.a.
Ob als exklusives Familiendomizil oder als sichere Anlage mit langfristiger Wertbeständigkeit – die „Villenperle“ in Wörgl bietet eine seltene Gelegenheit in Premiumlage.
Noch nichts gefunden? Wir informieren Sie über geeignete Immobilienangebote noch vor allen anderen.
Legen Sie jetzt Ihren individuellen Suchagenten unter folgendem Link an. Wir schicken Ihnen passende Immobilien exklusiv vorab zu.
Suchagent anlegen - https://zefi-immobilien.service.immo/registrieren/de
Infrastruktur / Entfernungen
Gesundheit
Arzt <1.000m
Apotheke <1.000m
Klinik <1.000m
Kinder & Schulen
Schule <500m
Kindergarten <1.000m
Nahversorgung
Supermarkt <500m
Bäckerei <500m
Einkaufszentrum <1.000m
Sonstige
Bank <1.000m
Geldautomat <1.000m
Post <1.500m
Polizei <1.000m
Verkehr
Bus <500m
Autobahnanschluss <1.000m
Bahnhof <1.500m
Angaben Entfernung Luftlinie / Quelle: OpenStreetMap
Eckdaten Objektnr. 5390/1052
Art: | Haus - Mehrfamilienhaus |
Land: | Österreich |
Baujahr: | 2024 |
Zustand: | Erstbezug |
Alter: | Neubau |
Kaufpreis: | 1.525.000,00 € |
Kaufpreis / m²: | 5.888,03 € |
Provision: | Provision bezahlt der Abgeber. |
Betriebskosten: | 500,00 € |
Wohnfläche: | 224,00 m² |
Nutzfläche: | 259,00 m² |
Grundstücksfl.: | 470,00 m² |
Zimmer: | 8 |
Bäder: | 2 |
WC: | 4 |
Balkone: | 1 |
Terrassen: | 1 |
Stellplätze: | 6 |
Garten: | 111,00 m² |
Keller: | 24,00 m² |
Heizwärmebedarf: | B 30,08 kWh/m²a |
fGEE: | A+ 0,65 |
Ausstattung
Parkett, Fliesen, Fußbodenheizung, Kamin, Zentralheizung, Einbauküche, Wohnküche / offene Küche, Bad mit Fenster, Badewanne, Dusche, Kabel/Satelliten-TV, Carport
Ihre persönliche Beratung

Klaudio Zefi
Zefi Immobilien GmbH
T +43 5332 22818
H +43 699 16 18 75 75