Traumhaus in Laakirchen – Großzügiges Wohnen, Sonnengarten & Poolparadies
Haus
- Einfamilienhaus,
4663
Laakirchen
Das wunderschöne Haus liegt in einem schönen und ruhigen Teil von Laakirchen, im Bezirk Gmunden, in einer Lage mit viel Privatsphäre. Trotz der idyllischen Ruhe überzeugt die Lage durch eine ausgezeichnete Infrastruktur: Schulen, Kindergärten, Ärzte, Apotheken, Supermärkte, Bäckereien, Fitnessstudios und eine Bushaltestelle sind in unmittelbarer Nähe und erleichtern den Alltag erheblich. Ein großer Vorteil von Laakirchen ist die nähe zur Autobahn A1, die eine schnelle Anbindung an umliegende Städte ermöglicht – gleichzeitig genießen Sie hier die Ruhe und Idylle einer naturnahen Umgebung. Die Nähe zur bezaubernden Stadt Gmunden mit dem Traunsee und den umliegenden Bergen sorgt für ideale Möglichkeiten für Freizeitaktivitäten, Naturgenuss und Erholung. Dieses Haus ist das perfekte Zuhause für alle, die Wert auf großzügige Wohnflächen, hochwertige Ausstattung, Privatsphäre und einen traumhaften Garten legen. Hier verbinden sich höchste Lebensqualität, moderner Wohnkomfort und beste Verkehrsanbindung – eine Kombination, die in Laakirchen einzigartig ist.

























Beschreibung der Immobilie
Traumhaus in Laakirchen – Großzügiges Wohnen, Sonnengarten & Poolparadies
Willkommen in Ihrem neuen Zuhause in Laakirchen – ein hochwertig gebautes Einfamilienhaus, das keine Wünsche offenlässt: ca. 160 m² lichtdurchflutete Wohnfläche, ein großzügiges Untergeschoss mit ca. 85 m² zusätzlicher Nutzfläche sowie eine Doppelgarage mit rund 42 m² schaffen viel Raum für Familie, Beruf und Erholung. Dazu kommt ein Gartenparadies mit Pool und Pergola, wie man es sonst nur im Urlaub findet. Hier vereinen sich Wohnkomfort, Natur und Lebensqualität zu einem perfekten Gesamtpaket – inklusive idealer Möglichkeiten, Arbeiten und Wohnen perfekt zu verbinden.
Highlights auf einen Blick:
Großzügiger Wohn-/Ess-/Kochbereich (ca. 57 m²) mit lichtdurchfluteten, stilvoll gestalteten Fensterflächen, traumhaftem Kamin & direktem Gartenzugang
Riesiger Sonnengarten mit weitläufiger Rasenfläche, stilvollen Terrassen, Außendusche, charmante Pergola, gemütlicher Grillplatz und eigenem Gärtnerbereich für Gemüse, Kräuter & Blumen
8,5 x 4 m Salzwasserpool mit türkisfarbenem Wasser – Urlaubsfeeling pur
Vielseitig nutzbares Untergeschoss (ca. 85 m²) – ideal für Homeoffice, kleine Firma, Fitnessraum, Bar oder Wellnessoase
Elternschlafzimmer mit Schrankraum & direktem Badzugang
Kinderbereich mit zwei hellen Zimmern (zusammenlegbar), eigenem Bad & WC
Offene Lobby als Lesegalerie mit Blick auf den Traunstein
Balkon, neu erweitert – Belag & Absturzsicherung frei wählbar
Doppelgarage mit ca. 42,25 m² & Starkstromanschluss + 3 Stellplätze davor
Super Zustand: Laufend gepflegt, instandgehalten und modernisiert auf aktuellem Standard.
Hochwertige Bauweise: 38 cm Thermoziegel, PREFA-Aludach, Wohnraumlüftung, neue Trappa-Parkettböden im Erdgeschoss (2023)
Moderne Haustechnik: Luftwärmepumpe (2023), PV-Anlage, Wohnraumlüftung, Grünbeck-Wasserenthärtungsanlage, Staubsaugeranlage, Wäscheschacht
Die Geschosse im Überblick
Untergeschoss:
Das Untergeschoss mit ca. 85 m² ist sowohl von außen als auch von innen begehbar und wurde von den aktuellen Eigentümern, einer Unternehmerfamilie, als großzügiger Büro- und Lagerbereich genutzt. Durch den separaten Zugang können Kunden direkt ins Büro gelangen, ohne den privaten Wohnbereich zu betreten – ideal für Homeoffice oder den Betrieb einer kleinen Firma. Dank Fenster und Fußbodenheizung sind die Räume hell und wohnlich, sodass sie sich ebenso perfekt als Fitnessraum, Bar, Wellnessoase, Hobby- oder Partybereich nutzen lassen. Zusätzlich stehen Abstellräume und ein Heiz-/Waschraum mit eigner Dusche und viel Stauraum zur Verfügung.
Erdgeschoss:
Ein stilvoller Eingangsbereich mit praktischem Garderobenraum führt in den beeindruckenden Wohn-, Koch- und Essbereich mit ca. 57 m². Große, lichtdurchflutete, stilvoll gestaltete Fensterflächen sorgen für viel Licht, Eleganz und Ausblicke in den Traumgarten. Der gemütliche Kamin macht den Raum zum perfekten Rückzugsort. Zusätzlich bietet diese Ebene ein weiteres Zimmer mit eigenem Terrassenzugang, das bisher als moderner Behandlungsraum genutzt wurde, sich aber flexibel als Arbeits-, Gäste- oder Schlafzimmer nutzen lässt, sowie ein modern ausgestattetes Gäste-WC mit Pissoir.
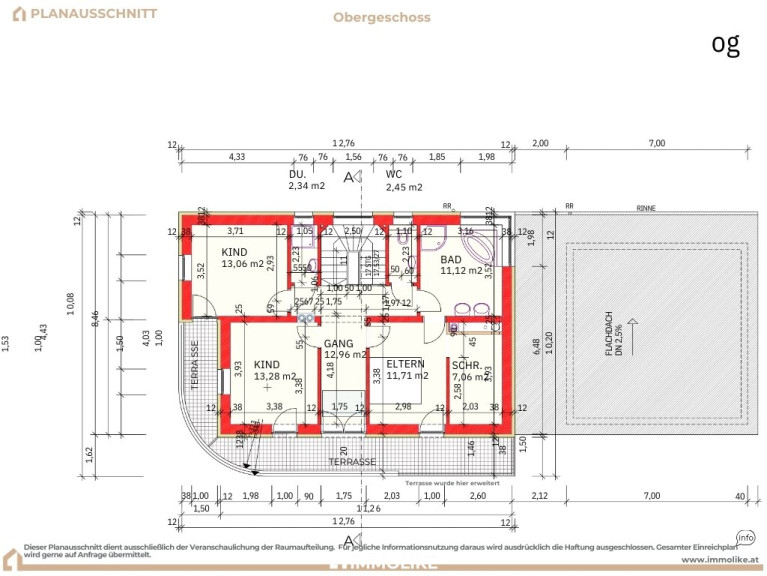
Obergeschoss:
Im Obergeschoss erwarten Sie das helle Elternschlafzimmer mit Schrankraum und direktem Zugang zum großzügigen Badezimmer mit Dusche und Badewanne. Zwei weitere Kinderzimmer bieten viel Platz und Flexibilität – bei Bedarf lassen sie sich auch zusammenlegen. Besonders charmant ist die offene Lobby, die derzeit als gemütliche Leseecke mit Traunsteinblick genutzt wird. Ein eigenes WC, eine zusätzliche Dusche sowie der neu erweiterte Balkon komplettieren diese Ebene. Der künftige Eigentümer kann Belag und Absturzsicherung nach eigenen Vorstellungen gestalten.
Garage:
Die Doppelgarage misst ca. 42,25 m² und bietet Platz für zwei Fahrzeuge sowie zusätzlichen Stauraum. Vor der Garage stehen drei weitere Stellplätze zur Verfügung – auch Starkstromanschlüsse für Elektroautos sind vorhanden.
Der Garten – Ihr privates Paradies
Das Haus ist perfekt auf dem Grundstück platziert, wodurch der große Garten optimal genutzt werden kann. Weite Rasenflächen laden zu Freizeitaktivitäten wie Fußball oder Volleyball ein, während die herrliche Pergola mit gemauertem Grill viel Platz für gesellige Abende bietet. Das Highlight ist der ca. 8,5 x 4 m große, betonierte Salzwasserpool, dessen türkisfarbenes Wasser mediterranes Urlaubsflair verbreitet.
Ein eigener Gärtnerbereich mit Hochbeeten, kleinem Gartenhäuschen und idealer Sonneneinstrahlung rundet das Gartenparadies ab – hier gedeihen Tomaten, Kräuter & Co. besonders gut. Absolute Privatsphäre ist durch die clevere Grundstücksplanung und die dichte Heckenbepflanzung garantiert.
Betriebskosten & Sonstiges:
Die unter den Betriebskosten angeführten monatlichen 80,16 € resultieren aus einer Rückrechnung der Quartals-Gebührenvorschreibung der Gemeinde Laakirchen (240,5 € pro Quartal).
Die Beheizung des Hauses erfolgt durch eine effiziente Luftwärmepumpe. Die Stromkosten für den gesamten Haushalt, die Luftwärmepumpe, Wohnraumlüftung, E-Auto-Ladetätigkeiten etc. sind vom Verbrauch und Stromtarif abhängig. Auf Anfrage nennen wir Ihnen gerne die derzeitigen Stromkosten.
Flächenangaben gemäß übergebenen Planunterlagen, Gartenfläche gem. Grundbuchangabe (Bepflanzungen, Pool, Terrassen, etc. nicht abgezogen)
Möbel können nach gesonderter Vereinbarung übernommen werden
Fazit:
Dieses Einfamilienhaus in Laakirchen vereint alles, was man sich von einem Traumzuhause wünscht: großzügige Wohnflächen, hochwertige Ausstattung, einen riesigen Sonnengarten mit Pool und Pergola sowie moderne Haustechnik auf höchstem Niveau.
Ein Haus zum Ankommen und Wohlfühlen – hier genießen Sie Privatsphäre, Natur und Wohnqualität in perfekter Balance.
Bei Interesse kontaktieren Sie uns!
Klicken Sie einfach auf „Anbieter kontaktieren“, um eine kostenlose Besichtigung zu vereinbaren oder weitere Informationen zu erhalten.
Gerne sind wir auch per E-Mail an office@immolike.at oder telefonisch unter 0664 22 15 440 für Sie da.
Wir freuen uns auf Ihre Nachricht!
IMMOLIKE
Der Vermittler ist als Doppelmakler tätig.
Infrastruktur / Entfernungen
Gesundheit
Arzt <1.000m
Apotheke <1.000m
Krankenhaus <7.000m
Klinik <1.500m
Kinder & Schulen
Schule <1.500m
Kindergarten <500m
Nahversorgung
Supermarkt <500m
Bäckerei <500m
Einkaufszentrum <6.000m
Sonstige
Bank <1.000m
Geldautomat <500m
Post <1.500m
Polizei <1.500m
Verkehr
Bus <500m
Straßenbahn <6.000m
Bahnhof <5.000m
Autobahnanschluss <3.000m
Flughafen <5.000m
Angaben Entfernung Luftlinie / Quelle: OpenStreetMap
Eckdaten Objektnr. 1660/65
Art: | Haus - Einfamilienhaus |
Land: | Österreich |
Baujahr: | 2006 |
Möbliert: | Voll |
Alter: | Neubau |
Kaufpreis: | 869.000,00 € |
Provision: | 3% des Kaufpreises zzgl. 20% USt. |
Betriebskosten: | 80,16 € |
Wohnfläche: | 159,99 m² |
Nutzfläche: | 244,29 m² |
Grundstücksfl.: | 1.020,00 m² |
Zimmer: | 5 |
Bäder: | 2 |
WC: | 2 |
Balkone: | 1 |
Terrassen: | 2 |
Stellplätze: | 4 |
Garten: | 766,00 m² |
Keller: | 84,30 m² |
Heizwärmebedarf: | C 53,20 kWh/m²a |
fGEE: | A 0,73 |
Ausstattung
Parkett, Fliesen, Fußbodenheizung, Einbauküche, Wohnküche / offene Küche, Südbalkon, Westbalkon, Bad mit Fenster, Badewanne, Dusche, DV-Verkabelung, Kabel/Satelliten-TV, Garage, Parkplatz, Parkplatz(Duplex), Swimmingpool, Wasch/Trockenraum
Ihre persönliche Beratung

Ing. Marko Tarabic
IMMOLIKE e.U.
T 06642215440
H 06642215440