Top-Lage in der Grazer Innenstadt – Ihr neuer Gastro-Standort.

Gastgewerbe - Gastronomie/Restaurant, 8010 Graz


Die Lage im Herzen der Grazer Innenstadt zählt zu den belebtesten und bietet mit ihrer hohen Passantenfrequenz eine ausgezeichnete Ausgangslage für gastronomische Betriebe. In direkter Umgebung finden sich zahlreiche touristische Highlights, Shoppingmöglichkeiten und Kultureinrichtungen, die das Umfeld zu einem Hotspot für Einheimische wie auch Gäste machen. INFRASTRUKTUR UND VERSORGUNG: Die unmittelbare Umgebung ist geprägt von einem engmaschigen Netz an Nahversorgern – ideal, um den täglichen Betriebsbedarf unkompliziert abzudecken. Ein Supermarkt (Eurospar) befindet sich nur 230 Meter entfernt, Drogerien wie dm und BIPA sind innerhalb von 200 bis 300 Metern erreichbar. Bäckerei und Metzgerei liegen ebenfalls in einem Radius von maximal 300 Metern. Ebenso in Gehweite befinden sich mehrere Banken (ab 430 m), eine Postfiliale (760 m) sowie mehrere Trafiken – die nächste sogar direkt um die Ecke in nur 80 m Entfernung. Die nächste Tankstelle ist gut 1,3 Kilometer entfernt und somit für Lieferanten ebenfalls leicht erreichbar. Das direkte Umfeld ist gastronomisch stark durchmischt und belebt: In einem Radius von weniger als 500 Metern befinden sich zahlreiche Cafés, Bars, Restaurants und Imbisslokale, darunter mehrere direkt an der Adresse selbst – ein klarer Hinweis auf ein etabliertes Gastro-Cluster. Auch zwei Kinos (ab 570 m) und diverse Freizeit- sowie Kultureinrichtungen wie Museen und Theater ziehen zusätzliche Laufkundschaft an. In Graz insgesamt profitiert man von einer dynamischen Innenstadt mit hoher Arbeitsplatzdichte (695 Jobs pro 1.000 Einwohner) und einem überdurchschnittlichen Beschäftigungsanteil im Dienstleistungssektor von über 92 % – ideale Voraussetzungen für eine wirtschaftlich tragfähige Gastro-Lage. BILDUNGSEINRICHTUNGEN: Für ein Gastronomieunternehmen ist besonders relevant, dass sich in der Umgebung viele junge, mobile Zielgruppen aufhalten – dies ist hier klar gegeben. Mehrere Bildungseinrichtungen liegen im fußläufigen Umkreis: Eine Volksschule ist 200 Meter, weiterführende Schulen ab 500 Metern entfernt. Innerhalb von rund 1,2 Kilometern erreicht man auch Hochschulen und Institute, was auf eine studentische Frequenz hinweist. Graz ist zudem Universitätsstadt – mit Institutionen wie der Karl-Franzens-Universität, der TU Graz, der Med Uni Graz und diversen Fachhochschulen, was dem Standort zusätzlich jugendliches und internationales Flair verleiht. VERKEHRSANBINDUNG: Die verkehrstechnische Anbindung ist hervorragend. Die nächste Straßenbahnhaltestelle liegt nur 30 Meter, die nächste Bushaltestelle 110 Meter entfernt – beide direkt an der beliebten Murinsel/Schlossbergbahn. Der Hauptbahnhof Graz ist in rund 1,7 Kilometern erreichbar und sorgt für eine unkomplizierte Erreichbarkeit sowohl für Personal als auch für Gäste. Die starke Erreichbarkeit zu Fuß, mit dem Rad oder den Öffis ist ein weiterer Pluspunkt: Über 45 % der Menschen in Graz nutzen umweltfreundliche Verkehrsmittel auf dem Weg zur Arbeit – ein deutliches Zeichen für die Urbanität und Attraktivität des Standorts.

Beschreibung der Immobilie

Top-Lage in der Grazer Innenstadt – Ihr neuer Gastro-Standort.

Inmitten der belebten Grazer Innenstadt befindet sich dieses rund 220 m² große Geschäftslokal in begehrter Innenstadtlage nahe dem Grazer Hauptplatz. Die Fläche bietet ein attraktives Potenzial für gastronomische oder alternative gewerbliche Nutzungen. Die Lage in unmittelbarer Nähe zu touristischen Hotspots, Einkaufsstraßen und öffentlichen Verkehrsmitteln garantiert hohe Sichtbarkeit und Kundenfrequenz.





DIE VORTEILE DIESES OBJEKTS AUF EINEN BLICK:




  • Begehrte Innenstadtlage nahe dem Grazer Hauptplatz – hoher Fußgängeranteil



  • Nur ca. 300 Meter vom Hauptplatz entfernt



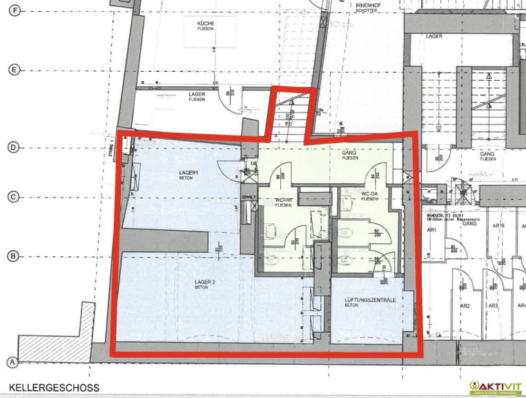
  • Gesamtnutzfläche: ca. 220,33 m²



  • 5 Räume + 2 separate WCs



  • Gute Sichtbarkeit und Laufkundschaft durch Nähe zu Murinsel, Schlossberg und Kultureinrichtungen



  • Monatliche Betriebskosten brutto inkl. USt: 630,71 €



  • Ablöse für bestehende Einrichtung und Infrastruktur: 99.000 €






DAS OBJEKT



Das Objekt befindet sich im Erdgeschoss eines gepflegten Altbaus in zentraler Innenstadtlage. Die gesamte Nutzfläche von ca. 220,33 m² verteilt sich auf fünf großzügige Räume sowie zwei separate Sanitärbereiche. Die Aufteilung eignet sich sowohl für Gastronomie als auch für andere gewerbliche Nutzungskonzepte – etwa Einzelhandel, Studio oder Dienstleistungsflächen. Die Raumstruktur bietet ausreichend Flexibilität für eine individuelle Gestaltung.



Aufgrund der früheren gastronomischen Nutzung sind infrastrukturelle Voraussetzungen für einen Gastronomiebetrieb grundsätzlich gegeben.





ZUSTAND UND AUSSTATTUNG



Das Gebäude stammt aus dem Jahr 1900 und wurde in massiver Ziegelbauweise errichtet. Der Energieausweis weist einen Heizwärmebedarf (HWB) von 71 kWh/m²a sowie einen Gesamtenergieeffizienzfaktor (fGEE) von 1,16 aus – beide Werte liegen im Bereich C und damit in einem wirtschaftlich akzeptablen Rahmen.



Die Ausstattung ist dem Baujahr entsprechend solide, die Substanz gut erhalten. Etwaige individuelle Adaptierungen oder Modernisierungen können je nach Nutzungskonzept erfolgen.



Heizung, Böden und Einbauten sind nicht näher beschrieben und sollten bei einer Besichtigung geprüft werden.





DIE BETRIEBSKOSTEN




  • Monatliche Betriebskosten brutto (inkl. 20 % USt): 630,71 €



  • Monatliche Gesamtmiete inkl. Betriebskosten: 2.146,06 €



  • Ablösebetrag: 99.000 € (einmalig)




.

 



Zur Beantwortung weiterer Fragen sowie für Besichtigungstermine stehe ich Ihnen gerne täglich -auch am Wochenende - von 08:00 bis 22:00 Uhr zur Verfügung.



Ich freue mich über Ihre Kontaktaufnahme,

Said Kikic

+43 664 21 71 678
s.kikic@aktivit.org


Der Vermittler ist als Doppelmakler tätig.

Erteilen Sie uns ihren Suchauftrag und profitieren Sie von vielen Vorteilen und exklusiven Angeboten!
Ganz einfach und kostenlos unter: Jetzt Suchauftrag eingeben.

Infrastruktur / Entfernungen

Gesundheit
Arzt <500m
Apotheke <500m
Klinik <1.500m
Krankenhaus <500m

Kinder & Schulen
Schule <500m
Kindergarten <500m
Universität <1.000m
Höhere Schule <1.000m

Nahversorgung
Supermarkt <500m
Bäckerei <500m
Einkaufszentrum <1.000m

Sonstige
Geldautomat <500m
Bank <500m
Post <1.000m
Polizei <500m

Verkehr
Bus <500m
Straßenbahn <500m
Autobahnanschluss <5.500m
Bahnhof <500m
Flughafen <10.000m

Angaben Entfernung Luftlinie / Quelle: OpenStreetMap

Eckdaten Objektnr. 1193

Art: Gastgewerbe - Gastronomie/Restaurant
Land: Österreich
Baujahr: 1900
Alter: Altbau
Kaltmiete (netto): 2.146,06 €
Kaltmiete: 2.146,06 €
Provision: 3 Bruttomonatsmieten zzgl. 20% USt.
Nutzfläche: 220,33 m²
Gesamtfläche: 220,33 m²
Zimmer: 5
WC: 2
Heizwärmebedarf:  C  71,00 kWh/m²a
fGEE:  C  1,16
Immobilie merken Exposé

Immobilie anfragen


Ihre persönliche Beratung

AKTIVIT & Future in Living - Immobilien GmbH

Said Kikic

AKTIVIT - Future in Living - Immobilien

T +43 664 21 71 678