Generalsaniertes Geschäftslokal im Tullnerbacher Zentrum
                                                            Einzelhandel
                                ,
                            
                            
                                
                                                                            3013
                                    
                                                                            Tullnerbach
                                    
                                    
                                
                                                                    
                                        
                                    
                                
                            
                        
                        Beschreibung der Immobilie
Generalsaniertes Geschäftslokal im Tullnerbacher Zentrum
Dieses Geschäftslokal, die ehemalige Blumeninsel, besticht vor allem durch die Top-Lage direkt im Tullnerbacher Ortszentrum an der B44. Zahlreiche Nahversorger (Fleischhauer Ströbel und Billa) sowie sämtliche Infrastruktureinrichtungen wie z.B. Gemeindezentrum, Ärzte und Gastronomiebetriebe sind im nächsten Umkreis vorhanden.
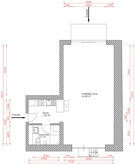
Das Objekt eignet sich zum Beispiel als Büro-, Geschäfts- oder Ladenlokal für Einzelhandel etc. (keine Gastronomie). Neben einer etwa 45 m² Geschäftsfläche, stehen außerdem eine Küche und ein Badezimmer (Dusche, WC, Waschbecken, Pissoir und Waschmaschine) zur Verfügung.
Die monatliche Gesamtmiete beträgt € 970,-- und beinhaltet Betriebskosten und MwSt. Verbrauchsabhängige Kosten wie Strom und Gas sowie eventuelle Telefon- und/oder Internetgebühren sind von den Mietern direkt mit dem jeweiligen Anbieter abzurechnen.
 
Der Bahnhof Tullnerbach–Pressbaum mit regelmäßigen S-Bahnverbindungen nach Wien und St. Pölten liegt nur etwa fünf Gehminuten entfernt. Eine Bushaltestelle Richtung Purkersdorf befindet sich in unmittelbarer Nähe, die Wiener Stadtgrenze erreicht man in rund zehn Autominuten.
Der Vermittler ist als Doppelmakler tätig.
Infrastruktur / Entfernungen
Gesundheit
Arzt <500m
Apotheke <500m
Klinik <8.000m
Kinder & Schulen
Schule <500m
Kindergarten <500m
Nahversorgung
Supermarkt <500m
Bäckerei <500m
Sonstige
Bank <500m
Geldautomat <500m
Post <1.000m
Polizei <1.000m
Verkehr
Bus <500m
Bahnhof <500m
Autobahnanschluss <1.500m
Angaben Entfernung Luftlinie / Quelle: OpenStreetMap
Eckdaten Objektnr. 95261
| Art: | Einzelhandel | 
| Land: | Österreich | 
| Zustand: | Teil_vollrenoviert | 
| Kaltmiete (netto): | 970,00 € | 
| Kaltmiete: | 970,00 € | 
| Provision: | 3.492,00 € inkl. 20% USt. | 
| Bürofläche: | 57,00 m² | 
| Bäder: | 1 | 
| Heizwärmebedarf: | E 157,00 kWh/m²a | 
| fGEE: | D 2,02 | 
Ausstattung
Fliesen, Gas, Fußbodenheizung, Dusche, Teeküche
Ihre persönliche Beratung
 
                                                        Maximilian Cypris
Rudi Dräxler Immobilientreuhand GesmbH
T +43 1 577 44 34
H +43 664 915 6444
 
                 
                 
                 
                 
                