| PROVISIONSFREI | DACHTERRASSE | KLIMATISIERT |
Wohnung
,
2345
Brunn am Gebirge
,
Richard Wagner-Gasse
Brunn am Gebirge
Beschreibung der Immobilie
| PROVISIONSFREI | DACHTERRASSE | KLIMATISIERT |
Provisionsfreier Neubau mit außergewöhnlicher Architektur
Ausstattung
Heizsystem: Moderne Wärmepumpe für energieeffiziente und nachhaltige Beheizung
Sonnenschutz: Raffstores-Außenjalousien für optimalen Licht- und Wärmeschutz
Freiflächen:
Jede Wohnung verfügt über eine Terrasse, einen Balkon oder eine Dachterrasse
Erdgeschosswohnungen mit großzügigen Privatgärten
Dachgeschoss:
Exklusive Dachterrassen mit weitem Blick
Klimaanlage in allen DG-Wohnungen
Bodenbeläge: Individuelle Auswahlmöglichkeit – im Kaufpreis inkludiert
Küchen: Wohnungen werden ohne Küche übergeben, ansonsten voll ausgestattet
Provisionsfrei: Alle Wohnungen sind provisionsfrei
Stellplätz: Kosten eines Stellplatzes EUR 30.000
Eckdaten
Anzahl der Wohnungen: 17
Tiefgaragenstellplätze: 27
Wohnungsgrößen: Unterschiedliche Grundrisse für individuelle Bedürfnisse
Gebäudeart: Moderner Neubau mit hochwertiger Bauweise
Status: Provisionsfreier Erwerb
Lage
Das Projekt befindet sich in Brunn am Gebirge, einer begehrten Wohngegend im Süden Wiens:
Verkehrsanbindung: Nähe zur Autobahnauffahrt ermöglicht schnelle Anbindungen in die Stadt und in die umliegenden Regionen
Infrastruktur: Einkaufsmöglichkeiten, Schulen, Kindergärten und Freizeitangebote befinden sich in unmittelbarer Umgebung
Lebensqualität: Ruhige Lage kombiniert mit idealer Erreichbarkeit der Stadt Wien
Bitte nehmen Sie zur Kenntnis, dass es sich bei den gezeigten Fotos um andere Wohnungen dieses Projekts, bzw. KI generierte Inhalte handeln kann. Bitte orientieren Sie sich am Plan.
Wir weisen darauf hin, dass zwischen dem Vermittler und dem zu vermittelnden Dritten ein familiäres oder wirtschaftliches Naheverhältnis besteht.
DECUS Immobilien GmbH – Wir beleben Räume
Für weitere Informationen und Besichtigungen steht Ihnen gerne Herr Ing. Nicolas Putzlager unter der Mobilnummer +43 660 302 61 70und per E-Mail unter putzlager@decus.at persönlich zur Verfügung.
www.decus.at | office@decus.at
Wichtige Informationen
Bitte beachten Sie, dass per 13.06.2014 eine neue Richtlinie für Fernabsatz- und Auswärtsgeschäfte in Kraft getreten ist.
Ab 1.4.2024 entfallen die Grundbuchs- und Pfandrechtseintragungsgebühren vorübergehend für Eigenheime bis zu einer Bemessungsgrundlage von EUR 500.000,-. Voraussetzung ist das dringende Wohnbedürfnis, ausgenommen davon sind vererbte oder geschenkte Immobilien. Die Befreiung ist jedoch für den Einzelfall zu prüfen, DECUS Immobilien übernimmt hierzu keine Haftung.
Ab 01.07.2023 gilt das Erstauftraggeber-Prinzip bei Wohnungsmietverträgen, ausgenommen davon sind Dienst-/Natural-/Werkswohnungen. Wir dürfen gem. § 17 Maklergesetz darauf hinweisen, dass wir auf die Doppelmaklertätigkeit gem. § 5 Maklergesetz bei Wohnungsmietverträgen verzichten und nur noch einseitig tätig sind (bei den restlichen Vermittlungsarten nicht) und ein wirtschaftliches Naheverhältnis zu unseren Auftraggebern besteht.
Im Falle eines Abschlusses mit Ihnen oder einem von Ihnen namhaft gemachten Dritten bzw. bei beidseitiger Willensübereinstimmung beträgt unser Honorar (lt. Honorarverordnung für Immobilienmakler) 2 Bruttomonatsmieten (BMM) bei Dienst-/Natural-/Werkwohnungen sowie Suchaufträgen, 3 BMM bei Gewerbe-, PKW- und Lagermietverträgen sowie bei Kaufobjekten 3 % des Kaufpreises, zuzüglich der gesetzlichen Umsatzsteuer.
Dieses Objekt wird Ihnen unverbindlich und freibleibend angeboten. Oben angeführte Angaben basieren auf Informationen und Unterlagen des Eigentümers und sind unsererseits ohne Gewähr.
Nähere Informationen sowie unsere AGBs und die Nebenkostenübersichtsblatt finden Sie auf unserer Homepage www.decus.at unter "Service" - "Rechtliches zum FAGG" sowie im Anhang der zugesendeten Objekt-Exposés!
Infrastruktur / Entfernungen
Gesundheit
Arzt <250m
Apotheke <500m
Klinik <3.500m
Krankenhaus <2.500m
Kinder & Schulen
Schule <750m
Kindergarten <750m
Universität <8.500m
Höhere Schule <4.500m
Nahversorgung
Supermarkt <500m
Bäckerei <1.000m
Einkaufszentrum <1.750m
Sonstige
Bank <500m
Geldautomat <500m
Post <1.000m
Polizei <750m
Verkehr
Bus <250m
U-Bahn <2.500m
Straßenbahn <3.250m
Bahnhof <1.000m
Autobahnanschluss <750m
Angaben Entfernung Luftlinie / Quelle: OpenStreetMap
Eckdaten Objektnr. 1150747
Art: | Wohnung |
Land: | Österreich |
Baujahr: | 2025 |
Alter: | Neubau |
Kaufpreis: | 990.000,00 € |
Provision: | Provision bezahlt der Abgeber. |
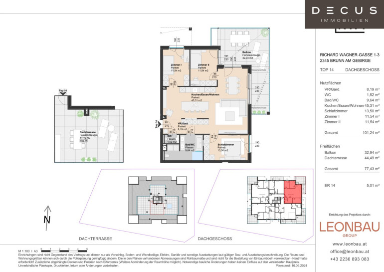
Wohnfläche: | 101,24 m² |
Nutzfläche: | 178,67 m² |
Zimmer: | 4 |
Bäder: | 1 |
WC: | 2 |
Balkone: | 1 |
Terrassen: | 1 |
Heizwärmebedarf: | B 34,00 kWh/m²a |
fGEE: | A 0,75 |
Ihre persönliche Beratung

Ing. Nicolas Putzlager
DECUS Immobilien GmbH
T +43 660 302 61 70
H +43 660 302 61 70
F +43 1 35 600 10