PROVISIONSFREI | inklusive Tiefgaragenplatz und Klimaanlage - Wohnen in Verbundenheit - B Top 11
Wohnung
- Dachgeschoß,
2540
Bad Vöslau
,
Hügelgasse 21
Zentrumslage
Beschreibung der Immobilie
PROVISIONSFREI | inklusive Tiefgaragenplatz und Klimaanlage - Wohnen in Verbundenheit - B Top 11
Herzlich willkommen bei einem niveauvollen Projekt im Herzen von Bad Vöslau, welches zwischen Hochstraße und Hügelgasse errichtet wurde.
Alle verfügbaren Wohnungen in übersichtlicher Form finden Sie hier: www.ribarskireal.estate
Wohnen heißt: die Verbindung spüren.
Erdacht und umgesetzt aus einer über ein Jahrzehnt dauernden, erfolgreichen Geschäftsverbindung eines namhaften Architektenduos mit Sitz in Wiener Neustadt. Bestehend aus insgesamt 4 harmonisch angeordneten Baukörpern und insgesamt 48 Wohnungen, verbindet dieses Neubauprojekt das geschäftige Treiben der Hochstraße mit dem idyllischen Charme der Hügelgasse. Es verbindet Alt mit Neu, den ebenen Teil von Bad Vöslau mit dem höher gelegenen Teil, das Zentrum mit der Villengegend, so wie es mit einem breiten Mix an Wohnungen auch Alt und Jung und Singlehaushalte mit Familien verbinden soll.
Für einen praktikablen Durchgang, welcher Sie von der Hochstraße zur Hügelgasse führt, sorgen die Architekten. Für Ihre Verbindung zum Projekt dürfen Sie selbst sorgen! Senden Sie mir eine unverbindliche Objektanfrage, um Ihren Raumbedarf abzuklären. Da mir alle geplanten Tops bestens bekannt sind, werden wir sehr rasch eine Lösung finden.
Der aktuelle Stand:
Baukörper A: Wurde 2020 fertig gestellt und bezogen.
Baukörper B, C und D: Wurden im Sommer 2025 fertiggestellt. Die Wohnhausanlage ist teilweise schon bewohnt und wird mit jedem Tag lebendiger.
Die Ausstattung:
Echtholz-Eiche-Parkett geklebt in den Wohnräumen, Feinsteinzeug am Boden, keramische Platten an den Wänden in den Nassräumen, Fenster mit Mehrfach-Isolier-Verglasung, Sanitärausstattung von Laufen/Geberit, Armaturen von Grohe, Außenrollos elektr. zur Beschattung der Schlafräume inkludiert. Für nähere Details sende ich sehr gerne die Bau- und Ausstattungsbeschreibung zu.
Die Fakten:
Heizung und Warmwasser mittels Fernwärme, Fußbodenheizung, Ziegelmassivbauweise teilw. Stahlbeton, SCHLÜSSELFERTIG UND PROVISIONSFREI FÜR DEN KÄUFER.
Die Tiefgaragenplätze sind wie im Titel angeführt den Wohnungen zugeordnet und im Kaufpreis inkludiert.
Das Projekt liegt perfekt:
In absoluter Zentrumslage erreichen Sie Drogerie, Billa, Bank, Rathaus, Polizei und Post, sowie zahlreiche weitere Geschäfte in wenigen Minuten zu Fuß. Restaurants, das historische Thermalbad und der außergewöhnlich schöne Schlosspark in der Nähe runden das Wohnerlebnis mit Erholungsfaktor ab. Wanderwege, Radwege, Tennisplatz, Minigolfplätze, Heurige und der bekannte Harzberg machen Bad Vöslau zu einer gehobenen und begehrten Wohngegend. Ärzte, Apotheke, eine Stadtbücherei und ein breites Bildungsangebot sorgen für Attraktivität in jeder Lebensphase. Die A2 Anschlussstelle Kottingbrunn ist in 3 Autominuten erreichbar und führt Sie in 25 Minuten nach Wien oder in 15 Minuten nach Wiener Neustadt. Der Bahnhof Bad Vöslau mit Park and Ride ist ebenfalls in 3 Minuten mit dem Auto oder in 15 Minuten zu Fuß erreichbar.
Alle noch verfügbaren Einheiten im Überblick:
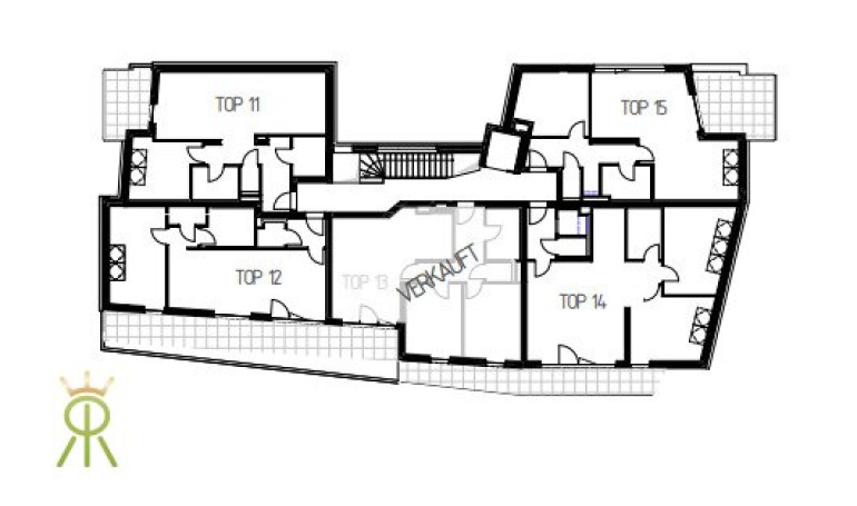
Gebäude B:
Top 1 - 3 Zi. | 66,16 m² | Garten & Terrasse | EG
Top 5 – 3 Zi. | 62,02 m² | Garten & Terrasse | EG
Top 6 – 3 Zi. | 65,96 m² | Balkon | 1.OG
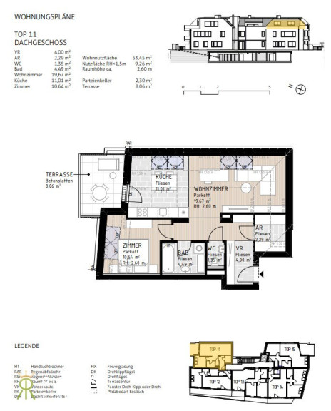
Top 11 – 2 Zi. | 63,01 m² | Terrasse | DG
neu am Markt | Top 13 | 67,48m² | Balkon | DG
Gebäude C:
Top 6 – 4 Zi. | 75,36 m² | Balkon | 1.OG
Top 11 – 2 Zi. | 71,69 m² | Terrasse | DG
neu am Markt | Top 8 | 47,88m² | Balkon | 1. OG
Gebäude D:
Top 5 – 3 Zi. | 92,41 m² | Terrasse | 1.OG + DG
Top 7 – 3 Zi. | 95,85 m² | Terrasse | DG
Die angebotene Wohnung B Top 11 verfügt über ein Schlafzimmer und ein großes Wohn- Esszimmer mit Küche. Die gut geschnittene Terrasse ist gegen Norden ausgerichtet und wird damit auch im Hochsommer zum angenehmen Rückzugsort. Eine kompakte und klassische Dachgeschosswohnung mit guter Belichtung und Gemütlichkeit erwartet Sie hier.
Ich freue mich auf Ihre Anfrage und helfe gerne auch bei Finanzierungsfragen weiter, mit einem starken Team an meiner Seite.
Angebote immer schon vor Vermarktungsbeginn sehen? >>> Folgen Sie mir auf Facebook oder Linkedin.
Infrastruktur / Entfernungen
Gesundheit
Arzt <150m
Apotheke <300m
Klinik <4.650m
Krankenhaus <5.100m
Kinder & Schulen
Kindergarten <350m
Schule <600m
Nahversorgung
Supermarkt <125m
Bäckerei <250m
Einkaufszentrum <3.875m
Sonstige
Bank <125m
Geldautomat <125m
Post <125m
Polizei <225m
Verkehr
Bus <225m
Bahnhof <1.050m
Straßenbahn <4.850m
Autobahnanschluss <1.225m
Flughafen <3.250m
Angaben Entfernung Luftlinie / Quelle: OpenStreetMap
Eckdaten Objektnr. 314
Art: | Wohnung - Dachgeschoß |
Land: | Österreich |
Baujahr: | 2023 |
Zustand: | Erstbezug |
Alter: | Neubau |
Kaufpreis: | 395.856,00 € |
Provision: | Provision bezahlt der Abgeber. |
Wohnfläche: | 62,71 m² |
Nutzfläche: | 70,77 m² |
Zimmer: | 2 |
Bäder: | 1 |
WC: | 1 |
Terrassen: | 1 |
Keller: | 2,30 m² |
Heizwärmebedarf: | B 25,90 kWh/m²a |
fGEE: | A 0,76 |
Ausstattung
Fliesen, Parkett, Fußbodenheizung, Personenaufzug, Badewanne, Tiefgarage
Ihre persönliche Beratung

Mag. (FH) Monika Ribarski
Ribarski Real Estate GmbH
H +43 676 686 4444