Tiefgaragenplätze im Zentrum von Deutsch-Wagram

2232 Deutsch-Wagram , Bockfließerstraße 136a


Das Wohnbauprojekt mit den Tiefgaragenplätzen befindet sich in einer begehrten Lage in Deutsch-Wagram. Geschäfte für den täglichen Bedarf, Kindergarten, Arzt, Restaurants und weitere Annehmlichkeiten befinden sich in unmittelbarer Nähe. Eine öffentliche Anbindung nach Wien ist durch die in der Nähe liegende Schnellbahn gegeben. Die in wenigen Autominuten erreichbare Autobahnanbindung bringt Sie in nur 30 Minuten zum Stephansplatz nach Wien.

Beschreibung der Immobilie

Tiefgaragenplätze im Zentrum von Deutsch-Wagram

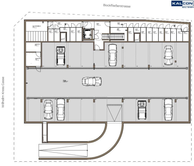
In unserem neu errichteten Wohnbau in der Bockfließer Straße 136a verkaufen wir ab November 2025 noch 4 Tiefgaragenplätze zum Preis von je EUR 25.000,00 brutto.



Profitieren Sie von einer sicheren, trockenen und bequemen Parkmöglichkeit direkt im Herzen von Deutsch-Wagram. Reservieren Sie jetzt Ihren Stellplatz und genießen Sie die Vorteile einer zentralen Lage mit guter Anbindung.





Es besteht auch die Möglichkeit einen Parkplatz um EUR 89,00 brutto / Monat anzumieten. Eine Kündigung ist beiderseits quartalweise möglich. Die Kaution beträgt 3 Bruttomonatsmieten.





Für weitere Informationen steht Ihnen das Team der KALCON BAU GmbH gerne unter immo@kalcon.at oder +43 1 505 75 26 zur Verfügung.


Wir weisen darauf hin, dass zwischen dem Vermittler und dem zu vermittelnden Dritten ein familiäres oder wirtschaftliches Naheverhältnis besteht.

Infrastruktur / Entfernungen

Gesundheit
Arzt <100m
Apotheke <1.150m
Klinik <2.075m

Kinder & Schulen
Schule <2.300m
Kindergarten <325m

Nahversorgung
Supermarkt <100m
Bäckerei <4.375m
Einkaufszentrum <4.575m

Sonstige
Bank <1.250m
Geldautomat <1.250m
Post <1.225m
Polizei <1.525m

Verkehr
Bus <125m
Autobahnanschluss <4.600m
Bahnhof <1.625m
U-Bahn <10.000m

Angaben Entfernung Luftlinie / Quelle: OpenStreetMap

Eckdaten Objektnr. 7885/113

Land: Österreich
Baujahr: 2025
Zustand: Erstbezug
Alter: Neubau
Kaufpreis: 25.000,00
Immobilie merken Exposé

Ausstattung

Tiefgarage


Immobilie anfragen


Ihre persönliche Beratung

KALCON BAU GmbH

Team KALCON

KALCON BAU GmbH

T +43 1 505 75 26

F +43 1 505 75 26 99