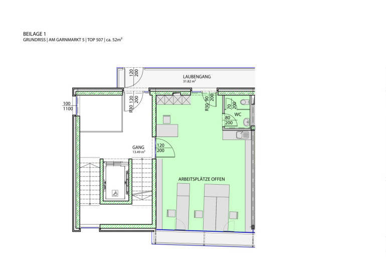
Praxis- oder Bürofläche am Garnmarkt 5 - ca. 52 m²

Büro / Praxis , 6840 Götzis , Am Garnmarkt 5


Die moderne und vielfältige Gestaltung, sowie die mittlerweile überregionale Bekanntheit der Dachmarke machen den Garnmarkt zu einem repräsentativen Standort für die dort ansässigen Unternehmen. Hinzu kommen die zentrale Lage und gute Erreichbarkeit. Das Areal bildet einen Teil des Ortszentrums mit einer idealen Infrastruktur, mit Parkplätzen, Grünflächen und einer guten Verkehrsanbindung. Geschäfte, Büros, Restaurants, Ordinationen, Kanzleien, Kinderbetreuungseinrichtung - alles ist an einem Ort und leicht erreichbar. Diese durchdachte Verknüpfung von Einzelhandel, Dienstleistung und Wohnen führt so zu einer Belebung des Standortes. Gerade für Mitarbeiter bedeutet ein Arbeitsplatz Am Garnmarkt ein Stück Lebensqualität, denn die Nähe zu den Geschäften ermöglicht einen spontanen Einkauf, eine überbetriebliche Kinderbetreuung sorgt sich um die Kleinen und die gestalteten Plätze laden zum Verweilen ein. Abschließend muss noch das vielfältige Gastronomie Angebot erwähnt werden. Diese Gewerbeimmobilie befindet sich über der Bibliothek und ist östlich ausgerichtet.

Beschreibung der Immobilie

Praxis- oder Bürofläche am Garnmarkt 5 - ca. 52 m²

Für die ca. 52 m² große Gewerbefläche wird ein Nachfolger gesucht. Die Fläche ist optimal für eine Praxis, Kanzlei oder ein Büro.



Tiefgaragen-Stellplätze nach Absprache 





Wichtige Facts:



  • kann als Büro oder Praxis genutzt werden
  • Moderne, sehr schön belichtete Räumlichkeiten
  • 1 Teeküche mit Abwasch 
  • 1 Bad inkl. WC, Waschbecken & Dusche
  • Schalldämmende Lochdecke
  • Fußbodenheizung
  • Automatische Be- und Entlüftung
  • Sonnenschutz:
    • elektronische Screens außen





Wir freuen uns auf Ihre Anfragen und beraten Sie gerne.





Unsere Angaben beziehen sich auf die Auskünfte des Eigentümers. Irrtum und Änderungen vorbehalten.

Noch nichts gefunden? Wir informieren Sie über geeignete Immobilienangebote noch vor allen anderen.
Legen Sie jetzt kostenlos Ihren individuellen Suchagenten unter folgendem Link an. Wir schicken Ihnen passende Immobilien exklusiv vorab zu.

Suchagent anlegen


Wir weisen darauf hin, dass zwischen dem Vermittler und dem zu vermittelnden Dritten ein familiäres oder wirtschaftliches Naheverhältnis besteht.


Der Vermittler ist als Doppelmakler tätig.

Infrastruktur / Entfernungen

Gesundheit
Arzt <200m
Apotheke <325m
Krankenhaus <4.025m

Kinder & Schulen
Schule <75m
Kindergarten <75m
Höhere Schule <75m

Nahversorgung
Supermarkt <75m
Bäckerei <75m
Einkaufszentrum <4.825m

Sonstige
Bank <175m
Geldautomat <175m
Post <650m
Polizei <50m

Verkehr
Bus <150m
Bahnhof <725m
Autobahnanschluss <1.700m
Flughafen <6.750m

Angaben Entfernung Luftlinie / Quelle: OpenStreetMap

Eckdaten Objektnr. 5681/558

Art: Büro / Praxis
Land: Österreich
Baujahr: 2008
Zustand: Gepflegt
Kaltmiete (netto): 827,60 €
Kaltmiete: 990,45 €
Provision: 1 Bruttomonatsmiete zzgl. 20% USt.
Betriebskosten: 162,85 €
Heizkosten: 59,54 €
Bürofläche: 52,00 m²
Zimmer: 1
Bäder: 1
WC: 1
Heizwärmebedarf:  A  19,00 kWh/m²a
fGEE:  A+  0,70
Immobilie merken Exposé

Ausstattung

Parkett, Fliesen, Fußbodenheizung, Personenaufzug, Dusche, DV-Verkabelung, Tiefgarage, Teeküche


Immobilie anfragen


Ihre persönliche Beratung

Rimo Immobilien GmbH

Mag. Daniel Ströhle

Rimo Immobilien GmbH

T +43 5522 39303 21