Attraktives Modernisierungsobjekt in gepflegter Lage mit Garten & Balkon
Haus
,
9584
Finkenstein
Entdecken Sie Ihr neues Zuhause in der idyllischen Umgebung von 9584 Finkenstein, Kärnten! Dieses charmante Haus besticht durch seine westliche Ausrichtung, die Ihnen atemberaubende Sonnenuntergänge bietet. Die Lage ist ideal für Familien: In unmittelbarer Nähe finden Sie eine Schule, einen Kindergarten, einen Supermarkt sowie Geldautomat und Bank. Auch die Anbindung an öffentliche Verkehrsmittel ist hervorragend – Bus und Bahnhof sind nur einen Katzensprung entfernt. Genießen Sie die perfekte Kombination aus Ruhe und Erreichbarkeit!
Beschreibung der Immobilie
Attraktives Modernisierungsobjekt in gepflegter Lage mit Garten & Balkon
Hier beginnt Ihr Weg zum individuellen Wohntraum – einem charmanten Haus, das mit viel Potenzial auf Sie wartet. Dieses großzügige Objekt bietet Ihnen ausreichend Platz für individuelle Wohnträume und kreative Gestaltungsmöglichkeiten.
Entdecken Sie ein Haus voller Möglichkeiten, das darauf wartet, zu Ihrem ganz persönlichen Wohlfühl-Zuhause zu werden. Hier beginnt Ihr Weg zu einem individuellen Wohntraum, den Sie ganz nach Ihren Wünschen gestalten können.
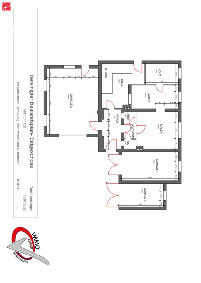
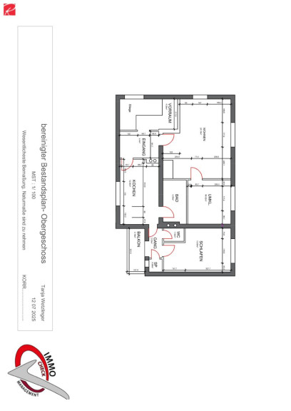
Mit 6 großzügigen Zimmern und einer durchdachten Raumaufteilung bietet Ihnen dieses Objekt ausreichend Platz für Familie, Hobbys und Rückzugsorte. Die solide Grundlage aus vorhandenen Fliesen und Parkett lädt Sie ein, Ihre eigenen Akzente zu setzen und das Haus mit modernem Komfort auszustatten.
Genießen Sie entspannte Stunden im Garten oder auf dem sonnigen Westbalkon, der herrliche Ausblicke und schöne Sonnenuntergänge verspricht. Praktische Annehmlichkeiten wie 2 Garagen, 2 Stellplätze und 2 WCs sorgen für zusätzlichen Komfort im Alltag. Eine vorhandene Öl-Zentralheizung garantiert angenehme Wärme, und die Einbauküche erleichtert Ihnen den Start in Ihr neues Zuhause.
Nutzen Sie diese einmalige Gelegenheit, ein renovierungsbedürftiges Haus in einer attraktiven Lage zu Ihrem Traumhaus zu machen. Starten Sie jetzt in Ihr neues Wohnkapitel und gestalten Sie Ihre Wohnzukunft ganz nach Ihren Vorstellungen!
Jetzt habe ich Ihr Interesse geweckt? Dann vereinbaren Sie am besten noch heute Ihren persönlichen Besichtigungstermin unter 0660 49 59 512. Ich freue mich auf Ihren Anruf. Ing. Josip Durdevic, Roderick Scherer Immobilien Klagenfurt.
Sie möchten diese Immobilie finanzieren? Gerne zeigen wir Ihnen in einem kostenlosen und unverbindlichen Beratungsgespräch (vor Ort oder online) die aktuellen Möglichkeiten am heimischen Kreditmarkt auf. Unsere Finanzierungsexperten vergleichen für Sie eine Vielzahl von Banken und Bausparkassen, um für Sie die besten Konditionen zu erreichen (Laufzeit, Rate, Eigenmittel). Optimal zugeschnitten auf Ihre Bedürfnisse. Sprechen Sie uns gerne an.
Noch nichts gefunden? Wir informieren Sie über geeignete Immobilienangebote noch vor allen anderen.
Legen Sie jetzt Ihren individuellen Suchagenten unter folgendem Link an. Wir schicken Ihnen passende Immobilien exklusiv vorab zu.
Suchagent anlegen - https://roderick-scherer-immobilien.service.immo/registrieren/de
Hinweis gemäß Energieausweisvorlagegesetz: Ein Energieausweis wurde vom Eigentümer bzw. Verkäufer, nach unserer Aufklärung über die generell geltende Vorlagepflicht, sowie Aufforderung zu seiner Erstellung noch nicht vorgelegt. Daher gilt zumindest eine dem Alter und der Art des Gebäudes entsprechende Gesamtenergieeffizienz als vereinbart. Wir übernehmen keinerlei Gewähr oder Haftung für die tatsächliche Energieeffizienz der angebotenen Immobilie.
Der Vermittler ist als Doppelmakler tätig.
Infrastruktur / Entfernungen
Gesundheit
Arzt <3.000m
Apotheke <3.000m
Klinik <4.500m
Krankenhaus <5.500m
Kinder & Schulen
Schule <500m
Kindergarten <1.000m
Universität <6.000m
Höhere Schule <6.000m
Nahversorgung
Supermarkt <500m
Bäckerei <3.000m
Einkaufszentrum <5.000m
Sonstige
Geldautomat <500m
Bank <500m
Post <3.000m
Polizei <3.000m
Verkehr
Bus <500m
Autobahnanschluss <3.500m
Bahnhof <1.000m
Angaben Entfernung Luftlinie / Quelle: OpenStreetMap
Eckdaten Objektnr. 5420/6821
Art: | Haus |
Land: | Österreich |
Baujahr: | 1963 |
Zustand: | Teil_vollrenovierungsbed |
Möbliert: | Voll |
Alter: | Neubau |
Kaufpreis: | 349.900,00 € |
Provision: | 3% des Kaufpreises zzgl. 20% USt. |
Betriebskosten: | 150,00 € |
Heizkosten: | 100,00 € |
Wohnfläche: | 149,00 m² |
Grundstücksfl.: | 747,00 m² |
Zimmer: | 6 |
Bäder: | 1 |
WC: | 2 |
Balkone: | 1 |
Stellplätze: | 2 |
Keller: | 41,00 m² |
Ausstattung
Fliesen, Parkett, Öl, Zentralheizung, Einbauküche, Westbalkon, Badewanne, Garage, Parkplatz
Ihre persönliche Beratung

Ing. Josip Durdevic
Roderick Scherer
T +43 660 4959512