Sanierungsbedürftig | 3 Zimmer Altbau-Wohnung | ruhige Innenhoflage | zentral begehbar
Wohnung
- Etage,
1050
Wien,Margareten
,
Hauslabgasse 14
Hauslabgasse 14 | Nähe Wiedner Hauptstraße bzw. Wien Hauptbahnhof | 18 Minuten Stephansplatz
Beschreibung der Immobilie
Sanierungsbedürftig | 3 Zimmer Altbau-Wohnung | ruhige Innenhoflage | zentral begehbar
IMPULS Immobilien bietet nachfolgende Wohnung ab sofort zum KAUF an:
Gut aufgeteilte 3-Zimmer-Wohnung in ruhiger Innenhoflage, zentral begehbar
ÜBER DIE WOHNUNG
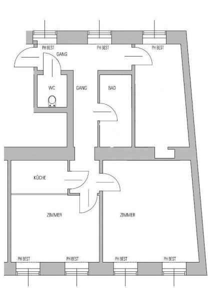
RAUMAUFTEILUNG
- großzügiges Wohnzimmer
- 2 Schlafzimmer
- separate Küche
- Badezimmer mit Dusche
- separates WC
- Kellerabteil
Diese 3-Zimmer-Wohnung befindet sich im Hoftrakt eines klassischen Altbaus im Erdgeschoss. Die rund 66 m² sind sehr gut aufgeteilt und mit ein wenig Kosmetik, schaffen Sie hier eine tolle Wohnung in ruhiger Lage.
Der Vorraum und der angrenzende Flur bieten ausreichend Platz zum Ankommen und für eine Garderobe. Alle Räume dieser Wohnung sind über den Gang begehbar, diese ist somit zentral begehbar. Rechter Hand ist ein separates WC situiert. Gegenüber befindet sich das Badezimmer mit Dusche, Waschtisch und Waschmaschinenanschluss. Im hinteren Teil der Wohnung befindet eines der beiden Schlafzimmer.
Im vorderen Bereich ist eine separate, voll ausgestattete Küche untergebracht. Daneben gibt es ein weiteres, sehr gut geschnittenes Schlafzimmer. Gegenüber geht es in das großzügige und lichtdurchflutete Wohnzimmer.
Die Wohnung wird mittels Gasetagenheizung beheizt und verfügt über Doppelisolierglasfenster aus Kunststoff.
ZUM HAUS & ZUR INFRASTRUKTUR
Das gepflegte Jahrhundertwendehaus liegt zentral in einer attraktiven und sehr nachgefragten Wohnlage zwischen Wiedner Hauptstraße und Wien Hauptbahnhof im 5. Wiener Gemeindebezirk. Es verfügt über eine schöne, für diese Zeit typische, gegliederte Fassade. Im Haus befindet sich ein der Wohnung zugeordnetes Kellerabteil.
Öffentlich sind Sie hier bestens angebunden: Der Bahnhof Meidling ist nur wenige Gehminuten entfernt. Die Straßenbahn (1, 18, 62), Badner Bahn, Buslinie 13a, U1 Südtirolerplatz und natürlich der Hauptbahnhof Wien befinden sich in unmittelbarer Umgebung.
In einem engen Radius um das Objekt genießen Sie die Vorzüge einer optimalen Infrastruktur und bester Nahversorgung.
Zudem gibt es in der Umgebung Schulen, Kindergärten und medizinische Einrichtungen, die den Alltag bequem machen.
Und wenn Sie einmal nach Erholung im Grünen suchen: Nur wenige Gehminuten entfernt, befinden sich der Alois Drasche Park. Auch mit den Öffis sind sie schnell im Erholungsgebiet Wienerberg bzw. im Belvedere Schlossgarten.
KLINGT INTERESSANT?
DANN SENDEN SIE UNS GERNE EINE ANFRAGE!
Wir bitten um eine schriftliche Anfrage ber die jeweilige Plattform und beantworten diese verlässlich oder melden uns mit einem Terminvorschlag für eine Besichtigung bei Ihnen!
Für Detailfragen stehen wir auch jederzeit gerne unter martin.balek@impuls-immobilien.at bzw. telefonisch unter 0676/6213393 zur Verfügung!
Wir weisen darauf hin, dass zwischen dem Vermittler und dem zu vermittelnden Dritten ein familiäres oder wirtschaftliches Naheverhältnis besteht.
Der Vermittler ist als Doppelmakler tätig.
Infrastruktur / Entfernungen
Gesundheit
Arzt <150m
Apotheke <150m
Klinik <800m
Krankenhaus <400m
Kinder & Schulen
Schule <125m
Kindergarten <100m
Universität <325m
Höhere Schule <825m
Nahversorgung
Supermarkt <250m
Bäckerei <225m
Einkaufszentrum <475m
Sonstige
Geldautomat <200m
Bank <200m
Post <475m
Polizei <650m
Verkehr
Bus <175m
U-Bahn <650m
Straßenbahn <175m
Bahnhof <600m
Autobahnanschluss <2.700m
Angaben Entfernung Luftlinie / Quelle: OpenStreetMap
Eckdaten Objektnr. 437
Art: | Wohnung - Etage |
Land: | Österreich |
Baujahr: | 1895 |
Zustand: | Gepflegt |
Alter: | Altbau |
Kaufpreis: | 255.500,00 € |
Provision: | 3% des Kaufpreises zzgl. 20% USt. |
Betriebskosten: | 175,37 € |
MwSt Gesamt: | 17,54 € |
Wohnfläche: | 66,00 m² |
Zimmer: | 3 |
Bäder: | 1 |
WC: | 1 |
Heizwärmebedarf: | C 75,00 kWh/m²a |
fGEE: | C 1,53 |
Ausstattung
Fliesen, Laminatboden, Parkett, Gas, Etagenheizung, Einbauküche, Dusche
Ihre persönliche Beratung

Martin Balek
Impuls Immobilien Verner OG
T +43 676 6213393