Wohnung für Menschen die Ihren Lebensabend bequem verbringen möchten
Wohnung
- Erdgeschoß,
2625
Schwarzau am Steinfeld
,
Wechselbundesstraße 43
Die Wohnung in der Wechselbundesstraße 2625, Schwarzau am Steinfeld, besticht durch ihre zentrale Lage. In unmittelbarer Nähe befinden sich das Gemeindeamt und ein Billa-Supermarkt, ideal für den täglichen Einkauf. Arzt, Schule und Bank sind ebenfalls schnell erreichbar und bieten eine hervorragende Infrastruktur. Mit weiteren Einrichtungen wie einem Geldautomaten, der Polizei und öffentlichen Verkehrsanbindungen ist alles für ein komfortables Leben vor Ort vorhanden.
Beschreibung der Immobilie
Wohnung für Menschen die Ihren Lebensabend bequem verbringen möchten
2-Zimmer-Wohnung der Superlative
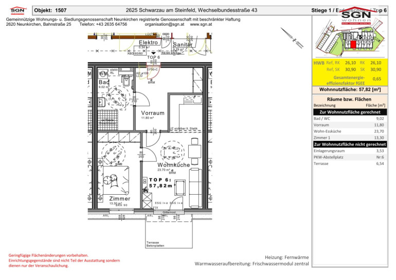
Die Wohnung wirkt schon einladend aufgrund des großzügigen Vorraums. Hier gibt es genügend Möglichkeiten diesen Raum sinnvoll zu möblieren und Ihre Schuhe und Mäntel gut unterzubringen.
Ein geräumiger Wohn-Küche-Bereich wird aufgrund der Terrassentüre ausreichend belichtet. Ab dem frühen Nachmittag genießen Sie die Sonne auf Ihrer Terrasse und wenn es einmal zu heiß sein sollte, dann bleibt Ihnen die Nutzung der allgemein Terrasse offen.
An den Wohnbereich angrenzend befindet sich das Schlafzimmer, welches ausreichend Platz für Doppelbett und Kasten bietet. Ein Ort der Entspannung und der Ruhe.
Das Badezimmer ist mit Waschbecken, bodenebener Dusche und WC ausgeführt. Eine Anschlussmöglichkeit für die Waschmaschine ist vorhanden.
Zur Wohnung ist der PKW-Abstellplatz Nr.: 6 zugehörig, ebenso wie der Einlagerungsraum Nr.: 6 im Erdgeschoss des Hauses.
Finanzierungsbeitrag: 24.738,64 Euro
Monatliche Kosten inkl. Betriebskosten, Heizung inkl. Soziale Dienste: 774,48 Euro
Dieses Wohnhaus ist eine Wohnform von „Begleitetes Wohnen“, die Menschen ab dem 60. Lebensjahr, Menschen mit Behinderungen und/oder Menschen mit besonderen Bedürfnissen ermöglicht, in einer barrierefreien und gut durchdachten Umgebung zu leben.
Es ist keine Pflegeeinrichtung, sondern eine Wohnform, die sowohl Freiheit als auch Unterstützung bietet. Die Betreuung erfolgt in diesem Haus über die Volkshilfe Niederösterreich, alle benötigten Pflegeleistungen können je nach Bedarf direkt beauftragt werden.
Diese Wohnhausanlage umfasst insgesamt 16 barrierefreie Wohneinheiten im Sinne des „BEGLEITETEN WOHNENS“. Diese verfügen über einen großzügigen Wohn-Küche-Bereich, ein Schlafzimmer und Nebenräume. Die 7 Wohnungen im Erdgeschoss verfügen über eine Terrasse. Der Wohnung Top 2 verfügt zusätzlich noch über einen eingefriedeten Eigengartenanteil. Die 9 Wohnungen im Obergeschoss können bequem mit dem Aufzug erreicht werden, und erhalten einen erkerartigen Vorbau mit französischen Fenstern mit fixem Unterteil.
20 PKW-Abstellplätze sind vorhanden, wobei jeder Wohnung ein Platz fix zugeordnet ist und die restlichen 4 Plätze als Besucherplätze fungieren.
Ein Gemeinschaftsraum für Feste und Feiern, oder einfach nur für den gemeinsamen Nachmittagskaffee ist angrenzend an den Eingangsbereich. Hier ist auch einer der wesentlichen Vorteile des „Begleiteten Wohnens“, denn hier findet sich bestimmt ein Partner für ein Kartenspiel oder ein nettes Pläuschchen.
Eine großzügige Terrasse im Süden der Liegenschaft bietet auch für die Bewohner ohne eigene Terrasse genügend Freiraum, und steht allen Bewohnern zur Nutzung zur Verfügung.
Die Versorgung mit Wärme und Warmwasser erfolgt über die Fernwärme der Bioenergie Bucklige Welt. Die Wärmeabgabe in den Räumen erfolgt über Radiatoren mit Thermostatventilen.
Am Dach des Wohnhauses ist eine Photovoltaikanlage, der erzeugte Strom dient zur Unterstützung des Stromverbrauchs der Allgemeinanlagen (Gangbeleuchtung, Haustechnik…).
Die Sanitärräume der Wohnungen sind mit einer mechanischen Raumentlüftung ausgestattet und verfügen über eine bodenebene Dusche und Waschbecken, sowie hochwertige Armaturen. Das WC ist hier ebenfalls integriert.
Alle Wohn- und Schlafräume sind mit Laminatboden versehen, die Sanitärbereiche mit Fliesenbelag.
Zum Schutz vor Sonneneinstrahlung sind elektrische Außenrollläden verbaut.
Die Einlagerungsräume befinden sich im Erdgeschoss und jeder Wohnung ist ein Raum zugeordnet. Hier befindet sich auch der Gemeinschaftsraum.
Schwarzau am Steinfeld ist eine charmante rd. 2140 Einwohner zählende Gemeinde im Bezirk Neunkirchen in Niederösterreich. Die Region ist bekannt für ihre landschaftliche Schönheit und ihre Nähe zur Natur, was sie zu einem attraktiven Wohnort macht.
Schwarzau am Steinfeld bietet eine gute Auswahl an Einkaufsmöglichkeiten. Für spezielle Einkäufe oder größere Shoppingtouren bieten sich die nahegelegenen Städte Neunkirchen und Wiener Neustadt an.
Es gibt regelmäßige Busverbindungen, die den Ort mit den umliegenden Gemeinden und Städten verbinden. Vom Bahnhof in Neunkirchen oder Wiener Neustadt lässt sich Wien in weniger als einer Stunde erreichen.
Auch die medizinische Versorgung ist durch eine Ärztin für Allgemeinmedizin gewährleistet. Die nächsten Krankenhäuser sind in den nahegelegenen Städten Neunkirchen und Wiener Neustadt zu finden.
Zusätzlich verfügt Schwarzau über eine Vielzahl von Freizeitmöglichkeiten. Es gibt Sportvereine, einen Tennisplatz und zahlreiche Wander- und Radwege in der Umgebung, die zu Erkundungstouren einladen. Das kulturelle Leben wird durch verschiedene Veranstaltungen und Feste bereichert. Vor allem der örtliche Pensionistenverband bietet zahlreiche Ausflugsmöglichkeiten und Veranstaltungen an.
Insgesamt ist Schwarzau ein idyllischer Ort, der seinen Bewohnern eine hohe Lebensqualität bietet, mit einer guten Balance zwischen ländlicher Ruhe und städtischen Annehmlichkeiten.
Infrastruktur / Entfernungen
Gesundheit
Arzt <250m
Apotheke <2.100m
Krankenhaus <6.000m
Klinik <9.775m
Kinder & Schulen
Schule <575m
Kindergarten <2.075m
Nahversorgung
Supermarkt <225m
Bäckerei <1.775m
Einkaufszentrum <6.575m
Sonstige
Bank <250m
Geldautomat <250m
Polizei <575m
Post <2.225m
Verkehr
Bus <150m
Autobahnanschluss <2.250m
Bahnhof <1.825m
Angaben Entfernung Luftlinie / Quelle: OpenStreetMap
Eckdaten Objektnr. 150706
Art: | Wohnung - Erdgeschoß |
Land: | Österreich |
Baujahr: | 2024 |
Alter: | Neubau |
Gesamtmiete: | 774,48 € |
Kaltmiete (netto): | 504,98 € |
Kaltmiete: | 683,56 € |
Betriebskosten: | 126,58 € |
Heizkosten: | 23,13 € |
MwSt Gesamt: | 67,79 € |
Wohnfläche: | 57,82 m² |
Zimmer: | 2 |
Bäder: | 1 |
WC: | 1 |
Stellplätze: | 1 |
Keller: | 3,53 m² |
Heizwärmebedarf: | B 30,90 kWh/m²a |
fGEE: | 0,65 |
Ausstattung
Fliesen, Laminatboden, Fernwärme, Zentralheizung, Dusche, Parkplatz
Ihre persönliche Beratung

Mirjam Apfelthaler
SGN Gemeinnützige Wohnungs- u. Siedlungsgenossenschaft Neunkirchen reg.Gen.m.b.H.
T +43 2635 64756 57