Beschreibung der Immobilie
U3-Simmering Nähe - Provisionsfreie 2-Zimmer Wohnung
PROVISIONSFREI für den Käufer!
Alle verfügbaren Wohnungen finden Sie auch auf unserer Homepage.
"Brambilla" - Ihr neues Zuhause, Investment und Vorsorge
Dieses beeindruckende und exklusive Projekt befindet sich im Herzen von Simmering nur einen kurzen Spaziergang von der U3 Station „Simmering“ entfernt. Die Wohnhausanlage befindet sich in einer ruhigen Seitengasse und bietet trotzdem die vollen Vorteile einer urbanen Lage.
Zum Verkauf gelangen 16 freifinanzierte Wohnungen und 4 freifinanzierte Town-Houses.
EIGENGRUND! - KEINE PACHT!
Die voraussichtliche Fertigstellung ist Ende 2026 geplant.
Highlights der Liegenschaft:
- Wärmepumpe
- PV-Anlage für eine energieeffiziente Wohnhausanlage und niedrigere Betriebskosten
- Jede Wohnung mit privater Freifläche! Balkon, Terrasse oder Eigengärten
- Echtholzböden
- Keramischer Fliesenbelag in den Nassräumen
- 3 - fach verglaste Kunsstofffenster mit Alu Deckschale
- Schließanlage
- Personenlift
- Tiefgarage
- Heizung und Temperierung mittels Fußbodenheizung
Lage: Auto adé
Sollten Sie kein Fahrzeug besitzen, ist das bei dieser Adresse kein Hindernis. Zahlreiche Nahversorger, Dinge des täglichen Bedarfs und die U3 befinden sich unmittelbarer Nähe der Liegenschaft. Für Naturliebhaber und entspannte Stunden im Freien ist die Parkanlage Löwygrube und der Kurpark Oberlaa sowohl mit dem Fahrrad wie auch öffentlich ideal erreichbar.
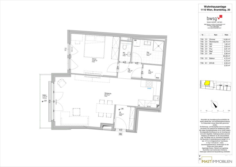
Details Wohnung Top 5:
Die Wohnung befindet sich im 1. Liftstock und verfügt über 63,28 m² Wohnfläche + einen 4,72 m² großen Balkon.
Die Wohnung gliedert sich wie folgt:
- Vorraum ca. 3,53 m²
- Wohnküche ca. 32,70 m²
- Schlafzimmer ca. 14,85 m²
- Badezimmer ca. 5,72 m²
- Separate Toilette ca. 1,62 m²
- Abstellraum ca. 2,06 m²
- Balkon ca. 4,72 m²
- Kellerabteil ca. 2,53 m²
Ein Tiefgaragenstellplatz kann um 39.000 € erworben werden. Der Kaufpreis beträgt für Anleger € 382.931,69 Netto zzgl. 20% USt.
Auf unserer Homepage finden Sie eine Übersicht zu allen verfügbaren 2-Zimmer-Wohnungen sowie nähere Details dazu.
Wir weisen darauf hin, dass zwischen dem Vermittler und dem zu vermittelnden Dritten ein familiäres oder wirtschaftliches Naheverhältnis besteht.
Infrastruktur / Entfernungen
Gesundheit
Arzt <425m
Apotheke <150m
Klinik <1.900m
Krankenhaus <3.575m
Kinder & Schulen
Schule <175m
Kindergarten <350m
Universität <2.500m
Höhere Schule <2.725m
Nahversorgung
Supermarkt <75m
Bäckerei <125m
Einkaufszentrum <875m
Sonstige
Geldautomat <150m
Bank <150m
Post <125m
Polizei <475m
Verkehr
Bus <150m
U-Bahn <350m
Straßenbahn <375m
Bahnhof <350m
Autobahnanschluss <1.925m
Angaben Entfernung Luftlinie / Quelle: OpenStreetMap
Eckdaten Objektnr. 5387/7521
Art: | Wohnung |
Land: | Österreich |
Baujahr: | 2025 |
Zustand: | Erstbezug |
Alter: | Neubau |
Kaufpreis: | 409.500,00 € |
Provision: | Provision bezahlt der Abgeber. |
Betriebskosten: | 138,92 € |
MwSt Gesamt: | 13,89 € |
Wohnfläche: | 63,28 m² |
Nutzfläche: | 63,28 m² |
Zimmer: | 2 |
Bäder: | 1 |
WC: | 1 |
Balkone: | 1 |
Keller: | 2,53 m² |
Heizwärmebedarf: | 31,70 kWh/m²a |
fGEE: | 0,75 |
Ausstattung
Fliesen, Parkett, Fußbodenheizung, Wohnküche / offene Küche, Personenaufzug, Dusche, Tiefgarage
Ihre persönliche Beratung

Dolores Markovic
MA.ST Immobilien & Design e.U.
T +43 664 527 36 79