Renovierte Eigentumswohnung mit Klimaanlage in saniertem Haus – WG-tauglich, U3 direkt vor der Tür
                                                            Wohnung
                                - Etage,
                            
                            
                                
                                                                            1030
                                    
                                                                            Wien
                                    
                                    
                                
                                                                    
                                        
                                    
                                
                            
                        
                        Beschreibung der Immobilie
Renovierte Eigentumswohnung mit Klimaanlage in saniertem Haus – WG-tauglich, U3 direkt vor der Tür
Markhofgasse 2 – Eigentum mit viel Potenzial
Direkt bei der U3-Station „Schlachthausgasse“ stehen in einem sanierten Gebäude – mit renovierter Fassade und Stiegenhaus – noch 11 von insgesamt 34 Wohneinheiten zum Verkauf. Die Wohnungen befinden sich in teilsaniertem bzw. unsaniertem Zustand und verfügen über Wohnflächen zwischen 33 m² und 100 m².
Ob Eigennutzung Vermietung oder Veredelung – die noch verfügbaren Einheiten stellen eine seltene Gelegenheit für Anleger und Eigennutzer dar, in eine wertsteigernde Lage mit langfristigem Potenzial zu investieren.
 
Zum Haus:
- Sanierter Allgemeinzustand: Das Stiegenhaus und die Fassade wurden kürzlich umfassend renoviert und präsentieren sich in einwandfreiem Zustand – eine sorgenfreie Investition.
- Moderne Fenster mit 3-fach-Verglasung: In sämtlichen Wohnungen wurden neue Fenster mit 3-fach-Isolierverglasung verbaut – energieeffizient und schallisolierend.
Lage & Infrastruktur – urban, zentral & zukunftssicher
Die Markhofgasse 2 besticht durch ihre erstklassige Lage direkt an der U3-Station „Schlachthausgasse“ – in nur 6 Minuten erreicht man den 1. Bezirk, das historische Zentrum Wiens. Auch der Flughafen Wien ist in rund 30 Minuten bequem erreichbar – ideal für Stadtmenschen und Pendler.
Ein besonderes Zukunftsplus bietet die Verlängerung der Straßenbahnlinie 18 durch den Prater bis zur U2-Station Stadion (Fertigstellung Sommer/Herbst 2026). Dadurch entsteht eine neu schnelle Verbindung zur Wirtschaftsuniversität Wien und zum Stadionviertel – ein starker Treiber für langfristige Wertsteigerung und optimale Erreichbarkeit.
Öffentliche Verkehrsanbindung
- U3 „Schlachthausgasse“ – nur 5 U-Bahn Stationen bis zum Stephansplatz
- Straßenbahnlinie 18 – ab 2026 direkte Verbindung zur U2 Stadion und U6 Burggasse/Stadthalle
- Bus 77A – Richtung Rennweg & 2. Bezirk
- Bus 80A – Richtung Praterstern & Donaukanal
Nahversorgung/Einkaufsmöglichkeiten
- Supermärkte: BILLA, BIPA vor der Tür
- Apotheke, Fitnessstudio
- Landstraßer Hauptstraße fußläufig erreichbar
- Das Gasometer als Shopping-, Event- und Entertainment-Zentrum
- Schulen, Kindergärten und medizinische Einrichtungen in unmittelbarer Umgebung
Freizeit & Natur
Der nahegelegene Grüne Prater – einer der größten und schönsten Stadtparks Europas – bietet ein außergewöhnliches Freizeitangebot: Laufen auf der Hauptallee, Tennisplätze, das Stadionbad im Sommer oder entspannte Radtouren im Grünen. In 15 Minuten zu Fuß, 4 Minuten mit dem Fahrrad oder ab 2026 in nur 2 Stationen mit der Linie 18 erreichbar.
Lernen Sie diese besondere Liegenschaft persönlich kennen – wir freuen uns auf Ihre Anfrage
Infrastruktur / Entfernungen
Gesundheit
Arzt <500m
Apotheke <500m
Klinik <1.000m
Krankenhaus <1.000m
Kinder & Schulen
Schule <500m
Kindergarten <500m
Universität <1.000m
Höhere Schule <1.000m
Nahversorgung
Supermarkt <500m
Bäckerei <500m
Einkaufszentrum <1.000m
Sonstige
Geldautomat <500m
Bank <500m
Post <500m
Polizei <500m
Verkehr
Bus <500m
U-Bahn <500m
Straßenbahn <500m
Bahnhof <500m
Autobahnanschluss <500m
Angaben Entfernung Luftlinie / Quelle: OpenStreetMap
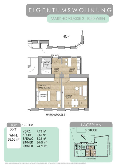
Eckdaten Objektnr. 1575/696
| Art: | Wohnung - Etage | 
| Land: | Österreich | 
| Baujahr: | 1905 | 
| Zustand: | Teil_vollsaniert | 
| Alter: | Altbau | 
| Kaufpreis: | 399.000,00 € | 
| Provision: | 3% des Kaufpreises zzgl. 20% USt. | 
| Betriebskosten: | 162,95 € | 
| MwSt Gesamt: | 16,30 € | 
| Wohnfläche: | 68,51 m² | 
| Zimmer: | 2,50 | 
| Bäder: | 1 | 
| WC: | 1 | 
| Heizwärmebedarf: | D 128,80 kWh/m²a | 
| fGEE: | D 2,29 | 
Ausstattung
Fliesen, Parkett, Etagenheizung, Einbauküche, Dusche
Ihre persönliche Beratung
 
                                                        Pia Schelling
Pia Estate GmbH
T +43 660 508 36 35
H +43 660 508 36 35
 
                 
                 
                 
                 
                 
                 
                