Wohnglück Wieselburg – herrliche 3 Zimmerwohnung - ab sofort beziehbar – KAUFOPTION -
Wohnung
,
3250
Wieselburg
,
Bahnhofstraße
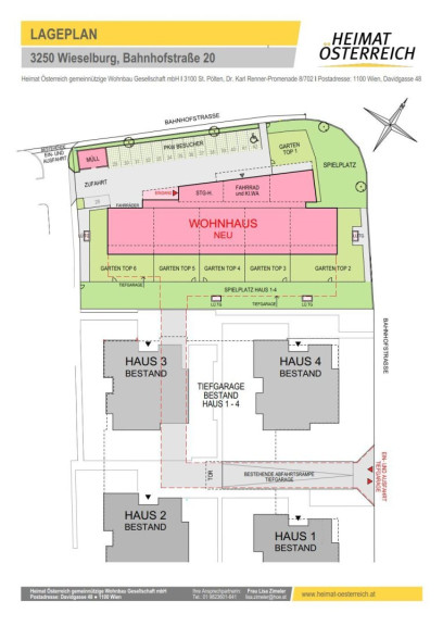
Unsere Liegenschaft befindet sich in unmittelbarer Nähe zum Bahnhof. Das Stadtzentrum ist in wenigen Gehminuten erreichbar.
Beschreibung der Immobilie
Wohnglück Wieselburg – herrliche 3 Zimmerwohnung - ab sofort beziehbar – KAUFOPTION -
WOHNEN SIE DAS ERSTE MONAT MIETZINSFREI
In der Stadtgemeinde Wieselburg, Bahnhofstraße 20, befinden sich unsere 27 geförderte Mietwohnungen mit Kaufoption in den Größen von ca. 58m² bis ca. 84m² (2-4 Zimmer).
Jede Wohnung verfügt über eine Freifläche wie Garten und/oder Terrasse bzw. Balkon. Zudem ist jeder Einheit ein Tiefgaragenplatz zugewiesen.
Der Bahnhof ist in wenigen Minuten fußläufig erreichbar, ebenso das Stadtzentrum mit Einkaufsmöglichkeiten und Infrastruktur.
Hier die Details im Überblick:
- 27 geförderte Mietwohnungen mit Kaufoption
- 2-4 Zimmer - Wohnflächen von ca. 58m² - 84m²
- Jede Wohnung mit Garten, Terrasse oder Balkon
- Tiefgaragenstellplatz inklusive
- Zentrale Lage: nahe Bahnhof & Stadtzentrum
- Energieeffiziente Wärmepumpe & Photovoltaikanlage am Dach
- Free Cooling-Kühlsystem für angenehmes Raumklima
- HWB Wert ca. 14,4 kWh/m²a, fGee ca. 0,53
- Sofort beziehbar
WOHNEN SIE DAS ERSTE MONAT MIETZINSFREI
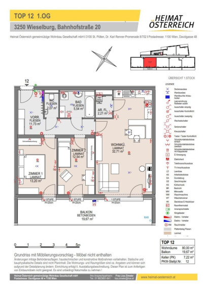
Willkommen in Ihrem neuen Zuhause in Wieselburg! Diese wunderschöne 3 Zimmerwohnung im 1. Obergeschoss wird Sie begeistern. Sie bietet nicht nur eine Wohnfläche von großzügigen 80m², sondern auch ausreichend Platz für Ihre individuellen Wohnbedürfnisse. Ob als Schlafzimmer, Büro oder Gästezimmer – die Zimmer bieten vielseitige Nutzungsmöglichkeiten.
Die Wohnung gliedert sich in ein geräumiges Wohnzimmer mit Kochnische, 2 weitere Zimmer, ein Badezimmer mit Badewanne, Handwaschbecken und Waschmaschinenanschluss, ein separates WC, einen Vorraum und einen Abstellraum.
Der Abstellraum befindet sich gleich beim Küchenbereich und kann somit auch optimal als Speis genutzt werden.
Ein besonderes Highlight dieser Wohnung ist auf jeden Fall der große Balkon, welcher vom Wohnzimmer und den beiden Zimmern betreten werden kann. Hier können Sie herrlich frische Luft tanken und entspannen.
Die Wohnung ist mit einer Fußbodenheizung ausgestattet, welche für wohlig warme Füße im Winter sorgt.
Heizung und Warmwasseraufbereitung erfolgt mittels einer energiesparenden Wärmepumpe und einer Photovoltaikanlage am Dach.
Ein besonderes Zuckerl ist das Kühlsystem free cooling, somit gehören überhitzte Wohnungen im Sommer der Vergangenheit an!
Die kontrollierte Wohnraumbelüftung sorgt für angenehmes Raumklima.
Mit dem Personenaufzug gelangen Sie bequem und barrierefrei in Ihre Wohnung.
Für die Fahrräder und Kinderwägen ist mit einen Abstellraum im Erdgeschoss gesorgt. Weitere Fahrradabstellplätze gibt es auch im Freien, im Bereich des Hauszuganges.
Ein Kinderspielplatz ist in der Anlage ebenfalls vorhanden.
Jeder Wohnung ist ein Einlagerungsraum im Keller und ein Tiefgaragenabstellplatz (bereits in der Miete inkludiert) zugeteilt. Weiters befindet sich ein Trockenraum im Keller.
Die Lage der Wohnung ist ideal für alle, die Wert auf eine gute Verkehrsanbindung legen, Bus und Bahnhof sind in unmittelbarer Nähe und ermöglichen Ihnen eine schnelle und unkomplizierte Anbindung an die umliegenden Städte.
Nahe der Wohnhausanlage finden Sie alles, was Sie für den täglichen Bedarf benötigen: Ärzte, Apotheken, Schulen, Kindergärten, Supermärkte, Bäckereien und ein Einkaufszentrum.
Nutzen Sie die Chance auf eine moderne und komfortable Wohnung in Wieselburg!
Befristung: unbefristet, 1 Jahr Kündigungsverzicht 3 Monate Kündigungsfrist
Bezug: ab sofort
Kaufoption: ja
Energiekennzahlen: Laut Energieausweis vom 11.7.2022 beträgt der Heizwärmebedarf ca. 14,4 kWh/m²a Klasse A+ und der Gesamtenergieeffizienz-Faktor ca. 0,53 Klasse A++.
Die monatliche Miete beläuft sich auf € 712,46 inkl. BK und Ust. und der einmalige Finanzierungsbeitrag beträgt € 26.813,78.
Die monatlichen Kosten für Kaltwasser und Heizung betragen € 181,60.
Bei den Bildern handelt es sich um eine Home Staging Wohnung, welche Ihnen einen besseren Eindruck bezüglich Möblierung vermitteln sollen.
Infos zu weiteren Wohnungen gibt es bei:
Frau Lisa Zimeler
Tel.: 01/9823601 DW 641
E-Mail: lisa.zimeler@hoe.at
Social Media: facebook - instagram - youtube - linkedin
Noch nichts gefunden? Wir informieren Sie über geeignete Immobilienangebote noch vor allen anderen.
Legen Sie jetzt Ihren individuellen Suchagenten unter folgendem Link an. Wir schicken Ihnen passende Immobilien exklusiv vorab zu.
Suchagent anlegen - https://heimat-oesterreich.service.immo/registrieren/de
Infrastruktur / Entfernungen
Gesundheit
Arzt <250m
Apotheke <250m
Klinik <8.250m
Kinder & Schulen
Schule <500m
Kindergarten <500m
Universität <1.000m
Nahversorgung
Supermarkt <250m
Bäckerei <250m
Einkaufszentrum <500m
Sonstige
Bank <250m
Geldautomat <250m
Post <250m
Polizei <500m
Verkehr
Bus <250m
Autobahnanschluss <1.250m
Bahnhof <250m
Angaben Entfernung Luftlinie / Quelle: OpenStreetMap
Eckdaten Objektnr. 4446
Art: | Wohnung |
Land: | Österreich |
Baujahr: | 2024 |
Zustand: | Erstbezug |
Alter: | Neubau |
Gesamtmiete: | 712,46 € |
Kaltmiete (netto): | 712,46 € |
Kaltmiete: | 712,46 € |
Provision: | Provisionsfrei |
Wohnfläche: | 80,00 m² |
Zimmer: | 3 |
Bäder: | 1 |
WC: | 1 |
Balkone: | 1 |
Stellplätze: | 1 |
Keller: | 7,22 m² |
Heizwärmebedarf: | A+ 14,40 kWh/m²a |
fGEE: | A++ 0,53 |
Ausstattung
Fliesen, Laminatboden, Solarenergie, Fußbodenheizung, Personenaufzug, Südbalkon, Badewanne, Tiefgarage, Wasch/Trockenraum
Ihre persönliche Beratung

Lisa Zimeler
Heimat Österreich gemeinnützige Wohnungs- und Siedlungsgesellschaft m.b.H.
T +4319823601641
H 0676 3288533