Traumlage im Ennstal! Gartenwohnung mit Hauptwohnsitzbegründung!
                                                            Wohnung
                                ,
                            
                            
                                
                                                                            8960
                                    
                                                                            Niederöblarn
                                    
                                    
                                
                                                                    
                                        
                                    
                                
                            
                        
                        Zwischen Liezen und Schladming gelegen, bietet Öblarn das ganze Jahr über die perfekte Ausgangsbasis für sportliche Aktivitäten. Ob Wintersport im Schladming-Dachstein-Gebiet oder der Tauplitz, oder eine der zahlreichen Wanderrouten mit verschiedensten Schwierigkeitsgraden in der schneelosen Jahreszeit. Zahlreiche Touren wie beispielsweise der Uferweg entlang der Enns, oder die anspruchsvolle Gravel-Tour zum Salza Stausee begeistern Radfans. Wasserratten kommen auch nicht zu kurz: ein Freibad steht Alt und Jung im Sommer zur Verfügung. Wer es lieber natürlich mag, besucht den Spechtensee, der im Sommer bis zu 23 Grad erreichen kann, oder den wild-romantischen Salza Stausee.
Beschreibung der Immobilie
Traumlage im Ennstal! Gartenwohnung mit Hauptwohnsitzbegründung!
Sie sind schon länger auf der Suche nach einem Eigenheim in sonniger und absoluten ruhigen Traumlage? Und das mitten in der Schladming-Dachstein-Region? Dann wird Ihnen das Objekt sicher gefallen.
Diese helle und charmante Wohnung bietet nicht nur viel Platz, sondern auch ein durchdachtes Raumkonzept, das perfekt auf die Bedürfnisse einer großen Familie zugeschnitten ist.
Das Haus besteht aus nur zwei Wohneinheiten und wurde 1984 in Ziegelmassivbauweise erbaut. Der Zubau und Umbau erfolgte in den Jahren 2008 und 2009.“
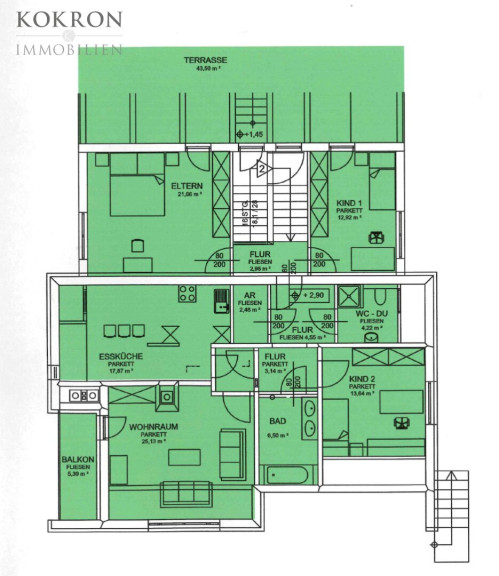
Die zum Verkauf stehende Wohnung Top 2 befindet sich im Obergeschoss (1 Zimmer - aktuell Büro im Erdgeschoss) und hat eine Größe von ca. 123 m² Wohnfläche, einen ca. 5 m² großen Balkon und einen ca. 475 m² großen herrlichen Eigengarten. Die Wohnung wurde von den Eigentümer immer gepflegt und instand gehalten.
Beheizt wird die Wohnung mittels Ölheizung und mit einem Kaminofen. 8m² Solar am Prefa-Dach. 
Hat diese Immobilie Ihr Interesse geweckt? Ich freue mich auf Ihre Anfrage! Besichtigungen sind sehr gerne auch zu Tagesrandzeiten oder am Wochenende möglich. Für weitere Fragen stehe ich Ihnen sehr gerne jederzeit zur Verfügung! Lediglich Anfragen mit vollständigem Namen, einer Telefonnummer sowie einer E-Mail-Adresse können unsererseits bearbeitet werden. Die von uns erbrachten Informationen beruhen auf Angaben des Abgebers. Für die Richtigkeit und Vollständigkeit der Angaben kann keine Gewähr bzw. Haftung übernommen werden. Änderungen vorbehalten!
 
Wir weisen darauf hin, dass zwischen dem Vermittler und dem zu vermittelnden Dritten ein familiäres oder wirtschaftliches Naheverhältnis besteht.
Der Vermittler ist als Doppelmakler tätig.
Infrastruktur / Entfernungen
Gesundheit
Arzt <3.500m
Apotheke <9.500m
Kinder & Schulen
Schule <3.000m
Kindergarten <3.000m
Nahversorgung
Supermarkt <3.000m
Bäckerei <3.000m
Sonstige
Bank <3.000m
Geldautomat <3.000m
Post <7.000m
Polizei <7.500m
Verkehr
Bus <500m
Bahnhof <1.000m
Flughafen <1.000m
Angaben Entfernung Luftlinie / Quelle: OpenStreetMap
Eckdaten Objektnr. 4734
| Art: | Wohnung | 
| Land: | Österreich | 
| Baujahr: | 1984 | 
| Zustand: | Gepflegt | 
| Alter: | Neubau | 
| Kaufpreis: | 365.000,00 € | 
| Wohnfläche: | 123,00 m² | 
| Grundstücksfl.: | 1.175,00 m² | 
| Zimmer: | 5 | 
| Bäder: | 2 | 
| WC: | 1 | 
| Balkone: | 1 | 
| Stellplätze: | 2 | 
| Garten: | 475,00 m² | 
| Heizwärmebedarf: | D 128,00 kWh/m²a | 
| fGEE: | C 1,53 | 
Ausstattung
Fliesen, Parkett, Öl, Einbauküche, Westbalkon, Badewanne, Dusche, Parkplatz
Ihre persönliche Beratung
 
                                                        Mele Bell
Kokron Immobilien e.U.
T +43 676 36 79 013
H +43 676 36 79 013
F +43 1 25 300 25 - 25
 
                 
                 
                 
                