HIGH-END AUF ZWEI EBENEN | HAUSFLAIR MIT POOL UND PANORAMABLICK AM PÖSTLINGBERG | PROVISIONSFREI
Wohnung
,
4040
Linz
Beschreibung der Immobilie
HIGH-END AUF ZWEI EBENEN | HAUSFLAIR MIT POOL UND PANORAMABLICK AM PÖSTLINGBERG | PROVISIONSFREI
Exklusive Lage mit Traumblick im schlüsselfertigen Erstbezug
Die Liegenschaft liegt am Südhang des Pöstlingbergs, einem der begehrtesten Wohngebiete rund um Linz, nur wenige Gehminuten von der Wallfahrtsbasilika entfernt. Sie genießen hier Ruhe, Natur und eine malerische Aussicht auf Linz und die Donau.
Fußläufig erreichbar sind zahlreiche Annehmlichkeiten wie die Wallfahrtsbasilika, eine familiäre Volksschule, die Grottenbahn sowie ein Ärztezentrum und Einkaufsmöglichkeiten. Die hervorragende Anbindung an die Pöstlingbergbahn und den Bus ermöglicht eine direkte Verbindung zum Linzer Hauptplatz.
Dieses architektonische Meisterwerk mit modernster Technik wurde von den renommierten Architekten Caspar & Wichert entworfen und in Zusammenarbeit mit erfahrenen Partnern auf höchstem Niveau realisiert. Das Ergebnis ist ein Wohnraum, der Funktionalität, Komfort und Eleganz perfekt vereint. Dank der durchdachten Architektur des Hauses mit nur drei Wohneinheiten wird absolute Privatsphäre zu jeder Tages- und Nachtzeit gewährleistet.
HIGHLIGHTS:
- UNVERBAUBARER PANORAMABLICK
- MODERNSTE AUSTATTUNG INKL. SMART-HOME
- RIESIGE ÜBERDACHTE AUSSENFLÄCHEN AUF ZWEI EBENEN
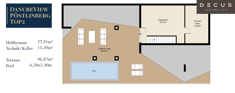
- BEHEIZTER HOBBYRAUM IM UNTERGESCHOSS
- POOL INKL. TECHNIK BEREITS INKLUDIERT
- HERRLICHE SÜD-WEST AUSRICHTUNG
- PV-ANLAGE BEREITS INKLUDIERT
- LUFT-WÄRMEPUMPE
- DECKENKÜHLUNG IN ALLEN WOHNRÄUMEN
- 2 ÜBERDACHTE STELLPLÄTZE MIT GROSSEM LAGERRAUM
Wohnen auf höchstem Niveau
Die Wohnung bietet großzügige Raumhöhen von 2,75 m und lichtdurchflutete Räume dank hochwertiger Schüco-Glaselementen mit 3-fach-Verglasung mit erhöhtem Schallschutz. Die fließenden Übergänge zwischen den Bereichen schaffen ein modernes, offenes Wohngefühl.
Exklusive Ausstattung für Ihren Komfort
• Fußböden: Hochwertige Trapa Eiche-Landhausdielen im Wohnbereich und großformatige Feinsteinzeug-Fliesen in Bädern und auf Terrassen.
• Wellness: Ein großzügiger überdachter Wellness-Bereich im Untergeschoss mit Pool und Terrasse lädt zum Entspannen ein.
• Smarte Haustechnik: Loxone-System zur Steuerung von Licht und Beschattung, Wohnraumlüftung mit Wärmerückgewinnung und Deckenkühlung für ein angenehmes Raumklima.
Außenbereiche und Nachhaltigkeit
Die Außenbereiche sind exklusiv zugeordnet und bieten Raum für Privatsphäre und Erholung. Die Errichtung sowie Inbetriebnahme einer Photovoltaik-Anlage ist im bereits Preis bereits inbegriffen. Aufgrund einer umweltschonenden Luftwärmepumpe heizt man hier auch in Zukunft ohne Abhängigkeiten von fossilen Brennstoffen.
Perfekte Verarbeitung und zeitloses Design
Von der massiven Stahlbetonkonstruktion bis hin zu eleganten Details wie den raumhohen Türen und modernen Terrassengeländern – jedes Element wurde sorgfältig geplant und ausgeführt. Die edle Holzfassade verleiht dem Gebäude eine zeitlose und unverwechselbare Optik.
Diese außergewöhnliche Wohnung kombiniert moderne Architektur mit innovativer Technik und hochwertigster Ausstattung am beliebtesten Hausberg von Linz.
Wir weisen darauf hin, dass zwischen dem Vermittler und dem zu vermittelnden Dritten ein familiäres oder wirtschaftliches Naheverhältnis besteht.
Der Vermittler ist als Doppelmakler tätig.
DECUS Immobilien GmbH – Wir beleben Räume
Für weitere Informationen und Besichtigungen steht Ihnen gerne Herr Nikolaus Karigl unter der Mobilnummer +43 660 45 434 59und per E-Mail unter karigl@decus.at persönlich zur Verfügung.
www.decus.at | office@decus.at
Wichtige Informationen
Bitte beachten Sie, dass per 13.06.2014 eine neue Richtlinie für Fernabsatz- und Auswärtsgeschäfte in Kraft getreten ist.
Ab 1.4.2024 entfallen die Grundbuchs- und Pfandrechtseintragungsgebühren vorübergehend für Eigenheime bis zu einer Bemessungsgrundlage von EUR 500.000,-. Voraussetzung ist das dringende Wohnbedürfnis, ausgenommen davon sind vererbte oder geschenkte Immobilien. Die Befreiung ist jedoch für den Einzelfall zu prüfen, DECUS Immobilien übernimmt hierzu keine Haftung.
Ab 01.07.2023 gilt das Erstauftraggeber-Prinzip bei Wohnungsmietverträgen, ausgenommen davon sind Dienst-/Natural-/Werkswohnungen. Wir dürfen gem. § 17 Maklergesetz darauf hinweisen, dass wir auf die Doppelmaklertätigkeit gem. § 5 Maklergesetz bei Wohnungsmietverträgen verzichten und nur noch einseitig tätig sind (bei den restlichen Vermittlungsarten nicht) und ein wirtschaftliches Naheverhältnis zu unseren Auftraggebern besteht.
Im Falle eines Abschlusses mit Ihnen oder einem von Ihnen namhaft gemachten Dritten bzw. bei beidseitiger Willensübereinstimmung beträgt unser Honorar (lt. Honorarverordnung für Immobilienmakler) 2 Bruttomonatsmieten (BMM) bei Dienst-/Natural-/Werkwohnungen sowie Suchaufträgen, 3 BMM bei Gewerbe-, PKW- und Lagermietverträgen sowie bei Kaufobjekten 3 % des Kaufpreises, zuzüglich der gesetzlichen Umsatzsteuer.
Dieses Objekt wird Ihnen unverbindlich und freibleibend angeboten. Oben angeführte Angaben basieren auf Informationen und Unterlagen des Eigentümers und sind unsererseits ohne Gewähr.
Nähere Informationen sowie unsere AGBs und die Nebenkostenübersichtsblatt finden Sie auf unserer Homepage www.decus.at unter "Service" - "Rechtliches zum FAGG" sowie im Anhang der zugesendeten Objekt-Exposés!
Infrastruktur / Entfernungen
Gesundheit
Arzt <1.500m
Apotheke <1.500m
Klinik <1.500m
Krankenhaus <3.500m
Kinder & Schulen
Schule <1.000m
Kindergarten <1.500m
Universität <1.500m
Höhere Schule <2.500m
Nahversorgung
Supermarkt <1.500m
Bäckerei <1.500m
Einkaufszentrum <2.500m
Sonstige
Bank <2.000m
Geldautomat <2.000m
Post <2.000m
Polizei <1.500m
Verkehr
Bus <500m
Straßenbahn <500m
Bahnhof <1.000m
Autobahnanschluss <2.000m
Flughafen <6.500m
Angaben Entfernung Luftlinie / Quelle: OpenStreetMap
Eckdaten Objektnr. 1150723
Art: | Wohnung |
Land: | Österreich |
Baujahr: | 2025 |
Zustand: | Erstbezug |
Alter: | Neubau |
Kaufpreis: | 1.490.000,00 € |
Wohnfläche: | 154,63 m² |
Nutzfläche: | 314,55 m² |
Lagerfläche: | 10,80 m² |
Zimmer: | 4 |
Bäder: | 2 |
WC: | 2 |
Terrassen: | 2 |
Stellplätze: | 2 |
Heizwärmebedarf: | B 47,89 kWh/m²a |
fGEE: | A+ 0,59 |
Ausstattung
Parkett, Fußbodenheizung, Südbalkon, Bad mit Fenster, Badewanne, Dusche, Swimmingpool, Wasch/Trockenraum
Ihre persönliche Beratung

Nikolaus Karigl
DECUS Immobilien GmbH
T +43 660 45 434 59
H +43 660 45 434 59
F +43 1 35 600 10