Gestalten Sie nach Ihrem Geschmack - Sanierungsbedürftige 3 Zimmer Altbauwohnung in der Clusiusgasse!
Wohnung
,
1090
Wien
Beschreibung der Immobilie
Gestalten Sie nach Ihrem Geschmack - Sanierungsbedürftige 3 Zimmer Altbauwohnung in der Clusiusgasse!
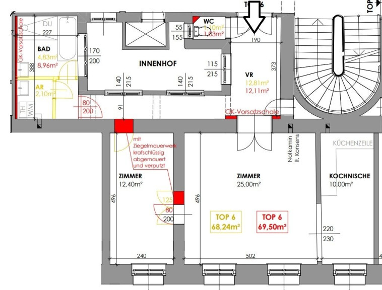
Zum Verkauf gelangt eine rund 70m² große Drei-Zimmer-Wohnung im ersten Stock eines gepflegten Altbaus aus dem Jahr 1894. Die Wohnung besticht durch ihre Lage in der Clusiusgasse nahe dem beliebten Servitenviertel und bietet viel Potenzial für eine geschmackvolle Neugestaltung.
Das Herzstück der Immobilie ist ein etwa 25m² großes Wohnzimmer, das durch seine Großzügigkeit vielfältige Gestaltungsmöglichkeiten eröffnet. Angrenzend befindet sich ein Raum, in dem sich ursprünglich die Kochnische befunden hat, sowie ein weiteres Zimmer mit etwa 12m² das sich flexibel nutzen lässt. Im hinteren Bereich der Wohnung liegen das ursprüngliche Badezimmer sowie eine separate Toilette.
Die gesamte Wohnung befindet sich in einem komplett sanierungsbedürftigen Zustand, wodurch künftigen Eigentümerinnen und Eigentümern die Möglichkeit gegeben ist, ihre persönlichen Vorstellungen einzubringen und ein modernes Wohnkonzept in einem klassischen Wiener Altbau zu verwirklichen. Dank der ausgezeichneten Lage in einer der begehrtesten Gegenden der Stadt bietet diese Immobilie die seltene Gelegenheit, ein charmantes Zuhause nach individuellen Wünschen zu schaffen.
Aufteilung:
- Vorzimmer
- Wohnzimmer
- offenes Zimmer mit Küchenanschlüssen
- Schlafzimmer
- Badezimmer
- separate Toilette
Wir weisen darauf hin, dass zwischen dem Vermittler und dem zu vermittelnden Dritten ein familiäres oder wirtschaftliches Naheverhältnis besteht.
Der Vermittler ist als Doppelmakler tätig.
Infrastruktur / Entfernungen
Gesundheit
Arzt <500m
Apotheke <500m
Klinik <500m
Krankenhaus <1.500m
Kinder & Schulen
Schule <500m
Kindergarten <500m
Universität <500m
Höhere Schule <1.000m
Nahversorgung
Supermarkt <500m
Bäckerei <500m
Einkaufszentrum <2.000m
Sonstige
Geldautomat <500m
Bank <500m
Post <500m
Polizei <500m
Verkehr
Bus <500m
U-Bahn <500m
Straßenbahn <500m
Bahnhof <500m
Autobahnanschluss <1.500m
Angaben Entfernung Luftlinie / Quelle: OpenStreetMap
Eckdaten Objektnr. 6653/795
Art: | Wohnung |
Land: | Österreich |
Baujahr: | 1894 |
Zustand: | Sanierungsbeduerftig |
Alter: | Altbau |
Kaufpreis: | 461.250,00 € |
Provision: | 3% des Kaufpreises zzgl. 20% USt. |
Betriebskosten: | 190,43 € |
MwSt Gesamt: | 19,04 € |
Wohnfläche: | 69,50 m² |
Zimmer: | 3 |
Bäder: | 1 |
WC: | 1 |
Heizwärmebedarf: | D 145,40 kWh/m²a |
fGEE: | E 2,92 |
Ausstattung
Fliesen, Parkett, Gas, Etagenheizung, Personenaufzug
Ihre persönliche Beratung

Laurenz Schnitzer
Confido Immobilien GmbH
T +43 664 518 45 11
H +43 664 518 45 11