Wohnen über den Dächern von Wels – 3 Zimmer Dachgeschosswohnung mit großzügigem Balkon!
Wohnung
- Dachgeschoß,
4600
Wels
Das Neubauprojekt entsteht auf einem der am besten gelegenen Grundstücke in Wels. Der Hauptbahnhof, das Klinikum sowie das Stadtzentrum sind fußläufig erreichbar. Auch die Bushaltestelle ist in 2-3 Gehminuten schnell erreichbar. Im Umkreis von 1km befinden sich Schulen, Kindergarten, Bushaltestellen, Arztpraxen, Apotheke, Bäckerei Stöbich, Interspar sowie zahlreiche Geschäfte.
Beschreibung der Immobilie
Wohnen über den Dächern von Wels – 3 Zimmer Dachgeschosswohnung mit großzügigem Balkon!
HYGGE Dachgeschosswohnung Top A3.2 – in 1A Lage in Wels/Neustadt!
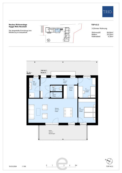
Die südwestlich ausgerichtete Neubau-Dachgeschosswohnung im 3. Obergeschoss bietet auf 84,84 m² Wohnfläche modernen Wohnkomfort und eine durchdachte Raumaufteilung, die den Ansprüchen zeitgemäßen Wohnens gerecht wird. Große Fensterflächen sorgen für helle, freundliche Räume. Besonders hervorzuheben ist der rd. 20,25m² große Balkon, der zum Entspannen im Freien einlädt. Zusätzlich steht ein Kellerabteil mit rd. 4,30 m² zur Verfügung.
Ausstattungs-Highlights:
nachhaltiges Mobilitätskonzept - mit dem Fahrrad bis zur Wohnungstür
spezielle Lastenliftanlage für barrierefreien Zugang vom EG bis ins DG
extrabreite Laubengänge und großzügige Grünanlagen mit Kommunikationszone
natürliche Holzmassivbauweise für angenehmes Raumklima
Fußbodenheizung - Kunststofffenster mit 3-fach-Isolierverglasung
Hochwertige Sanitärausstattung mit Markenprodukten
Photovoltaikanlage (PV) - Vorbereitung für E-Ladestationen (Kabeltasse)
Einbruchshemmende Vollbau-Eingangstür mit beidseitigem Drücker
TOP-LAGE: Der Hauptbahnhof, das Klinikum sowie das Stadtzentrum sind fußläufig erreichbar. Im Umkreis von 1 km befinden sich Schulen, Kindergarten, Bushaltestellen, Arztpraxen, Apotheke sowie Gastro und zahlreiche Geschäfte.
Vereinbaren Sie noch heute einen persönliches Beratungsgespräch und lassen Sie sich von dieser traumhaften Immobilie begeistern!
Kontaktdaten: og@eurea.at, Oliver Gassenbauer: 0699/10 639 105
Bitte beachten Sie, dass wir aufgrund der Nachweispflicht gegenüber dem Eigentümer nur Anfragen mit vollständiger Angabe ihrer Kontaktdaten (Anschrift, Telefonnummer, E-Mailadresse) bearbeiten können.
Ihr Oliver Gassenbauer
Noch nichts gefunden? Wir informieren Sie über geeignete Immobilienangebote noch vor allen anderen.
Legen Sie jetzt Ihren individuellen Suchagenten unter folgendem Link an. Wir schicken Ihnen passende Immobilien exklusiv vorab zu.
Suchagent anlegen - https://eurea-real-estates.service.immo/registrieren/de
Der Vermittler ist als Doppelmakler tätig.
Infrastruktur / Entfernungen
Gesundheit
Arzt <500m
Apotheke <500m
Klinik <1.000m
Krankenhaus <1.000m
Kinder & Schulen
Schule <500m
Kindergarten <500m
Universität <1.000m
Nahversorgung
Supermarkt <500m
Bäckerei <500m
Einkaufszentrum <2.000m
Sonstige
Bank <500m
Geldautomat <500m
Post <500m
Polizei <1.000m
Verkehr
Bus <500m
Autobahnanschluss <2.500m
Bahnhof <500m
Flughafen <2.500m
Angaben Entfernung Luftlinie / Quelle: OpenStreetMap
Eckdaten Objektnr. 6244/975
Art: | Wohnung - Dachgeschoß |
Land: | Österreich |
Baujahr: | 2025 |
Zustand: | Erstbezug |
Alter: | Neubau |
Kaufpreis: | 467.000,00 € |
Provision: | 3% des Kaufpreises zzgl. 20% USt. |
Wohnfläche: | 84,84 m² |
Zimmer: | 3 |
Bäder: | 1 |
WC: | 1 |
Balkone: | 1 |
Keller: | 4,30 m² |
Heizwärmebedarf: | B 42,00 kWh/m²a |
fGEE: | A 0,71 |
Ausstattung
Fliesen, Parkettboden, Fußbodenheizung, Lastenaufzug, Personenaufzug, Bad mit Fenster, Dusche, Kabel/Satelliten-TV, Tiefgarage
Ihre persönliche Beratung

Oliver Gassenbauer
COORE-GC Real Estate GmbH
T +43 699 10639105