| NATÜRLICH DRAUSSEN | BAUFELD 14A | EIGENNUTZER | FERTIGSTELLUNG 2027 | VILLAGE IM DRITTEN
Wohnung
,
1030
Wien
Beschreibung der Immobilie
| NATÜRLICH DRAUSSEN | BAUFELD 14A | EIGENNUTZER | FERTIGSTELLUNG 2027 | VILLAGE IM DRITTEN
WOHNEN IM VILLAGE IM DRITTEN
Im dritten Wiener Gemeindebezirk entsteht mit dem VILLAGE IM DRITTEN ein neues Stück Stadt – eines der größten Stadtentwicklungsgebiete Wiens. Auf über elf Hektar
entwickelt die ARE Austrian Real Estate gemeinsam mit der Stadt Wien und dem wohnfonds_wien ein lebendiges, nahezu autofreies Quartier mit rund 2.000 Wohnungen,
Büro- und Gewerbeflächen, Kinderbetreuung, Bildungseinrichtungen und Nahversorgung.
Das grüne Herz bildet der über 2 Hektar große Bert-Brecht-Park – eine Oase für Erholung, Begegnung und Spiel. Alle Dächer, die nicht begehbar sind, werden begrünt. Sharing-
Angebote, Einkaufsmöglichkeiten und Gastronomie liegen direkt vor der Haustüre. Nachhaltigkeit, kurze Wege und hohe Lebensqualität sind die Leitlinien dieses neuen
Stadtviertels.
Mit dem Slogan „natürlich draußen“ verkörpert Baufeld 14A diese Idee in besonderer Weise: großzügige Freibereiche, intelligente Architektur, nachhaltige Energieversorgung –
Wohnen mitten in Wien, im Einklang mit der Natur.
ARCHITEKTUR, DIE FREIRAUM GESTALTET
Der Gebäudekomplex besteht aus zwei trapezförmigen Baukörpern, die über die Tiefgarage im ersten Untergeschoss verbunden sind. Insgesamt entstehen 126 Eigentumswohnungen,
ergänzt durch ein Geschäftslokal, sowie 65 KFZ-Stellplätze und zahlreiche Fahrradabstellplätze. Jeder Wohnung ist zudem ein Einlagerungsraum zugeordnet.
Großzügig und freundlich gestaltete Entrées empfangen die Bewohner:innen und leiten in geräumige Stiegenhäuser. Einschnitte in den obersten Geschossen und weite
Treppenaugen bringen Tageslicht tief in die Allgemeinbereiche. Einen wichtigen Beitrag zum sommerlichen Hitzeschutz leisten begrünte Freiraumzonen vor den Wohnungen sowie
der textile Sonnenschutz an den Balkonfronten. Auf den Gründächern entsteht mit einem Biodiversitätskonzept neuer Lebensraum für Vögel und Insekten.
Architektonische Highlights
- Rhythmisch gegliederte Fassaden mit Holz- & Klinkerelementen – modern, leicht und zeitlos
- Balkone & Loggien von nahezu allen Wohnräumen direkt begehbar, mit Sonnenschutzscreens und großzügiger Tiefe
- Begrünte Freiraumzonen vor den Wohnungen als natürliche Klimapuffer
- Gründächer mit Biodiversitätskonzept – Lebensraum für Vögel & Insekten
- Einladende Entrées & Treppenhäuser, durch Einschnitte und Treppenaugen lichtdurchflutet
Die Architektur vermittelt Großzügigkeit und schafft gleichzeitig ein Gefühl von Geborgenheit – perfekt für ein urbanes Zuhause gepaart mit Naturverbundenheit.
ÜBERBLICK
- 126 Eigentumswohnungen
- 1 Geschäftslokal
- 65 Tiefgaragenplätze, tlw. vorbereitet für E-Mobilität
- Fahrrad- & Lastenradabstellplätze, Kellerabteile
- Alle Wohnungen mit Außenflächen
- Fertigstellung: voraussichtlich 2027
- Provisionsfrei für Käufer:innen
WOHNQUALITÄT BIS INS DETAIL
Jede Wohnung ist so gestaltet, dass sie sich dem Alltag ihrer Bewohner:innen anpasst – funktional, hochwertig und mit Wohlfühlfaktor.
Ausstattung im Überblick
- Edle Parkettböden in allen Wohnräumen
- Fliesenbäder mit bodenebenen Duschen oder Badewannen
- Holz-Alu-Fenster mit Dreifach-Isolierverglasung
- Außenliegender Sonnenschutz bei allen Fenstern
- WK3-Sicherheitstüren und Videogegensprechanlage
- Private Außenflächen: Balkon, Loggia, Terrasse oder Eigengarten
- Gemeinschaftsraum mit vorgelagerter Terrasse, Garten, WC und Küche
- Kleinkinderspielplatz „Spiel-Hain“ mit angrenzenden Gemeinschaftsbeeten
ENERGIE MIT ZUKUNFT
Das gesamte Quartier setzt auf ein innovatives Anergienetz, das Gebäude verbindet und Energieflüsse optimiert. Auch Baufeld 14A wird dadurch zu einem Vorzeigeprojekt
nachhaltiger Versorgung:
- Erdsonden in Kombination mit Wärmepumpen liefern Energie zur Raumheizung im Winter und für die Temperierung (Grundkühlung) im Sommer.
- Photovoltaikanlagen am Dach erzeugen erneuerbaren Strom.
- Fußbodenheizung im Erdgeschoß und Bauteilaktivierung in den Obergeschoßen (über die jeweils darüberliegenden Geschoßdecke) sorgen für ein ausgeglichenes Raumklima.
- Pendellüftungen mit Wärmerückgewinnung stellen kontinuierliche Frischluftzufuhr sicher.
- Fernwärmeanschluss unterstützt die Versorgung in Spitzenzeiten sowie die Warmwasserbereitung.
So entsteht ein Zusammenspiel aus Wohnkomfort, Energieeffizienz und ökologischer Verantwortung – ein Mehrwert für Bewohner:innen.
ARE
Die ARE ist eine der größten Immobiliengesellschaften Österreichs und hat bereits einige der prägendsten Bauprojekte Wiens realisiert – darunter die Sanierung des historischen
Palais Epstein am Ring sowie die markanten TrIIIple Tower am Donaukanal. Auch das VILLAGE IM DRITTEN reiht sich in diese Reihe innovativer Projekte ein.
LAGE
Otto-Preminger-Straße 16, 1030 Wien, Landstraße
Hilde-Güden-Promenade 7, 1030 Wien, Landstraße
LAGE – URBAN UND GRÜN
- Direkt am rund 2 Hektar großen Bert-Brecht-Park – Natur und Erholung vor der Haustüre
- Straßenbahn: Linie 18 (Wildgansplatz, 2 Min.), Linie 71 (St. Marx, 3 Min.)
- Neue Straßenbahnlinie 18: ab voraussichtlich Herbst 2026 direkte Verbindung von Schlachthausgasse (U3) zur U2 Stadion – damit neue Direktanbindung in den grünen Prater
- S-Bahn: Station St. Marx (2 Min.), Quartier Belvedere (15 Min.)
- U-Bahn: U3 Schlachthausgasse (15 Min.), U1 Hauptbahnhof (15 Min.)
- Hauptbahnhof Wien: 7 Minuten mit der Straßenbahn
- City Stephansplatz: in ca. 20 Minuten erreichbar
- Autobahn A23, Anschlussstelle Landstraßer Gürtel / St. Marx: 3 Minuten
- Flughafen Wien: ca. 30 Minuten mit Auto oder Schnellbahn
Nahversorgung & Freizeit
- Einkaufs- und Gastronomieflächen im Quartier
- Vielfältige Einkaufsmöglichkeiten im Rennweg Center, in „The Mall“ Wien Mitte sowie am Hauptbahnhof
- Kulturelle Highlights: Belvedere, Botanischer Garten, Stadtpark, Hundertwasserhaus,
- Eventhalle in Neu Marx
- Erholung in Gehweite: Schweizergarten, Donaukanal, Prater
Nebenkosten
3,5% Grunderwerbsteuer
1,1% Grundbuchseintragungsgebühr
0,5% Vertragserrichtungskosten, mind. EUR 2.500,00 (zzgl. 20% USt)
Barauslagenakonto: EUR 600,00 (inkl. 20% USt)
Beglaubigungsgebühr: EUR 450,00 (zzgl. Barauslagen und 20% USt.)
Gebühr für die Abwicklung von Fremdfinanzierungen: 0,25% vom Finanzierungsbetrag
(zzgl. 20% USt)
Disclaimer:
Alle Informationen, Angaben, Pläne und Visualisierungen in diesem Exposé sind unverbindlich. Änderungen vorbehalten. Kein Rechtsanspruch ableitbar. Dargestellte Grundrisse und Ansichten beruhen auf Daten, die den aktuellen Planungsstand repräsentieren und im Zuge der weiteren Planungs- und Ausführungsphase variieren können. Alle gezeigten Ansichten der
Gebäude sowie der Einrichtungen sind Symbolbilder und freie künstlerische Darstellungen. Allenfalls dargestellte Einrichtungsgegenstände dienen ausschließlich der Veranschaulichung und werden nicht von der Verkäuferin zur Verfügung gestellt. Die Inhalte dieses Exposés wurden mit größtmöglicher Sorgfalt und unter Beachtung von Rechten Dritter (z. B. Urheberrecht) erstellt. Zwar wird dieses Exposé regelmäßig auf Aktualität, Vollständigkeit und Richtigkeit überprüft. Dies kann jedoch trotzdem nicht jederzeit gewährleistet werden. Wir ersuchen daher, bei Unklarheiten direkt mit uns Kontakt aufzunehmen. Eine Verwendung der Inhalte dieses Exposés (insbesondere der Bilder) ohne unsere ausdrückliche Zustimmung ist nicht gestattet.
DECUS Immobilien GmbH – Wir beleben Räume
Für weitere Informationen und Besichtigungen steht Ihnen gerne Frau Linda Schmidtberger unter der Mobilnummer +43 660 75 75 013und per E-Mail unter schmidtberger@decus.at persönlich zur Verfügung.
www.decus.at | office@decus.at
Wichtige Informationen
Bitte beachten Sie, dass per 13.06.2014 eine neue Richtlinie für Fernabsatz- und Auswärtsgeschäfte in Kraft getreten ist.
Ab 1.4.2024 entfallen die Grundbuchs- und Pfandrechtseintragungsgebühren vorübergehend für Eigenheime bis zu einer Bemessungsgrundlage von EUR 500.000,-. Voraussetzung ist das dringende Wohnbedürfnis, ausgenommen davon sind vererbte oder geschenkte Immobilien. Die Befreiung ist jedoch für den Einzelfall zu prüfen, DECUS Immobilien übernimmt hierzu keine Haftung.
Ab 01.07.2023 gilt das Erstauftraggeber-Prinzip bei Wohnungsmietverträgen, ausgenommen davon sind Dienst-/Natural-/Werkswohnungen. Wir dürfen gem. § 17 Maklergesetz darauf hinweisen, dass wir auf die Doppelmaklertätigkeit gem. § 5 Maklergesetz bei Wohnungsmietverträgen verzichten und nur noch einseitig tätig sind (bei den restlichen Vermittlungsarten nicht) und ein wirtschaftliches Naheverhältnis zu unseren Auftraggebern besteht.
Im Falle eines Abschlusses mit Ihnen oder einem von Ihnen namhaft gemachten Dritten bzw. bei beidseitiger Willensübereinstimmung beträgt unser Honorar (lt. Honorarverordnung für Immobilienmakler) 2 Bruttomonatsmieten (BMM) bei Dienst-/Natural-/Werkwohnungen sowie Suchaufträgen, 3 BMM bei Gewerbe-, PKW- und Lagermietverträgen sowie bei Kaufobjekten 3 % des Kaufpreises, zuzüglich der gesetzlichen Umsatzsteuer.
Dieses Objekt wird Ihnen unverbindlich und freibleibend angeboten. Oben angeführte Angaben basieren auf Informationen und Unterlagen des Eigentümers und sind unsererseits ohne Gewähr.
Nähere Informationen sowie unsere AGBs und die Nebenkostenübersichtsblatt finden Sie auf unserer Homepage www.decus.at unter "Service" - "Rechtliches zum FAGG" sowie im Anhang der zugesendeten Objekt-Exposés!
Infrastruktur / Entfernungen
Gesundheit
Arzt <500m
Apotheke <500m
Klinik <500m
Krankenhaus <1.000m
Kinder & Schulen
Schule <500m
Kindergarten <500m
Universität <500m
Höhere Schule <500m
Nahversorgung
Supermarkt <500m
Bäckerei <500m
Einkaufszentrum <500m
Sonstige
Geldautomat <500m
Bank <500m
Post <500m
Polizei <1.000m
Verkehr
Bus <500m
U-Bahn <1.000m
Straßenbahn <500m
Bahnhof <500m
Autobahnanschluss <1.000m
Angaben Entfernung Luftlinie / Quelle: OpenStreetMap
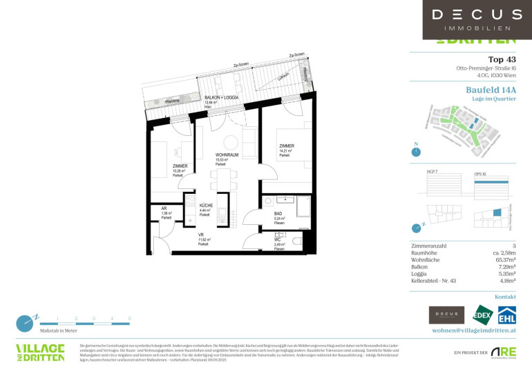
Eckdaten Objektnr. 1150318
Art: | Wohnung |
Land: | Österreich |
Baujahr: | 2027 |
Alter: | Neubau |
Kaufpreis: | 571.000,00 € |
Wohnfläche: | 65,37 m² |
Zimmer: | 3 |
Bäder: | 1 |
WC: | 1 |
Balkone: | 1 |
Keller: | 4,18 m² |
Heizwärmebedarf: | A 29,00 kWh/m²a |
fGEE: | A 0,75 |
Ihre persönliche Beratung

Linda Schmidtberger
DECUS Immobilien GmbH
T +43 660 75 75 013
H +43 660 75 75 013
F +43 1 35 600 10