Charmante Wienerwald-Villa in erstklassiger Siedlungslage in Pressbaum
                                                            Haus
                                ,
                            
                            
                                
                                                                            3021
                                    
                                                                            Pressbaum
                                    
                                    
                                
                                                                    
                                        
                                    
                                
                            
                        
                        Beschreibung der Immobilie
Charmante Wienerwald-Villa in erstklassiger Siedlungslage in Pressbaum
Die um die Jahrhundertwende erbaute und laufend sanierte Wienerwaldvilla, befindet sich in begehrter Siedlungslage unweit des Pressbaumer Zentrums. Massiv erbaut und mit Vollwärmeschutz ausgestattet bietet die heimelige Villa über 155 m² Wohnfläche, verteilt auf drei Etagen. Sie ist sowohl als reine Wohnimmobilie als auch gemischt nutzbar, z.B. als Praxis oder Büro. Die Ebenen sind so konzipiert, dass sich Büro- oder Geschäftsflächen vom Wohnraum abtrennen lassen, es gibt zwei separate Eingänge.
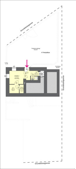
Der Zugang erfolgt südseitig über den Vorplatz mit 4 PKW-Parkplätzen ins Erdgeschoß, welches derzeit als Praxis genützt wird. Hier liegen, vom zentralen Vorraum ausgehend, das auch als Wartebereich dienen kann, ein ostseitiges Zimmer mit Abstellraum, wo sich derzeit ein Server befindet. Ein separates WC ist, auch in Hinblick auf eventuellen Kundenkontakt, vorhanden.
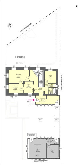
Sowohl im Haus über eine Holztreppe als auch nordseitig über den Innenhof gelangt man in das Obergeschoß. Der großzügige Windfang bietet ausreichend Stauraum, auch ist ein Ausgang in den hinteren Teil des Innenhofes möglich. Weiters werden auf dieser Ebene noch, vom komfortablen Vorraum kommend, ein ostseitiges sowie ein südostseitiges Zimmer geboten. Eine Küche mit Essbereich, ein separates WC und ein Bad mit Wanne komplettieren in diesem Stock das Raumangebot.
Außergewöhnlich ist der Innenhof, der von einem überdachten Laubengang und einem praktischen, vielseitig nutzbaren Nebengebäude mit über 32 m² umgeben ist. Hier lassen sich gut gemütliche Plätze, Grillbereich oder Kinderspielplatz gestalten.
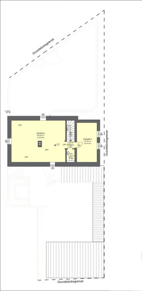
Besonders attraktiv gestaltet sich das Dachgeschoß. Ein lichtdurchfluteter, ca. 45 m² großer Wohnbereich mit Holztramdecke, Giebel- und Dachflächenfenster bietet einen wunderschönen Ausblick in den Wienerwald. Ein separates WC sowie ein westseitiges Zimmer stehen noch zur Verfügung.
Sämtliche Infrastruktureinrichtungen wie Nahversorger, Supermarkt, Bank, sowie das bekannte Schulzentrum Sacré Coeur Pressbaum, Neue Mittelschule, Volksschule und der Landeskindergarten sind fußläufig erreichbar. Zum Schulzentrum Norbertinum im angrenzenden Tullnerbach mit Wienerwaldgymnasium und Pferdefachschule gelangt man schnell mit dem Schulbus.
Zur sportlichen Freizeitbetätigung stehen ein Tennisplatz, ein Reitstall im Sacre Coeur, das Schwimmbad, diverse markierte Wanderwege, Laufstrecken uvm. zur Verfügung. Das Naherholungsgebiet rund um den Wienerwaldsee mit Panoramarundweg, Spielplatz, Beach Volleyball- und Skaterplatz liegt nur etwa drei Kilometer entfernt und ist auch mit dem Fahrrad in ein paar Minuten erreichbar. Die Wiener Stadtgrenze und der Bahnhof Hütteldorf mit „Park and Ride“ Anlage sind über die Autobahnanbindung A1 in ca. 15 Autominuten erreichbar. Über die Anschlussstelle Pressbaum der A1 erreicht man die Bundeshauptstadt St. Pölten in rund 30 Minuten. Eine Autobushaltestelle befindet sich unweit der Wohnhausanlage, die Haltestelle Pressbaum der Westbahn liegt nur wenige Gehminuten entfernt.
Die Beheizung erfolgt mittels Gas-Zentralheizung über Radiatoren, die Gastherme wurde 2023 generalüberholt. Ein Kaminanschluß ist vorhanden. Eine Klimaanlage im Dachgeschoß sorgt für angenehme Temperaturen im Sommer. Hochwertige Holz- bzw. Dielenböden vermitteln das Gefühl von Belle Époque.
Der Vermittler ist als Doppelmakler tätig.
Infrastruktur / Entfernungen
Gesundheit
Arzt <500m
Apotheke <500m
Klinik <8.500m
Kinder & Schulen
Kindergarten <500m
Schule <500m
Nahversorgung
Supermarkt <500m
Bäckerei <1.000m
Sonstige
Bank <500m
Geldautomat <500m
Post <500m
Polizei <500m
Verkehr
Bus <500m
Autobahnanschluss <1.000m
Bahnhof <500m
Angaben Entfernung Luftlinie / Quelle: OpenStreetMap
Eckdaten Objektnr. 95248
| Art: | Haus | 
| Land: | Österreich | 
| Baujahr: | 1904 | 
| Zustand: | Gepflegt | 
| Alter: | Altbau | 
| Kaufpreis: | 780.000,00 € | 
| Provision: | 3% des Kaufpreises zzgl. 20% USt. | 
| Wohnfläche: | 156,00 m² | 
| Nutzfläche: | 188,00 m² | 
| Zimmer: | 5 | 
| Bäder: | 1 | 
| WC: | 3 | 
| Stellplätze: | 4 | 
| Garten: | 242,00 m² | 
| Heizwärmebedarf: | C 93,00 kWh/m²a | 
| fGEE: | C 1,22 | 
Ausstattung
Dielenboden, Fliesen, Parkett, Gas, Zentralheizung, Einbauküche, Badewanne, DV-Verkabelung, Parkplatz, Alarmanlage
Ihre persönliche Beratung
 
                                                        Mag. Irene Dräxler
Rudi Dräxler Immobilientreuhand GesmbH
T +43 1 577 44 34
H +43 664 993 1248
 
                 
                 
                 
                 
                 
                 
                 
                 
                 
                 
                 
                 
                 
                 
                 
                