Beschreibung der Immobilie
Gewölbekeller, Stüberl, Weinkeller, Eventlocation
Ein Highlight in unserem Portfolio ist gegenständlicher Gewölbekeller/ Weinkeller (trocken, kein unangenehmer Geruch) , der nicht nur Stauraum bietet, sondern auch die perfekte Voraussetzung für Weinliebhaber darstellt. Nutzen Sie diesen besonderen Raum, um exklusive Weine anzubieten oder Ihre eigene Kollektion zu lagern.
Der großzügige Weinkeller/ Gewölbekeller verfügt über eine Gastroküche (eingerichtet) und kann ab sofort angemietet werden. Er ist sowohl über das darüber liegende Geschäftslokal zu betreten, aber auch vom Gangbereich der Liegenschaft zugängig. Wird nur der Kellerbereich, nicht aber das Geschäftslokal angemietet, so wird der Zugang über das Geschäftslokal geschlossen werden.
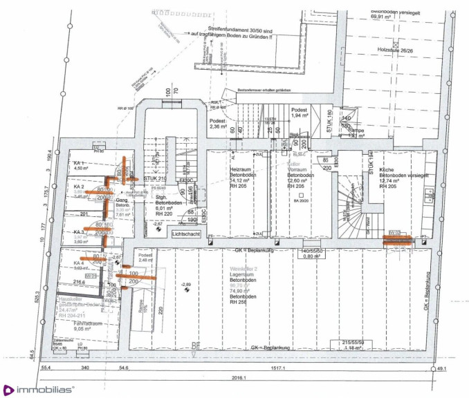
Raumaufteilung Weinkeller (siehe Plan anbei):
Gastroküche, ca 12,74 m²
anschließender Gewölbekeller, ca 74,90 m²
Der Zugang erfolgt über aktuell sowohl über das Stiegenhaus als auch den Kellerbereich der Liegenschaft.
Mietdauer: 10 Jahre mit allfälliger Verlängerungsoption
Miete: € 1 050.- zzgl Ust und anteilige BK
Kaution: 3 Bruttomieten
Vermittlungshonorar: 3 Bruttomieten zzgl 20% Ust
Übernahme: sofort möglich
Zusätzlich kann ein gepflegtes Geschäftslokal, welches sich darüber befindet, angemietet werden. Es verfügt über eine angenehm hohe Raumhöhe und eine großzügige Fensterfront in Richtung Straße, welche eine angenehme Lichtatmosphäre mit sich bringt. Es ist in einem sanierten Stilhaus in Mödling gelegen. Sie erhalten ein funktionales und helles Raumangebot, das sich perfekt für verschiedene Geschäftsideen eignet- perfekt als Eisgeschäft, attraktive Verkaufs-/ Präsentationsfläche, Atelier, Vinothek oder dergleichen nutzbar.
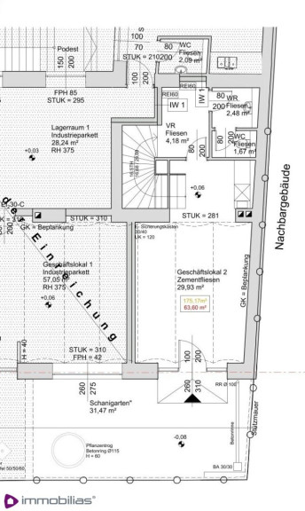
Raumaufteilung Geschäftslokal (siehe Plan anbei):
großer Verkaufsraum, ca 29,93 m², zu betreten über den straßenseitigen Eingang
kleiner Vorraum, ca 4,18 m²
Küchenbereich- eingerichtet mit einer recht einfachen Küche
Waschraum, ca 2,48 m²
WC, ca 1,67 m²
Ausstattung: Gaszentralheizung, einfache Küche verbleibt im Objekt (siehe Bild)
Mietdauer: 10 Jahre mit allfälliger Verlängerungsoption
Miete: € 950.- zzgl Ust und anteilige BK
Kaution: 3 Bruttomieten
Vermittlungshonorar: 3 Bruttomieten zzgl 20% Ust
Übernahme: sofort möglich
Gesamtmiete für das Geschäftslokal und den Weinkeller:
Miete netto: € 2000.- zzgl Ust
BK: € 161,50.- zzgl Ust
Heizung/ WW: € 120.- zzgl Ust (Akonto)
Miete warm: € 2 682.- brutto inkl Ust, BK und Heizung/WW
Kaution: 3 Bruttomieten
Mietdauer: 10 Jahre mit allfälliger Verlängerungsoption
Vermittlungshonorar: 3 Bruttomieten zzgl 20% Ust
Die Verkehrsanbindung könnte nicht besser sein: In unmittelbarer Nähe finden Sie eine Bushaltestelle sowie den Bahnhof, der eine schnelle Anbindung an die umliegenden Städte ermöglicht. Dies sorgt nicht nur für eine hohe Kundenfrequenz, sondern auch für eine einfache Erreichbarkeit für Ihre Mitarbeiter.
Lassen Sie sich diese Gelegenheit nicht entgehen! Vereinbaren Sie noch heute einen Besichtigungstermin und überzeugen Sie sich selbst von diesem einzigartigen Angebot!
Für alle weiteren Fragen stehe ich Ihnen gerne zur Verfügung:
Andrea Höferstock
T: 0699/1 4444 700
E: office@immobilias.at
Viele weitere Angebote finden Sie auf unserer Homepage www.immobilias.at
Bitte beachten Sie, dass wir aufgrund der Nachweispflicht gegenüber dem Eigentümer nur Anfragen mit vollständiger Anschrift und Telefonnummer bearbeiten können und auch nur in diesem Falle Auskünfte über Objektunterlagen und die genauen Liegenschaftsadresse geben dürfen.
Wir bitten um größtmögliche Diskretion und ersuchen Sie, Innenbesichtigungen und Verhandlungen ausschließlich über uns durchzuführen. Der Vollständigkeit halber halten wir fest, dass wir Ihnen bei Anmietung/ Ankauf eines von uns namhaft gemachten Objektes durch Sie oder einen durch Sie namhaft gemachten Dritten bzw. bei beidseitiger Willensübereinstimmung eine Vermittlungsprovision in der Höhe von 3 Bruttomonatsmieten bei Gewerbeimmobilien, 2 Bruttomonatsmieten bei Wohnimmobilien bzw. 3 % des Kaufpreises zuzüglich der gesetzlichen Umsatzsteuer in Rechnung stellen (Honorarverordnung für Immobilienmakler, BGBl. Nr. 262 und 297/1996).
Dieses Angebot ist unverbindlich und freibleibend. Die Angaben erfolgen aufgrund der Informationen und Unterlagen, die uns vom Eigentümer und/oder Dritten zur Verfügung gestellt werden und sind ohne Gewähr. Im übrigen gelten die allgemeinen Geschäftsbedingungen sowie die Verordnung des BM für wirtschaftliche Angelegenheiten über Standes- und Ausübungsregeln für Immobilienmakler, BGBl 297/96.
Noch nichts gefunden? Wir informieren Sie über geeignete Immobilienangebote noch vor allen anderen.
Legen Sie jetzt Ihren individuellen Suchagenten unter folgendem Link an. Wir schicken Ihnen passende Immobilien exklusiv vorab zu.
Suchagent anlegen - https://immobilias-realitaeten.service.immo/registrieren/de
!! Wir möchten Sie informieren – Maklervertrag Bestimmungen !!
(FAGG - Fern- u. Auswärtsgeschäfte-Gesetz - VRUG - Verbraucherrechte Richtlinie-Umsetzungsgesetz)
Alleine durch die Unterfertigung dieses Maklervertrages und die Besichtigung von Objekten entstehen Ihnen keinerlei Kosten.
Erst mit dem Abschluss eines Kaufvertrages und/ oder eines Mietvertrages tritt unsere Verdienstlichkeit ein und es wird die Provisionszahlungspflicht iSd Provisionsvereinbarung dieses Vertrages ausgelöst!
Wenn der Kaufvertrag/ Mietvertrag nicht zustande kommt, bleibt unsere Tätigkeit für Sie vollkommen kostenlos!
Bitte haben Sie dafür Verständnis, dass wir Ihnen seit dem 13. Juni 2014 aufgrund der neuen EU-Richtlinie Unterlagen und Informationen zu unseren Objekten erst dann übersenden können, wenn Sie bestätigen, dass Sie unser vorzeitiges Tätigwerdenwünschen und über Ihre Rücktrittsrechte aufgeklärt wurden. Hierfür erhalten Sie nach Ihrer Anfrage eine Email mit den entsprechenden Unterlagen und einem Link, um diese Punkte zu bestätigen.
Vielen Dank!
Bitte beachten Sie, dass wir aufgrund der Nachweispflicht gegenüber dem Eigentümer und um Ihre Rechte zu wahren nur Anfragen mit vollständigen Kontaktdaten (Name, Anschrift und Telefonnummer) bearbeiten können und auch nur in diesem Falle Auskünfte über Objektunterlagen und die genauen Liegenschaftsadresse geben dürfen. Wir bitten um größtmögliche Diskretion und ersuchen Sie, Innenbesichtigungen und Verhandlungen ausschließlich über uns durchzuführen.
Nebenkosten lt. Nebenkostenübersicht
Der Vollständigkeit halber halten wir fest, dass wir Ihnen bei Anmietung/Ankauf eines von uns namhaft gemachten Objektes durch Sie oder einen durch Sie namhaft gemachten Dritten bzw. bei beidseitiger Willensübereinstimmung eine Vermittlungsprovision in der Höhe von 3 Bruttomonatsmieten bei Gewerbeimmobilien, 2 Bruttomonatsmieten bei Wohnimmobilien bzw. 3 % des Kaufpreises zuzüglich der gesetzlichen Umsatzsteuer in Rechnung stellen (Honorarverordnung für Immobilienmakler, BGBl. Nr. 262 und 297/1996).
Dieses Angebot ist unverbindlich und freibleibend. Die Angaben erfolgen aufgrund der Informationen und Unterlagen, die uns vom Eigentümer und/oder Dritten zur Verfügung gestellt werden und sind ohne Gewähr.
Im Übrigen gelten die allgemeinen Geschäftsbedingungen sowie die Verordnung des BM für wirtschaftliche Angelegenheiten über Standes- und Ausübungsregeln für Immobilienmakler, BGBl 297/96.
Alle Angaben im Angebot basieren auf Informationen und Unterlagen des Eigentümers und erfolgen nach bestem Wissen, jedoch ohne Gewähr auf Richtigkeit.
Infrastruktur / Entfernungen
Gesundheit
Arzt <500m
Apotheke <500m
Klinik <1.500m
Krankenhaus <500m
Kinder & Schulen
Schule <500m
Kindergarten <500m
Höhere Schule <2.000m
Universität <10.000m
Nahversorgung
Supermarkt <500m
Bäckerei <500m
Einkaufszentrum <500m
Sonstige
Bank <500m
Geldautomat <1.000m
Post <1.500m
Polizei <1.500m
Verkehr
Bus <500m
U-Bahn <5.000m
Bahnhof <500m
Straßenbahn <5.000m
Autobahnanschluss <2.000m
Angaben Entfernung Luftlinie / Quelle: OpenStreetMap
Eckdaten Objektnr. 12259
Art: | Sonstige - Sonstige |
Land: | Österreich |
Baujahr: | 1912 |
Zustand: | Gepflegt |
Alter: | Altbau |
Gesamtmiete: | 1.260,00 € |
Kaltmiete (netto): | 1.050,00 € |
Kaltmiete: | 1.050,00 € |
Provision: | 3 Bruttomonatsmieten zzgl. 20% USt. |
MwSt Gesamt: | 210,00 € |
Nutzfläche: | 87,64 m² |
Zimmer: | 2 |
Heizwärmebedarf: | D 111,80 kWh/m²a |
fGEE: | C 1,72 |
Ausstattung
Steinboden
Ihre persönliche Beratung

Andrea Höferstock
Immobilias Realitäten e.U.
T +43 699 1 4444 700
H +43 699 1 4444 700