Beschreibung der Immobilie
CITY STARTER | 2-Zimmer Wohnung Lehen
CITY STARTER - LEHEN
Kleine 2-Zimmer Wohnung mit Balkon
Lage
Die Wohnung befindet sich in der Gaswerkgasse im Stadtteil Salzburg–Lehen, in unmittelbarer Nähe zum Landeskrankenhaus Salzburg. Die Altstadt ist nur rund 2,0 km entfernt und mit dem Fahrrad oder öffentlichen Verkehrsmitteln rasch erreichbar. Einkaufsmöglichkeiten, Ärzte und Apotheken befinden sich in Gehdistanz. Die Anbindung an den öffentlichen Verkehr ist durch mehrere Buslinien entlang der Gaswerkgasse und der nahegelegenen Ignaz-Harrer-Straße gewährleistet. Der Autobahnanschluss Salzburg West ist ca. 3,0 km entfernt und sorgt für eine schnelle regionale und überregionale Erreichbarkeit.
Beschreibung Gebäude allgemein
Das Wohngebäude wurde gemäß Energieausweis ursprünglich im Jahre 1914 errichtet und verfügt über vier Vollgeschoße. Es ist unterkellert. Das Haus weist augenscheinlich einen guten, jedoch dem Alter entsprechenden Erhaltungsstand auf und wird zuverlässig verwaltet. Vor dem Objekt befinden sich 1-2 allgemeine Parkplätze. Aufgrund des Baujahres des Hauses fällt das Objekt in den Vollanwendungsbereich des Mietrechtsgesetzes MRG und sind die Bestimmungen zur Mietzinsbildung zu beachten.
Beschreibung Wohnung
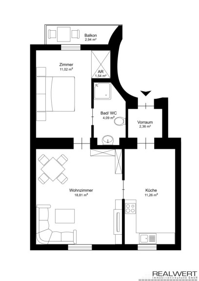
Die verkaufsgegenständliche Wohnung liegt im ersten Obergeschoß des Objektes und ist nach Nord-Osten ausgerichtet. Die Einheit ist als 2-Zimmer Wohnung konfiguriert und hat eine gesamte Wohnfläche von gut 49 m2. In der Wohnung sind, mit Ausnahme des Badezimmers, Laminatböden verlegt.
Die Küche ist direkt vom Vorraum aus begehbar, funktional eingerichtet und verfügt über einen Herd mit 4-Platten Kochfeld und Backrohr, einen Dunstabzug sowie einen Geschirrspüler. Die Wasseraufbereitung in der gesamten Wohnung wird durch eine Gastherme hergestellt, welche sich im Badezimmer befindet.
Das Badezimmer ist mit einem Waschbecken, einem WC und einer Badewanne ausgestattet.
Die Beheizung der Wohnung geschieht über eine Gas-Etagenheizung, welche sich im Wohnzimmer befindet.
Die Wohnung verfügt zusätzlich noch über einen Raum im Keller und einen separaten Lagerraum im Dachgeschoß. Für beide Räumlichkeiten liegen schriftliche Benützungsvereinbarungen vor.
Zustand
Der optische Eindruck der Wohnung ist als gepflegt, jedoch großteils dem Alter entsprechend zu beschreiben. Alle Einrichtungen sind soweit funktionstüchtig, großteils jedoch nicht mehr zeitgemäß, sodass das Objekt als renovierungsbedürftig einzustufen ist. Die Wohnung verfügt über einen FI-Schutzschalter; ein Elektroprüfprotokoll liegt jedoch nicht vor.
Fazit
+ gut eingeteilte 2-Zimmer Wohnung
+ gute Stadtlage mit perfekter Infrastruktur
+ optimale Verkehrsanbindung in alle Richtungen
+ sofort verfügbar
- Sanierungsbedarf vorhanden
Gerne stehen wir Ihnen für weitere Informationen oder einen Besichtigungstermin zur Verfügung.
Der Vermittler ist als Doppelmakler tätig.
Infrastruktur / Entfernungen
Gesundheit
Arzt <500m
Apotheke <500m
Klinik <1.000m
Krankenhaus <1.000m
Kinder & Schulen
Schule <500m
Kindergarten <500m
Universität <500m
Höhere Schule <500m
Nahversorgung
Supermarkt <500m
Bäckerei <500m
Einkaufszentrum <1.500m
Sonstige
Bank <500m
Geldautomat <500m
Post <500m
Polizei <1.000m
Verkehr
Bus <500m
Bahnhof <500m
Autobahnanschluss <2.000m
Flughafen <3.000m
Angaben Entfernung Luftlinie / Quelle: OpenStreetMap
Eckdaten Objektnr. 523/1195
| Art: | Wohnung |
| Land: | Österreich |
| Baujahr: | 1914 |
| Zustand: | Teil_vollrenovierungsbed |
| Alter: | Altbau |
| Kaufpreis: | 189.000,00 € |
| Kaufpreis / m²: | 3.857,14 € |
| Provision: | 3% des Kaufpreises zzgl. 20% USt. |
| Betriebskosten: | 166,74 € |
| MwSt Gesamt: | 16,67 € |
| Wohnfläche: | 49,00 m² |
| Zimmer: | 2 |
| Bäder: | 1 |
| Balkone: | 1 |
| Heizwärmebedarf: | D 119,00 kWh/m²a |
| fGEE: | D 1,79 |
Ausstattung
Gas, Heizofen, Einbauküche, Nordbalkon
Ihre persönliche Beratung
Dieser Makler ist ein offizielles Mitglied des IR – ir.at Mehr Erfahren

