Lager/Magazin beim WIFI
Halle / Lager / Produktion
- Lager,
1180
Wien,Währing
Nähe: Volksoper, WIFI, Kutschkermarkt beste Infrastruktur und pefekte Anbindung an das öffentliche Verkehrsnetz. Parken: Parkpickerlzone 1180 Wien, WIFI-Garage in unmittelbarer Nähe.
Beschreibung der Immobilie
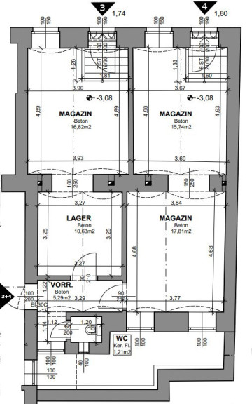
Lager/Magazin beim WIFI
Das Lager/Magazin liegt im Souterrain und verfügt über zwei seperate straßenseiteige Eingänge sowie über einen Eingang über das Stiegenhaus.
Neben insgesamt 4 Lagerräumen besteht das Magazin aus einem Vorraum und einem WC.
________________________________________
Für weitere Frage steht Ihnen Herr GEYIK gerne unter +43 1 810 10 21 - 12 zur Verfügung.
________________________________________
Hinweis gemäß Energieausweisvorlagegesetz: Ein Energieausweis wurde vom Eigentümer bzw. Verkäufer, nach unserer Aufklärung über die generell geltende Vorlagepflicht, sowie Aufforderung zu seiner Erstellung noch nicht vorgelegt. Daher gilt zumindest eine dem Alter und der Art des Gebäudes entsprechende Gesamtenergieeffizienz als vereinbart. Wir übernehmen keinerlei Gewähr oder Haftung für die tatsächliche Energieeffizienz der angebotenen Immobilie.
Wir weisen darauf hin, dass zwischen dem Vermittler und dem zu vermittelnden Dritten ein familiäres oder wirtschaftliches Naheverhältnis besteht.
Der Vermittler ist als Doppelmakler tätig.
Infrastruktur / Entfernungen
Gesundheit
Arzt <500m
Apotheke <500m
Klinik <500m
Krankenhaus <500m
Kinder & Schulen
Schule <500m
Kindergarten <500m
Universität <500m
Höhere Schule <500m
Nahversorgung
Supermarkt <500m
Bäckerei <500m
Einkaufszentrum <1.500m
Sonstige
Geldautomat <500m
Bank <500m
Post <500m
Polizei <1.000m
Verkehr
Bus <500m
U-Bahn <500m
Straßenbahn <500m
Bahnhof <500m
Autobahnanschluss <2.000m
Angaben Entfernung Luftlinie / Quelle: OpenStreetMap
Eckdaten Objektnr. 1155/2717
Art: | Halle / Lager / Produktion - Lager |
Land: | Österreich |
Alter: | Altbau |
Kaltmiete (netto): | 650,00 € |
Kaltmiete: | 781,63 € |
Provision: | 3 Bruttomonatsmieten zzgl. 20% USt. |
Betriebskosten: | 131,63 € |
MwSt Gesamt: | 156,33 € |
Nutzfläche: | 67,50 m² |
Zimmer: | 4 |
WC: | 1 |
Ihre persönliche Beratung

Serkan Geyik
myImmo GmbH
T +43 1 810 10 21 - 12
F + 43 1 810 10 21 - 89