ERSTBEZUG ! Exklusives Wohnprojekt in historischem Gebäude (Top 15)
Wohnung
,
1150
Wien,Rudolfsheim-Fünfhaus
,
Akkonplatz
Diese attraktive Wohnung am Akkonplatz in 1150 Wien besticht durch ihre zentrale Lage. In unmittelbarer Nähe finden Sie alles, was das Herz begehrt: Ärzte, Apotheken, Schulen und Kindergärten sorgen für eine optimale Versorgung. Universitäten und höhere Schulen sind ebenfalls schnell erreichbar. Supermärkte, Bäckereien und ein Einkaufszentrum bieten vielfältige Einkaufsmöglichkeiten. Zudem sind Bank, Post, Polizei und öffentliche Verkehrsmittel wie Bus, U-Bahn und Straßenbahn in kurzer Distanz. Ein idealer Ort zum Leben!
Beschreibung der Immobilie
ERSTBEZUG ! Exklusives Wohnprojekt in historischem Gebäude (Top 15)
Exklusives Wohnprojekt in historischem Gebäude (Top 15)
In einem generalsanierten Spätsecessionshaus (BJ 1913–1914) entstehen 22 hochwertige Wohnungen mit Größen von 37 bis 150 m², teilweise mit Balkon, Terrasse oder Garten.
ÜBERSICHT:
- 10 Altbauwohnungen für Eigennutzer oder Anleger
- 7 Einheiten für dauerhafte Kurzzeitvermietung (Airbnb)
- 5 neu errichtete Dachgeschosswohnungen
Ausstattung:
- Luft-Wärmepumpe mit Heiz- & Kühlfunktion
- Fußbodenheizung
- Fußboden & Kühldecken
- Eichenparkett, großformatige Fliesen
- Personenlift, Kellerabteile, Fahrrad-/Kinderwagenraum
Lage:
Optimale Anbindung: U3 (Johnstraße, Hütteldorfer Str.), Straßenbahn 49 & 9, Bus 10A & 12A. Innenstadt und Grünoasen in wenigen Minuten erreichbar.
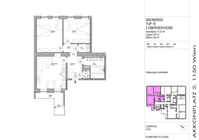
Top 15 – Stilvolle 3-Zimmer-Wohnung mit moderner Ausstattung und Balkon
Willkommen in Ihrer neuen Wohnung! Diese Einheit besticht durch eine durchdachte Raumaufteilung und hochwertige Materialien.
Raumaufteilung:
- Wohn-/Essbereich mit Zugang zum Balkon
- 2 Schlafzimmer
- Bad & separates WC
- Zentrales Vorzimmer
Edles Parkett und Feinsteinzeugfliesen sorgen für ein elegantes Ambiente. Fußbodenheizung und Kühlung über Luftwärmepumpe garantieren Komfort zu jeder Jahreszeit. Zusätzlich gibt es noch eine Decken Kühlung. Die gesamte Liegenschaft wurde die wunderschön und hochwertig renoviert.
Weitere Details unter: https://www.akp2.at/
Hinweis gemäß Energieausweisvorlagegesetz: Ein Energieausweis wurde vom Eigentümer bzw. Verkäufer, nach unserer Aufklärung über die generell geltende Vorlagepflicht, sowie Aufforderung zu seiner Erstellung noch nicht vorgelegt. Daher gilt zumindest eine dem Alter und der Art des Gebäudes entsprechende Gesamtenergieeffizienz als vereinbart. Wir übernehmen keinerlei Gewähr oder Haftung für die tatsächliche Energieeffizienz der angebotenen Immobilie.
Wir weisen darauf hin, dass zwischen dem Vermittler und dem zu vermittelnden Dritten ein familiäres oder wirtschaftliches Naheverhältnis besteht.
Der Vermittler ist als Doppelmakler tätig.
Infrastruktur / Entfernungen
Gesundheit
Arzt <250m
Apotheke <500m
Klinik <1.250m
Krankenhaus <1.500m
Kinder & Schulen
Schule <500m
Kindergarten <500m
Universität <500m
Höhere Schule <750m
Nahversorgung
Supermarkt <250m
Bäckerei <500m
Einkaufszentrum <750m
Sonstige
Geldautomat <500m
Bank <500m
Post <500m
Polizei <750m
Verkehr
Bus <250m
U-Bahn <500m
Straßenbahn <500m
Bahnhof <500m
Autobahnanschluss <5.000m
Angaben Entfernung Luftlinie / Quelle: OpenStreetMap
Eckdaten Objektnr. 111515
Art: | Wohnung |
Land: | Österreich |
Zustand: | Erstbezug |
Alter: | Altbau |
Kaufpreis: | 594.000,00 € |
Betriebskosten: | 138,85 € |
Heizkosten: | 52,09 € |
MwSt Gesamt: | 24,31 € |
Wohnfläche: | 77,27 m² |
Zimmer: | 3 |
Bäder: | 1 |
WC: | 1 |
Balkone: | 1 |
Ausstattung
Fliesen, Parkett, Fußbodenheizung, Personenaufzug
Ihre persönliche Beratung

Claudia Sailer
Ticon Immobilienservice
T +43 664 2122877
H +43 664 2122877
F +43 1 9618101