#SQ - Lager und Werkstatt im Gewölbekeller eines Jahrhundertwendehauses

Halle / Lager / Produktion - Lager, 1160 Wien,Ottakring


Die Seitenberggasse liegt im Herzen von Ottakring, einem lebendigen Bezirk mit einer Mischung aus urbanem Flair, traditionellem Wiener Charakter und aufstrebender Kulturszene. Öffentliche Verkehrsanbindung: Straßenbahnlinien 2, 9 und 46 in unmittelbarer Nähe – direkte Verbindung Richtung Innenstadt und Westbahnhof U-Bahn-Linie U3 (Ottakring) in wenigen Minuten erreichbar S-Bahn-Station Ottakring (S45) für schnelle Anbindung an den Westen Wiens Nahversorgung & Infrastruktur: Zahlreiche Supermärkte, Geschäfte des täglichen Bedarfs, Apotheken und Banken in fußläufiger Entfernung Gastronomische Vielfalt von traditionellen Wiener Beisln bis zu modernen Lokalen Der Brunnenmarkt – einer der größten Straßenmärkte Wiens – ist ebenfalls gut erreichbar Freizeit & Erholung: nahegelegener Wilhelminenberg, Steinhofgründe und Ottakringer Brauerei Damit bietet der Standort sowohl eine hervorragende Erreichbarkeit als auch ein attraktives, urbanes Umfeld.

Beschreibung der Immobilie

#SQ - Lager und Werkstatt im Gewölbekeller eines Jahrhundertwendehauses

Lager und Werkstatt im Gewölbekeller eines Jahrhundertwendehauses





1160 Wien, Seitenberggasse



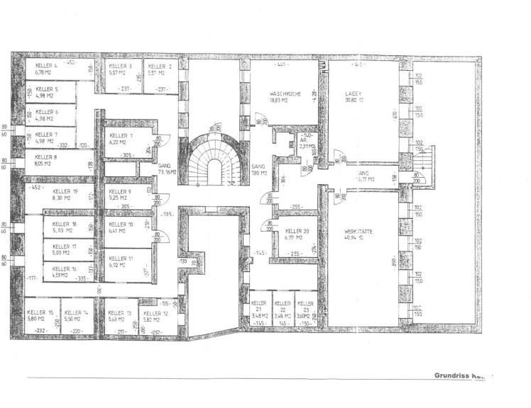
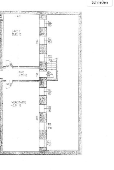
Im Souterrain eines gepflegten Gründerzeithauses in Ottakring gelangen gleich zwei interessante Objekte zum Verkauf: ein ca. 30 m² großes Lager sowie eine ca. 41 m² umfassende Werkstatt. Beide Einheiten befinden sich im selben Haus, gegenüberliegend im Keller, und zeichnen sich durch ihr besonderes Gewölbe-Ambiente sowie durch Fenster mit natürlicher Belichtung aus.



Die Räume eignen sich ideal für Bastler, Heimwerker, Kreative sowie für Personen, die zusätzlichen Stauraum oder eine individuell nutzbare Werkstatt in zentraler Lage suchen.

 



Objekt 1: Lager



  • Nutzfläche: ca. 30 m²



  • Historisches Gewölbe mit Charme



  • Fenster für Belichtung und Belüftung



  • Wohnungseigentum (WEG begründet)



  • Kaufpreis: € 39.000,–







Objekt 2: Werkstatt



  • Nutzfläche: ca. 41 m²



  • Geräumige Fläche mit Gewölbearchitektur



  • Ebenfalls mit Fenstern ausgestattet



  • Wohnungseigentum (WEG begründet)



  • Kaufpreis: € 65.000,–





Besonderheit



Beide Objekte befinden sich im selben Haus, direkt gegenüberliegend. Sie können daher einzeln oder gemeinsam erworben werden – eine ideale Gelegenheit für alle, die größeren Platzbedarf haben oder eine Kombination aus Werkstatt und Lagerfläche nutzen möchten.






Lage & Infrastruktur



Die Seitenberggasse liegt im Herzen von Ottakring – einem urbanen und zugleich charmanten Bezirk mit hervorragender Infrastruktur und öffentlicher Anbindung.



Öffentliche Verkehrsmittel:




  • Straßenbahnlinien 2, 9 und 46 in unmittelbarer Nähe – direkte Anbindung an Innenstadt und Westbahnhof



  • U-Bahn-Linie U3 (Ottakring) in kurzer Distanz erreichbar



  • S-Bahn-Station Ottakring (S45) mit Anbindung ins Wiener Umland




Nahversorgung:




  • Supermärkte, Drogerien, Apotheken und Banken fußläufig erreichbar



  • Vielfältige Gastronomie – vom traditionellen Wiener Beisl bis zum modernen Café



  • Der beliebte Brunnenmarkt in kurzer Entfernung



  • Freizeit- und Erholungsmöglichkeiten: Wilhelminenberg, Steinhofgründe und Ottakringer Brauerei





Kaufpreise




  • Lager, ca. 30 m²: € 39.000,–



  • Werkstatt, ca. 41 m²: € 65.000,–



  • Provision: 3% vom KP zzgl. gesetzl. Mwst.
     




Diese beiden charmanten Einheiten im Gewölbekeller eines Jahrhundertwendehauses bieten flexible Nutzungsmöglichkeiten in zentraler Lage. Ob als zusätzliches Lager, als Werkstatt für kreative Projekte oder in Kombination – hier finden Sie Raum für Ihre Ideen mitten in Ottakring.





Kontaktdaten: 



Für Fragen und Besichtigungen kontaktieren Sie bitte Frau Guelmami unter ines.guelmami@stadtquartier.at 





Weitere Objekte auf: 



www.stadtquartier.at 


Wir weisen darauf hin, dass zwischen dem Vermittler und dem zu vermittelnden Dritten ein familiäres oder wirtschaftliches Naheverhältnis besteht.


Der Vermittler ist als Doppelmakler tätig.

Infrastruktur / Entfernungen

Gesundheit
Arzt <500m
Apotheke <500m
Klinik <1.500m
Krankenhaus <1.000m

Kinder & Schulen
Schule <500m
Kindergarten <500m
Universität <2.000m
Höhere Schule <2.000m

Nahversorgung
Supermarkt <500m
Bäckerei <500m
Einkaufszentrum <1.000m

Sonstige
Geldautomat <500m
Bank <500m
Post <500m
Polizei <500m

Verkehr
Bus <500m
U-Bahn <500m
Straßenbahn <500m
Bahnhof <500m
Autobahnanschluss <4.500m

Angaben Entfernung Luftlinie / Quelle: OpenStreetMap

Eckdaten Objektnr. 20800

Art: Halle / Lager / Produktion - Lager
Land: Österreich
Baujahr: 1900
Zustand: Teil_vollrenovierungsbed
Alter: Altbau
Kaufpreis: 99.000,00
Kaufpreis / m²: 1.379,60 €
Provision: 3.564,00 € inkl. 20% USt.
Betriebskosten: 129,20 €
MwSt Gesamt: 12,92 €
Nutzfläche: 71,76 m²
Heizwärmebedarf:  C  62,20 kWh/m²a
fGEE:  C  1,41
Immobilie merken Exposé

Immobilie anfragen


Ihre persönliche Beratung

STADTQUARTIER Home GmbH

BBA Ines Guelmami

STADTQUARTIER Real Estate Group

T +43 676 406 03 10

H +43 676 406 03 10