Beschreibung der Immobilie
Traumhaus mit Pool in Groß-Enzersdorf
Willkommen in Ihrem neuen Zuhause in 2301 Groß-Enzersdorf, einer charmanten Gemeinde in Niederösterreich, die Ihnen nicht nur ein angenehmes Wohngefühl, sondern auch eine hervorragende Lebensqualität bietet. Dieses großzügige Haus vereint modernen Komfort mit der gemütlichen Atmosphäre eines traditionellen Zuhauses und ist der perfekte Ort für Familien, Paare oder alle, die einen Rückzugsort in der Nähe der pulsierenden Stadt suchen.
Die Lage dieses Hauses ist einfach unschlagbar. Mit einer ausgezeichneten Verkehrsanbindung durch öffentliche Buslinien erreichen Sie die umliegenden Städte und das Stadtzentrum von Wien schnell und unkompliziert. So können Sie die Vorzüge des Stadtlebens genießen, während Sie gleichzeitig in der Ruhe und Beschaulichkeit von Groß-Enzersdorf wohnen.
In unmittelbarer Nähe finden Sie alles, was das Herz begehrt. Die renommierte Universität ist nur einen Katzensprung entfernt und bietet nicht nur Bildungsmöglichkeiten, sondern auch ein reges studentisches Leben. Für den täglichen Bedarf ist ein Supermarkt in der Nachbarschaft, sodass Sie Ihre Einkäufe bequem und ohne lange Wege erledigen können.
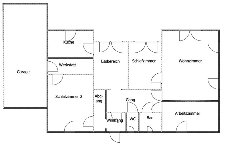
Das Haus selbst besticht durch seine großzügigen Räumlichkeiten, die einer modernen Lebensweise gerecht werden. Helle, einladende Wohnräume schaffen eine freundliche Atmosphäre, in der Sie sich sofort wohlfühlen werden. Die großen Fenster sorgen für viel Tageslicht und bieten einen herrlichen Blick auf die umliegende Natur.
Im Außenbereich erwartet Sie ein gepflegter Garten mit Swimmingpool, der Ihnen Raum für Entspannung und Freizeitaktivitäten bietet. Stellen Sie sich vor, wie Sie an warmen Sommertagen im Garten grillen oder einfach nur die Sonne genießen und im eigenen kühlen Nass zu entspannen.
Dieses Haus in Groß-Enzersdorf ist nicht nur ein Ort zum Wohnen, sondern ein Ort, an dem Sie Erinnerungen schaffen und das Leben in vollen Zügen genießen können.
Zögern Sie nicht, diese einmalige Gelegenheit zu ergreifen und sich Ihr neues Zuhause zu sichern. Vereinbaren Sie noch heute einen Besichtigungstermin und überzeugen Sie sich selbst von den Vorzügen dieses wunderbaren Hauses!
Gehen Sie bereits jetzt durch Ihr neues Zuhause mit unserer 3D Visualisierung: https://storage.net-fs.com/hosting/7895275/12/
Achtung: Es wird darauf hingewiesen, dass es aktuell keinen Plankonsens gibt!
Infrastruktur / Entfernungen
Gesundheit
Arzt <2.000m
Apotheke <2.000m
Klinik <6.500m
Krankenhaus <8.500m
Kinder & Schulen
Schule <1.500m
Kindergarten <2.000m
Universität <1.000m
Höhere Schule <6.000m
Nahversorgung
Supermarkt <1.000m
Bäckerei <2.000m
Einkaufszentrum <2.500m
Sonstige
Bank <2.000m
Geldautomat <2.000m
Polizei <2.500m
Post <2.000m
Verkehr
Bus <500m
U-Bahn <6.000m
Straßenbahn <7.000m
Autobahnanschluss <8.000m
Bahnhof <5.000m
Angaben Entfernung Luftlinie / Quelle: OpenStreetMap
Eckdaten Objektnr. 5915/385
Art: | Haus |
Land: | Österreich |
Kaufpreis: | 550.000,00 € |
Betriebskosten: | 250,00 € |
Wohnfläche: | 115,00 m² |
Grundstücksfl.: | 940,00 m² |
Keller: | 75,00 m² |
Ihre persönliche Beratung

Ralph Peschak
Peschak Immobilien GmbH
T +43 69910835028