Anlageobjekt mit Potenzial: Zinshaus / Appartementhaus in Neumarkt in der Steiermark
Zinshaus Renditeobjekt
,
8820
Neumarkt in Steiermark
Beschreibung der Immobilie
Anlageobjekt mit Potenzial: Zinshaus / Appartementhaus in Neumarkt in der Steiermark
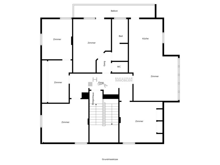
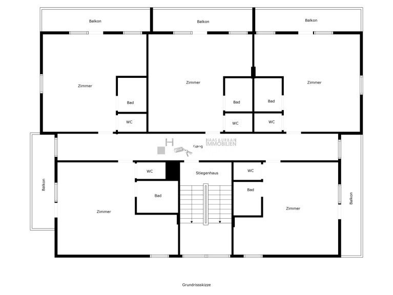
Seltene Gelegenheit für Investoren: großzügiges Zinshaus mit ca. 514 m² vermietbarer Wohnfläche, aktuell leerstehend und sofort neu positionierbar.
Durchschnittliche Mieten in der Region liegen bei ca. € 6,–/m² – mit alternativen Nutzungskonzepten (Monteurwohnungen, möblierte Kurzzeitvermietung) ist ein noch höheres Ertragspotenzial realisierbar.
Eckdaten
Grundstück: ca. 1.088 m²
Wohnfläche: ca. 514 m²
14 Appartements + große DG-Wohnung
Alle OG-Einheiten mit Balkon/Terrasse
Fenster: neue 3-fach Verglasung
Heizung: zentrale Fernwärme
Elektrik: auf dem neuesten Stand
Stellplätze: ca. 6 (erweiterbar auf bis zu 16)
Wirtschaftliche Eckdaten
Kaufpreis: € 720.000
Marktübliche Neuvermietung: ca. € 6,–/m²
Basisszenario: Jahresmiete ca. € 37.000 → Rendite ca. 5–6 %
Erweitertes Szenario (z. B. Kurzzeitvermietung): Jahresmiete € 45.000–50.000+ → Rendite 6–7 %
(Betriebskosten: derzeit in Erhebung – Angaben auf Anfrage)
Highlights für Investoren
✅ Voller Leerstand – sofortige Neuvermietung möglich
✅ Flexible Nutzung: klassisches Wohnen, Studenten, Monteure, betreutes Wohnen
✅ Modernisierte Ausstattung (Fenster, Elektrik, Fernwärme)
✅ Erweiterbares Parkplatzangebot
✅ Attraktive, zentrale Lage mit Entwicklungspotenzial
Der Vermittler ist als Doppelmakler tätig.
Nutzen Sie die einmalige Gelegenheit, diese Immobilie zu besichtigen – sehen und erleben ist sehr viel eindrucksvoller!
Eine Besichtigung ist kostenfrei und unverbindlich, und gibt Ihnen einen unverfälschten Eindruck von der Immobilie.
Gerne unterstütze ich Sie auch bei der Finanzierung sowie beim Verkauf/Vermietung Ihrer Immobilie.
Infrastruktur / Entfernungen
Gesundheit
Arzt <500m
Apotheke <500m
Kinder & Schulen
Schule <500m
Kindergarten <500m
Nahversorgung
Supermarkt <500m
Bäckerei <500m
Sonstige
Geldautomat <500m
Bank <500m
Post <8.000m
Polizei <500m
Verkehr
Bus <500m
Bahnhof <1.000m
Angaben Entfernung Luftlinie / Quelle: OpenStreetMap
Eckdaten Objektnr. 7939/2300162068
Art: | Zinshaus Renditeobjekt |
Land: | Österreich |
Baujahr: | 1979 |
Zustand: | Teil_vollrenovierungsbed |
Kaufpreis: | 720.000,00 € |
Kaufpreis / m²: | 1.063,61 € |
Provision: | 3% des Kaufpreises zzgl. 20% USt. |
Wohnfläche: | 514,93 m² |
Nutzfläche: | 676,94 m² |
Grundstücksfl.: | 1.088,00 m² |
Bäder: | 14 |
WC: | 14 |
Balkone: | 14 |
Heizwärmebedarf: | C 85,00 kWh/m²a |
fGEE: | C 1,09 |
Ausstattung
Fernwärme
Ihre persönliche Beratung

Robert Pachner
Immo-Company Haas & Urban Immobilien GmbH
H +43 699 18410063