Neubauprojekt in Endphase | Moderne Dachgeschoß-Maisonette mit Terrasse in Toplage von Tulln
Wohnung
,
3430
Tulln an der Donau
Das Projekt liegt zwischen dem Hauptplatz und dem Stadtbahnhof – ideal für alle, die urbanes Leben und Ruhe kombinieren möchten. Alles in Gehweite: - Bahnhof Tulln (Franz-Josefs-Bahn, beste Anbindung an Wien) - Schulen, Kindergärten, Ärzte, Apotheken - Einkaufsmöglichkeiten, Gastronomie, Kulturangebote - Direktanschlüsse zur B1, B19, S5 (Richtung Wien, Krems, St. Pölten) Die Blumenstadt Tulln bietet eine der höchsten Lebensqualitäten in Niederösterreich – urban, grün und familienfreundlich.
Beschreibung der Immobilie
Neubauprojekt in Endphase | Moderne Dachgeschoß-Maisonette mit Terrasse in Toplage von Tulln
Nur noch 3 Wohneinheiten verfügbar – sichern Sie sich Ihre Traumwohnung mit Galerie und Morgensonne!
Inmitten der charmanten Blumenstadt Tulln, eingebettet zwischen Hauptplatz und Stadtbahnhof, erwartet Sie ein Wohnprojekt, das moderne Architektur, hochwertige Ausstattung und eine außergewöhnliche Lage vereint.
Großzügige Freiflächen, helle Räume, stilvolle Materialien und ein durchdachtes Raumkonzept zeichnen diese Dachgeschosswohnungen mit Galerie und Terrassen aus.
Ob Eigennutzung oder sichere Anlage – hier finden Sie Wohnqualität in Toplage.
Top 9 – Details:
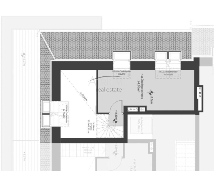
- Wohnfläche: ca. 58 m² barrierefrei + 25 m² Galerie
- Galerie: belagsfertig
- Terrasse: ca. 13 m²
- Etage: Dachgeschoss (mit Lift)
- Zimmer: 2 + Galerie
- Kellerabteil: inklusive
- Preis: EUR 429.000,–
- Bezug: kurzfristig möglich
- Baujahr: 2021
Highlights im Überblick:
- Zentrale Lage zwischen Hauptplatz & Bahnhof
- Dachgeschoss-Maisonette mit Galerie
- 13 m² Terrasse mit Morgensonne
- Lift, barrierefreier Zugang
- Hochwertiger Wildeichenparkett & Feinsteinzeug
- Fußbodenheizung mit Wärmepumpe
- Klimaanlage vorbereitet (Nachrüstung möglich)
- Kellerabteil inklusive
- Tiefgaragenplätze optional verfügbar
Hinweis: Die abgebildeten Fotos mit Möblierung sind Visualisierungen und zeigen mögliche Einrichtungsvorschläge.
Weitere verfügbare Einheiten
Top 11 – Dachgeschoß
Großzügig, offen, lichtdurchflutet: Diese Maisonette mit 41 m² Galerie bietet das Maximum an Raumgefühl.
Maisonette mit ca. 94 m² Wohn-/Galeriefläche, großzügiger 16 m² Terrasse, barrierefreiem Zugang, Galerie & hochwertiger Ausstattung.
€ 469.000,–
Top 12 – Dachgeschoß
Perfekter Grundriss, durchdachte Galerie, viel Licht und eine ideale Terrassenfläche.
Maisonette mit ca. 80 m² Wohn-/Galeriefläche, großzügiger 12 m² Terrasse, barrierefreiem Zugang, offener Galerie & hochwertiger Ausstattung.
€ 439.000,–
Für weitere Fragen und Details steht Ihnen Herr Stanisljevic unter Tel. Nr.: +43 699 1165 0314 gerne zur Verfügung, oder per Mail unter: office@atriumglobal-investment.at
Anfragen:
Wir bitten um Verständnis, dass wir Anfragen nur mit vollständigen Kontaktdaten (Name, Telefonnummer, E-Mail-Adresse) bearbeiten können – gemäß unserer Nachweispflicht gegenüber dem Eigentümer.
Noch nichts gefunden? Wir informieren Sie über geeignete Immobilienangebote noch vor allen anderen.
Legen Sie jetzt Ihren individuellen Suchagenten unter folgendem Link an. Wir schicken Ihnen passende Immobilien exklusiv vorab zu.
Suchagent anlegen - https://atrium-global-investment.service.immo/registrieren/de
Wir weisen darauf hin, dass zwischen dem Vermittler und dem zu vermittelnden Dritten ein familiäres oder wirtschaftliches Naheverhältnis besteht.
Der Vermittler ist als Doppelmakler tätig.
Infrastruktur / Entfernungen
Gesundheit
Arzt <500m
Apotheke <500m
Klinik <6.000m
Krankenhaus <1.500m
Kinder & Schulen
Schule <500m
Kindergarten <500m
Universität <1.500m
Höhere Schule <1.500m
Nahversorgung
Supermarkt <500m
Bäckerei <500m
Einkaufszentrum <500m
Sonstige
Bank <500m
Geldautomat <500m
Post <500m
Polizei <500m
Verkehr
Bus <500m
Bahnhof <500m
Autobahnanschluss <4.000m
Flughafen <5.000m
Angaben Entfernung Luftlinie / Quelle: OpenStreetMap
Eckdaten Objektnr. 698
Art: | Wohnung |
Land: | Österreich |
Baujahr: | 2021 |
Zustand: | Erstbezug |
Alter: | Neubau |
Kaufpreis: | 429.000,00 € |
Provision: | 3% des Kaufpreises zzgl. 20% USt. |
Betriebskosten: | 83,11 € |
MwSt Gesamt: | 11,29 € |
Nutzfläche: | 82,48 m² |
Gesamtfläche: | 95,96 m² |
Zimmer: | 3 |
Bäder: | 1 |
WC: | 1 |
Terrassen: | 1 |
Keller: | 2,57 m² |
Heizwärmebedarf: | B 36,70 kWh/m²a |
fGEE: | A+ 0,69 |
Ausstattung
Fliesen, Parkett, Fußbodenheizung, Wohnküche / offene Küche, Personenaufzug, Nordbalkon, Bad mit Fenster, Badewanne, Dusche, Tiefgarage
Ihre persönliche Beratung

Nebojsa Stanisljevic
Atrium Global Investment
T +43 13912230