Familienwohnsitz - 2 Wohneinheiten möglich - nur 2 Minuten von der Wiener Stadtgrenze
Haus
- Mehrfamilienhaus,
3001
Mauerbach
Beschreibung der Immobilie
Familienwohnsitz - 2 Wohneinheiten möglich - nur 2 Minuten von der Wiener Stadtgrenze
Die nach Südwesten ausgerichtete Liegenschaft liegt keine zwei Kilometer außerhalb der Wiener Stadtgrenze im Mauerbacher Ortsteil Untermauerbach. Das darauf befindliche Doppelhaus wurde ca. im Jahre 1983 erweitert.
Einkaufsmöglichkeiten, Ärzte sowie Kindergarten, Volksschule und Hort befinden sich in der Nähe und sind auch mit dem Bus leicht zu erreichen, eine Ärztin, eine Pizzeria und ein Spar Supermarkt sogar zu Fuß.
Mauerbach bietet zahlreiche Möglichkeiten zur sportlichen und kulturellen Freizeitgestaltung. Der umliegende Wienerwald bietet vielfältige Ausflugsmöglichkeiten; die Hohe Wand Wiese, bereits in Wien, auf der man Sommerrodeln, Schifahren und neuerdings auch auf eigenem Trail mountainbiken kann, liegt nur rund zwei Kilometer oder fünf Busstationen entfernt.
Die Gesamtwohnfläche des Doppelhauses beträgt etwa 263 m² und verteilt sich auf zwei Etagen. Zum Haus gehören auch Teilkeller, Doppelgarage mit Montagegrube und ein Gartenhaus. Der Zugang in den Garten, wo sich außerdem auch die Garage mit ferngesteuertem Garagentor befindet, erfolgt über die Bachgasse.
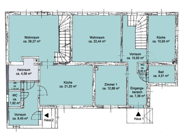
Die beiden Eingänge der Häuser liegen an der Süd-Ostseite und führen jeweils in einen geräumigen Vorraum. Beginnend mit Haus 1, mit etwa 111 m² Wohnfläche, stehen im Erdgeschoß, über den Vorraum erreichbar, Badezimmer, separates WC, Küche, Wohnraum und ein Zimmer zur Verfügung. Die Küche ist mit Einbaugeräten wie Geschirrspüler, E-Herd, Cerankochfeld, Backrohr, Kühlschrank und Gefrierschrank ausgestattet.
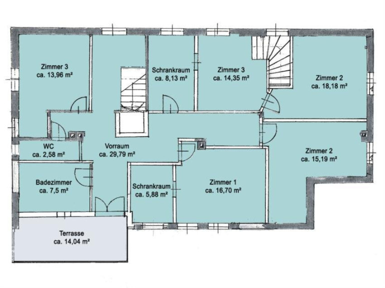
Über eine Holztreppe gelangt man in das Obergeschoß. Auf dieser Ebene befinden sich zwei Zimmer und ein Schrankraum. Vom Schrankraum gibt es eine Verbindungstür zu Haus 2.
In das zweite Haus mit ca. 152 m² Wohnfläche gelangt man einerseits, wie oben beschrieben, durch die Verbindungstür im Obergeschoß, andererseits durch den süd-ostseitigen Eingang. Das Erdgeschoß unterteilt sich in Vorraum, separates WC, Abstellraum, Heizraum, Küche inkl. Einbaugeräte und Wohnraum mit Stiegenaufgang.
Die Holztreppe im Wohnraum führt in das Obergeschoß. Dieses bietet den zukünftigen Bewohnern Vorraum mit versteckter Dachbodentreppe in den ausbaubaren Dachboden, Badezimmer mit Dusche und Wanne, separates WC, Schrankraum, drei Zimmer und eine großzügige Terrasse.
Die Beheizung erfolgt mittels Gas-Zentralheizung. Beide Wohneinheiten werden separat abgerechnet, es gibt jeweils einen Gasbock und einen Stromzähler. In den Zimmern sind Parkett-, Laminat- bzw. Melaminböden verlegt, der Vorraum im Erdgeschoß (Haus 1) sowie sämtliche Sanitärräume sind verfliest. Waschmaschinenanschlüsse befinden sich jeweils in den Badezimmern. Die Außenrollos im Erdgeschoß sind elektrisch gesteuert, im Obergeschoß manuell zu bedienen.
Der Vermittler ist als Doppelmakler tätig.
Infrastruktur / Entfernungen
Gesundheit
Arzt <1.000m
Apotheke <500m
Klinik <8.500m
Krankenhaus <7.500m
Kinder & Schulen
Schule <2.500m
Kindergarten <2.500m
Universität <5.000m
Nahversorgung
Supermarkt <500m
Bäckerei <2.000m
Einkaufszentrum <4.500m
Sonstige
Geldautomat <1.500m
Bank <1.500m
Post <2.000m
Polizei <1.000m
Verkehr
Bus <500m
Straßenbahn <7.000m
U-Bahn <7.000m
Bahnhof <3.500m
Autobahnanschluss <5.000m
Angaben Entfernung Luftlinie / Quelle: OpenStreetMap
Eckdaten Objektnr. 95246
Art: | Haus - Mehrfamilienhaus |
Land: | Österreich |
Baujahr: | 1902 |
Zustand: | Gepflegt |
Kaufpreis: | 595.000,00 € |
Provision: | 3% des Kaufpreises zzgl. 20% USt. |
Wohnfläche: | 263,00 m² |
Grundstücksfl.: | 424,00 m² |
Zimmer: | 8 |
Bäder: | 2 |
WC: | 3 |
Terrassen: | 1 |
Heizwärmebedarf: | C 87,00 kWh/m²a |
fGEE: | C 1,19 |
Ausstattung
Parkett, Fliesen, Kunststoffboden, Laminatboden, Gas, Zentralheizung, Einbauküche, Bad mit Fenster, Badewanne, Dusche, Kabel/Satelliten-TV, Garage
Ihre persönliche Beratung

Verde Lenz
Rudi Dräxler Immobilientreuhand GesmbH
T +43 1 577 44 34
H +43 664 840 7980